Greenbank Drive, Pensby, Wirral, CH61
BR

Greenbank Drive, Pensby, Wirral, CH61

By Bradshaw Farnham & Lea

£ 350,000

Reviews

4 out of 5 stars

Bradshaw Farnham & Lea says ..

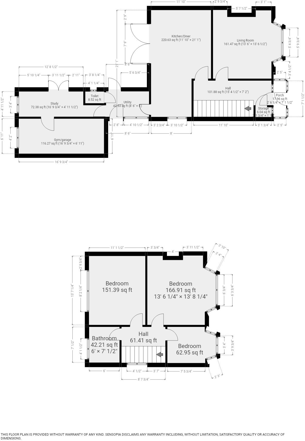
This spacious and beautifully maintained 3-bedroom semi-detached house is an ideal family home, offering the perfect combination of comfort, convenience, and style

Property Oracle says ..

The property is located in a desirable area with good schools and transport links. It is in good condition, having been recently modernised, and benefits from a well-maintained garden. The list price is slightly higher than the average for the area but is reasonable considering the property size, condition, and location.

Therefore, we give this property 8 / 10. *Disclaimer: This is our option and does constitute a recommendation or financial advice. Do your own research. *

Price
7
Condition
9
Location
9
Land
7
Bedrooms
3
Bathrooms
1
Sqft (est)
1,190.02

The heatmap indicates the level of crime in the area. The color of the heatmap indicates the crime severity and recency.

Metrics Year-on-Year

Average area value
266,111.00 £
Decreased by 9.63 %
from 294,467.00 £
Est sale value
389,136.54 £
Increased by 28.74 %
from 302,265.08 £
Average area rental value
1,200.00 £/mo
Increased by 5.91 %
from 1,133.00 £/mo
Est letting value
1,190.02 £/mo
from 0.00 £/mo
Est rental Yield
5.41 %
Increased by 17.10 %
from 4.62 %
Crime Rate
4.00 %
Unchanged by 0.00 %
from 4.00 %

Agent Activity

  • Bradshaw Farnham & Lea created the listing.

Nearby Schools

NameTypeOfstedDistance
Stanley SchoolCommunity Special SchoolGood0.05 KM
Pensby Primary SchoolCommunity SchoolGood0.27 KM
Ladymount Catholic Primary SchoolVoluntary Aided SchoolGood0.86 KM
Heswall Primary SchoolCommunity SchoolGood1.13 KM
South And West Hub - Pensby Children'S CentreChildren's Centre1.17 KM

Images

Picture No. 04 Picture No. 26 Picture No. 12 Picture No. 24 Picture No. 14 Picture No. 16 Picture No. 15 Picture No. 09 Picture No. 10 Picture No. 07 Picture No. 06 Picture No. 08 Picture No. 11 Picture No. 18 Picture No. 19 Picture No. 20 Picture No. 22 Picture No. 23 Picture No. 21 Picture No. 17 Picture No. 25 Picture No. 03 Picture No. 02

Nearby Streets

NameAverage PriceAverage SqftDistance
Hawthorn Drive £ 380,00000.00 KM
Richmond Way £ 315,00000.00 KM
FP29 £ 000.00 KM
Sunningdale Drive £ 000.00 KM
Constantine Avenue £ 000.00 KM

Nearby Transport

NameNLCTLCDistance
Heswall2138HSW2.87 KM
Upton (Merseyside)2141UPT5.15 KM
Neston2139NES6.68 KM
Leasowe2237LSW7.37 KM
Moreton (Merseyside)2151MRT7.51 KM

Nearby Listings

AddressPriceTypeScoreDistance
Greenbank Drive, Pensby, Wirral, CH61 £ 350,000BUY8 / 100.00 KM
Greenbank Drive, Wirral £ 550,000BUY7 / 100.04 KM
Ashlea Road, Pensby, Wirral, Merseyside, CH61 5UN £ 190,000BUY6 / 100.07 KM
Greenbank Drive, Wirral, CH61 £ 325,000BUYUnknown0.07 KM
Greenbank Drive, Wirral, CH61 £ 535,000BUYUnknown0.08 KM

Nearby Properties

AddressPriceDistance
44 Greenbank Drive £ 125,0000.03 KM
14 Greenbank Drive £ 265,0000.03 KM
10 Greenbank Drive £ 208,3480.03 KM
6 Greenbank Drive £ 303,0000.03 KM
32 Greenbank Drive £ 196,5000.03 KM