Sell My Group says ..
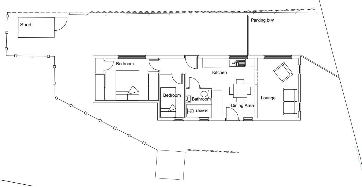
BRAND NEW Park Home (45'x14') | Residential development | Exclusive for the over 50s | Convenient Location For Local Amenities | Safe and Welcoming Community Atmosphere | Garden Shed and Parking Space | Local Bus Service to Bristol | Two bedrooms | Part Exchange Available
Property Oracle says ..
This is a well-presented park home located in Woodlands Park, Almondsbury. The property appears to be in good condition and offers a modern living space. While the location may not suit all buyers, it benefits from proximity to local amenities and transport links. The price seems fair for this type of property and its location.
Therefore, we give this property 6 / 10. *Disclaimer: This is our option and does constitute a recommendation or financial advice. Do your own research. *
- Price
- 7
- Condition
- 8
- Location
- 6
- Land
- 5
- Bedrooms
- 2
- Bathrooms
- 1
- Sqft (est)
- 725.00
The heatmap indicates the level of crime in the area. The color of the heatmap indicates the crime severity and recency.
Metrics Year-on-Year
- Average area value
- 425,682.00 £Increased by 15.98 %
- Est sale value
- 344,375.00 £Increased by 17.28 %
- Average area rental value
- 1,495.00 £/moDecreased by 3.92 %
- Est letting value
- 725.00 £/moUnchanged by 0.00 %
- Est rental Yield
- 4.21 %Decreased by 17.29 %
- Crime Rate
- 1.00 %Unchanged by 0.00 %
Agent Activity
Sell My Group created the listing.
Nearby Schools
| Name | Type | Ofsted | Distance |
|---|---|---|---|
| Holy Trinity Primary School | Voluntary Aided School | Good | 0.65 KM |
| Patchway Community School | Academy Converter | 0.90 KM | |
| St Chad'S Patchway Cofe Primary School | Voluntary Controlled School | Good | 0.94 KM |
| Soundwell Academy | Free Schools Special | 1.06 KM | |
| Sgs Pegasus School | Free Schools Special | 1.06 KM |
Images
Nearby Streets
| Name | Average Price | Average Sqft | Distance |
|---|---|---|---|
| Woodlands Park | £ 167,140 | 0 | 0.00 KM |
| Woodlands Lane | £ 205,000 | 0 | 0.00 KM |
| Brook Way | £ 0 | 0 | 0.00 KM |
| The Common (East) | £ 0 | 0 | 0.00 KM |
| Hollow Road | £ 0 | 0 | 0.00 KM |
Nearby Transport
| Name | NLC | TLC | Distance |
|---|---|---|---|
| Patchway | 3213 | PWY | 2.28 KM |
| Bristol Parkway | 3230 | BPW | 4.28 KM |
| Filton Abbey Wood | 3235 | FIT | 4.62 KM |
| Pilning | 3214 | PIL | 7.22 KM |
| Stapleton Road | 3250 | SRD | 8.79 KM |
Nearby Listings
| Address | Price | Type | Score | Distance |
|---|---|---|---|---|
| Woodlands Park, Almondsbury, Bristol | £ 210,000 | BUY | 6 / 10 | 0.00 KM |
| Almondsbury, Bristol, BS32 | £ 230,000 | BUY | 6 / 10 | 0.00 KM |
| Woodlands Park, Almondsbury, Bristol, BS32 | £ 185,000 | BUY | 6 / 10 | 0.04 KM |
| Woodlands Park, Almondsbury, Bristol, South Gloucestershire, BS32 | £ 160,000 | BUY | 7 / 10 | 0.09 KM |
| Woodlands Park, Almondsbury | £ 189,995 | BUY | 6 / 10 | 0.09 KM |
Nearby Properties
| Address | Price | Distance |
|---|---|---|
| 22 The Park | £ 150,000 | 0.24 KM |
| 2 The Park | £ 339,000 | 0.24 KM |
| 8 The Park | £ 270,000 | 0.24 KM |
| 11 The Park | £ 337,500 | 0.24 KM |
| 14 The Park | £ 280,000 | 0.24 KM |