The Conifers, Hambleton, Poulton-Le-Fylde
By iMove Sales and Lettings
£ 57,000
Reviews
3 out of 5 stars
iMove Sales and Lettings says ..
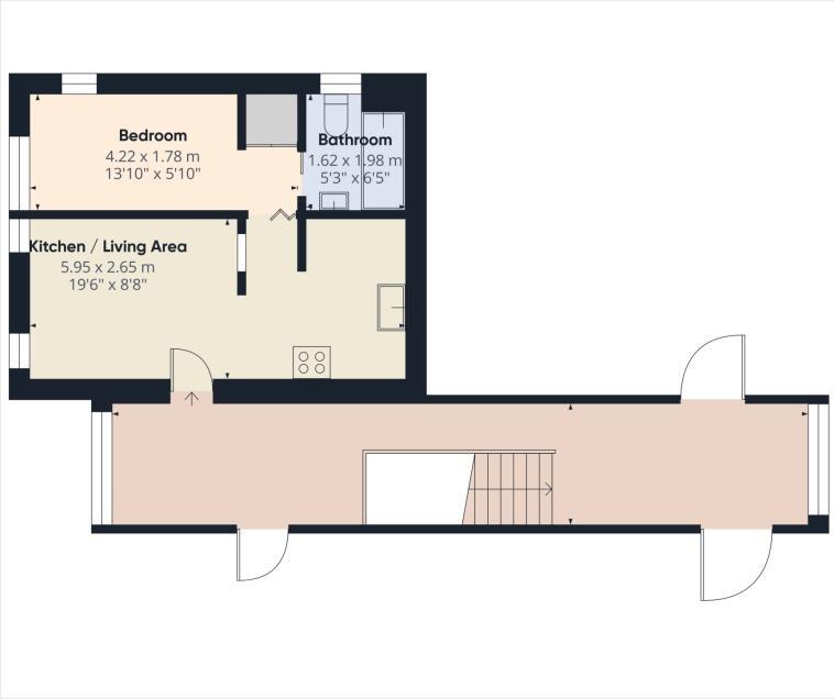
*Studio Apartment *Available With No Onward Chain *Purpose Built Block With Parking *Just Off Kiln Lane *Walking Distance To The Shovels Pub, Shops & Bus Stops *Ideal First Time Purchase
Property Oracle says ..
This is a studio apartment located in Hambleton. The property is in reasonable condition and appears to have been modernised. It benefits from nearby schools and transport links. The lack of private outdoor space may be a drawback for some buyers. However, the price seems competitive for the area and property type.
Therefore, we give this property 6 / 10. *Disclaimer: This is our option and does constitute a recommendation or financial advice. Do your own research. *
- Price
- 8
- Condition
- 7
- Location
- 6
- Land
- 3
- Bedrooms
- 0
- Bathrooms
- 1
- Sqft (est)
- 285.10
The heatmap indicates the level of crime in the area. The color of the heatmap indicates the crime severity and recency.
Metrics Year-on-Year
- Average area value
- 293,750.00 £Increased by 9.95 %
- Est sale value
- 24,518.60 £Decreased by 54.74 %
- Average area rental value
- 825.00 £/moDecreased by 7.09 %
- Est letting value
- 0.00 £/mo
- Est rental Yield
- 3.37 %Decreased by 15.54 %
- Crime Rate
- 52.00 %Unchanged by 0.00 %
Agent Activity
iMove Sales and Lettings created the listing.
Nearby Schools
| Name | Type | Ofsted | Distance |
|---|---|---|---|
| Hambleton Primary Academy | Academy Converter | Outstanding | 1.61 KM |
| Stalmine Primary School | Community School | Good | 2.90 KM |
| Brookfield School | Community Special School | Good | 3.25 KM |
| Poulton-Le-Fylde The Breck Primary School | Community School | Outstanding | 3.26 KM |
| Stanah Primary School | Community School | Good | 3.37 KM |
Images
Nearby Streets
| Name | Average Price | Average Sqft | Distance |
|---|---|---|---|
| Bluebook Avenue | £ 0 | 0 | 0.00 KM |
| Marsh Lane | £ 0 | 0 | 0.00 KM |
| Sanderling Drive | £ 380,400 | 0 | 0.00 KM |
| Orchid Court | £ 360,000 | 0 | 0.00 KM |
| Bluebell Avenue | £ 226,650 | 0 | 0.00 KM |
Nearby Transport
| Name | NLC | TLC | Distance |
|---|---|---|---|
| Poulton-Le-Fylde | 2671 | PFY | 4.41 KM |
| Layton (Lancs) | 2669 | LAY | 8.79 KM |
Nearby Listings
| Address | Price | Type | Score | Distance |
|---|---|---|---|---|
| The Conifers, Hambleton, Poulton-Le-Fylde | £ 57,000 | BUY | 6 / 10 | 0.00 KM |
| The Conifers, Hambleton, Poulton-le-Fylde, Lancashire | £ 59,950 | BUY | 6 / 10 | 0.00 KM |
| No. 46, The Conifers, Hambleton, Lancs FY6 9EP | £ 79,950 | BUY | Unknown | 0.05 KM |
| The Conifers , Hambleton | £ 59,950 | BUY | 5 / 10 | 0.05 KM |
| The Conifers, FY6 | £ 56,500 | BUY | 6 / 10 | 0.05 KM |
Nearby Properties
| Address | Price | Distance |
|---|---|---|
| 1 The Conifers | £ 74,950 | 0.05 KM |
| 60 The Conifers | £ 69,500 | 0.05 KM |
| 61 The Conifers | £ 48,000 | 0.05 KM |
| 12 The Conifers | £ 58,000 | 0.05 KM |
| 56 The Conifers | £ 34,000 | 0.05 KM |