holland & odam says ..
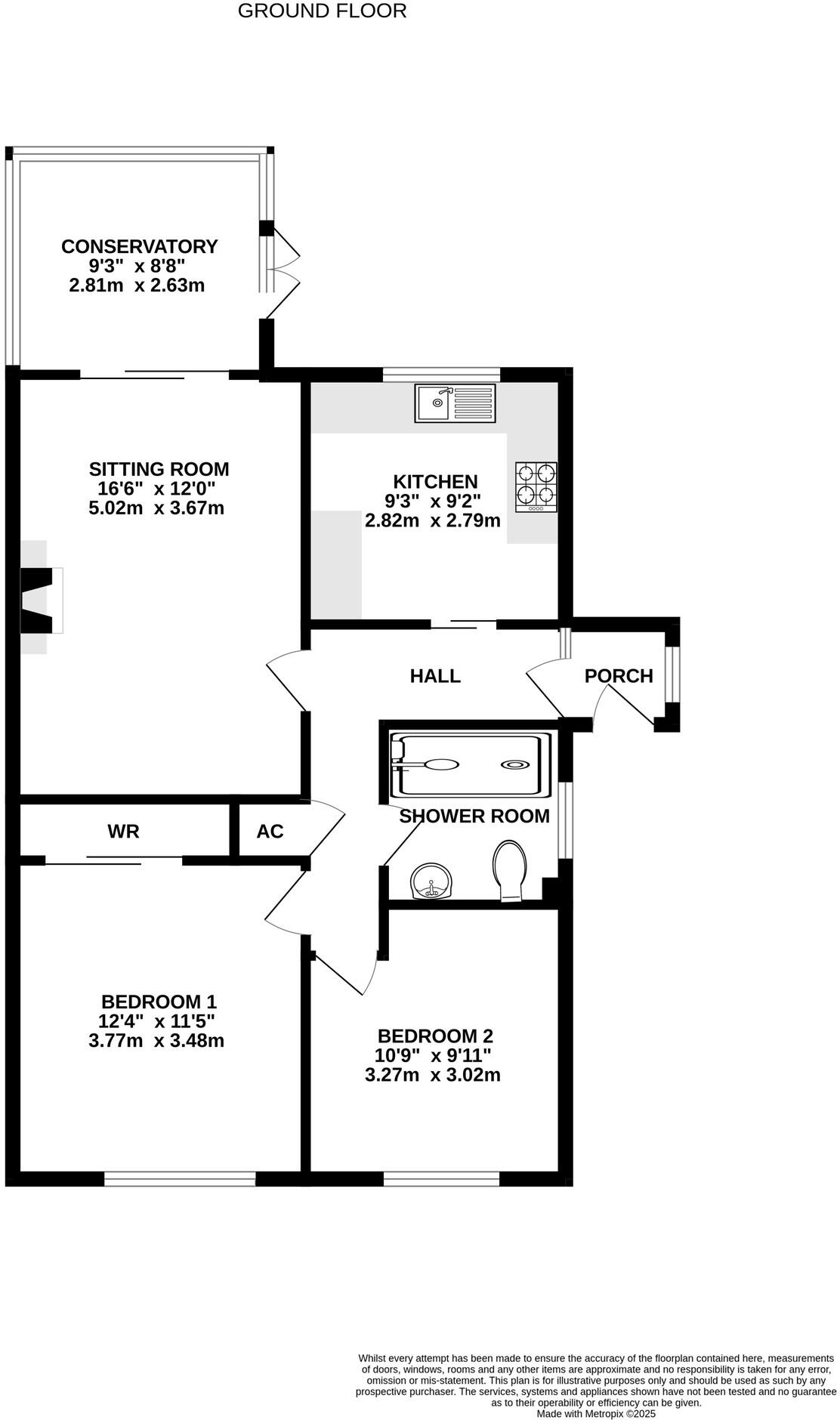
A semi-detached bungalow set at the end of a small cul de sac development built in 1993. Well presented and maintained throughout there is a level, rear garden enjoying a westerly aspect and a conservatory has been added to the property to take full advantage of this.The property is offered for s...
Property Oracle says ..
This is a two-bedroom semi-detached bungalow in Wells, Somerset. The property is listed for £325,000. It features a garden, conservatory, and is located near local schools.
Therefore, we give this property 7 / 10. *Disclaimer: This is our option and does constitute a recommendation or financial advice. Do your own research. *
- Price
- 8
- Condition
- 6
- Location
- 7
- Land
- 7
- Bedrooms
- 2
- Bathrooms
- 1
The heatmap indicates the level of crime in the area. The color of the heatmap indicates the crime severity and recency.
Metrics Year-on-Year
- Average area value
- 399,806.00 £Decreased by 23.85 %
- Average area rental value
- 1,049.00 £/moIncreased by 3.76 %
- Est rental Yield
- 3.15 %Increased by 36.36 %
- Crime Rate
- 5.00 %Unchanged by 0.00 %
Agent Activity
holland & odam created the listing.
Nearby Schools
| Name | Type | Ofsted | Distance |
|---|---|---|---|
| The Blue School | Academy Converter | Good | 0.62 KM |
| Wells Building | Children's Centre Linked Site | 1.01 KM | |
| St Cuthbert'S Cofe Junior School | Voluntary Controlled School | Requires improvement | 1.06 KM |
| St Cuthbert'S Church Of England Academy Infants And Pre-School | Academy Converter | Good | 1.09 KM |
| Wells Cathedral School | Other Independent School | 1.78 KM |
Images
Nearby Streets
| Name | Average Price | Average Sqft | Distance |
|---|---|---|---|
| Davies Court | £ 0 | 0 | 0.00 KM |
| Algar Court | £ 70,000 | 0 | 0.00 KM |
| Welsh Court | £ 0 | 0 | 0.00 KM |
| Coronation Road | £ 195,000 | 0 | 0.00 KM |
| Wookey Hole Road | £ 580,000 | 0 | 0.00 KM |
Nearby Listings
| Address | Price | Type | Score | Distance |
|---|---|---|---|---|
| Singleton Court, Wells | £ 325,000 | BUY | 7 / 10 | 0.00 KM |
| Welsford Close, Wells, BA5 | £ 360,000 | BUY | 7 / 10 | 0.07 KM |
| Ash Lane, Wells | £ 375,000 | BUY | 6 / 10 | 0.12 KM |
| Mount Pleasant Avenue, Wells, BA5 | £ 350,000 | BUY | 7 / 10 | 0.17 KM |
| Mount Pleasant Avenue, Wells, BA5 | £ 325,000 | BUY | 7 / 10 | 0.18 KM |
Nearby Properties
| Address | Price | Distance |
|---|---|---|
| 72 Welsford Avenue | £ 195,000 | 0.04 KM |
| 70 Welsford Avenue | £ 425,000 | 0.04 KM |
| 74 Welsford Avenue | £ 178,500 | 0.04 KM |
| 118 Welsford Avenue | £ 218,000 | 0.04 KM |
| 96 Welsford Avenue | £ 210,000 | 0.04 KM |