Ensall Drive, Wordsley, Stourbridge, DY8 4XX
By Taylors Estate Agents
£ 315,000
Reviews
3 out of 5 stars
Taylors Estate Agents says ..
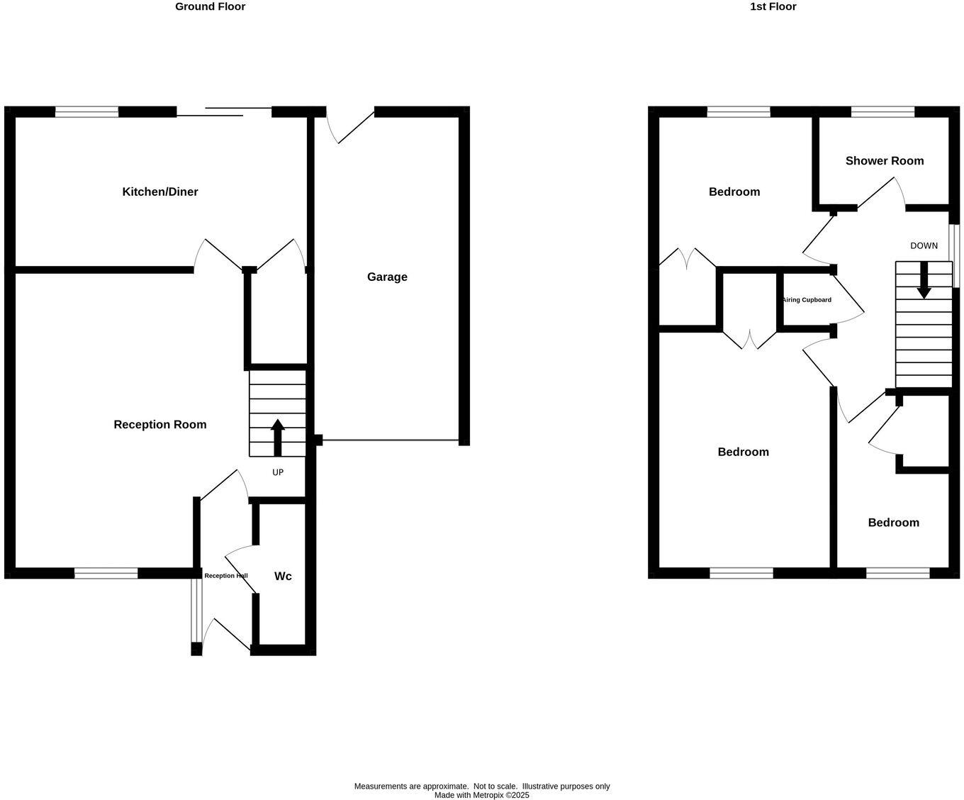
Located in the popular residential area of Wordsley, this well-maintained three-bedroom link-detached property on Ensall Drive offers spacious and comfortable living, ideal for families. The property welcomes you with an entrance hall, leading to a guest WC for added convenience. The go...
Property Oracle says ..
This property is a 3-bedroom, 1-bathroom link detached house located in Wordsley, Stourbridge. The property benefits from being close to local schools and transport links. While the property itself appears to be in good condition, the provided images show a modest garden. The list price of £315,000 is higher than the average for the area, which is £195,886, but comparable properties on Ensall Drive have sold for significantly less. Further investigation into the specific features and condition of the property is recommended before making an offer.
Therefore, we give this property 6 / 10. *Disclaimer: This is our option and does constitute a recommendation or financial advice. Do your own research. *
- Price
- 6
- Condition
- 8
- Location
- 7
- Land
- 4
- Bedrooms
- 3
- Bathrooms
- 1
- Sqft (est)
- 860.00
The heatmap indicates the level of crime in the area. The color of the heatmap indicates the crime severity and recency.
Metrics Year-on-Year
- Average area value
- 168,333.00 £Decreased by 16.57 %
- Est sale value
- 182,320.00 £Decreased by 16.86 %
- Average area rental value
- 818.00 £/moDecreased by 10.89 %
- Est letting value
- 860.00 £/moUnchanged by 0.00 %
- Est rental Yield
- 5.83 %Increased by 6.78 %
- Crime Rate
- 4.00 %Unchanged by 0.00 %
Agent Activity
Taylors Estate Agents created the listing.
Nearby Schools
| Name | Type | Ofsted | Distance |
|---|---|---|---|
| Brook Primary School | Community School | Good | 0.70 KM |
| Ashwood Park Primary School | Community School | Good | 0.94 KM |
| Glasshouse College | Special Post 16 Institution | Good | 0.94 KM |
| Pens Meadow School | Community Special School | Good | 0.97 KM |
| Amblecote Primary School | Community School | Good | 1.14 KM |
Images
Nearby Streets
| Name | Average Price | Average Sqft | Distance |
|---|---|---|---|
| Brindley Close | £ 0 | 0 | 0.00 KM |
| Greenway Avenue | £ 0 | 0 | 0.00 KM |
| Meadowhill Drive | £ 242,500 | 0 | 0.00 KM |
| Dial Lane | £ 230,000 | 0 | 0.00 KM |
| Rectory Fields | £ 0 | 0 | 0.00 KM |
Nearby Transport
| Name | NLC | TLC | Distance |
|---|---|---|---|
| Stourbridge Town | 4643 | SBT | 2.76 KM |
| Stourbridge Junction | 4646 | SBJ | 4.01 KM |
| Lye (West Midlands) | 4640 | LYE | 4.95 KM |
| Hagley | 4577 | HAG | 5.91 KM |
| Cradley Heath | 4639 | CRA | 7.51 KM |
Nearby Listings
| Address | Price | Type | Score | Distance |
|---|---|---|---|---|
| Ensall Drive, Wordsley, Stourbridge, DY8 4XX | £ 315,000 | BUY | 6 / 10 | 0.00 KM |
| WORDSLEY - Ensall Drive | £ 295,000 | BUY | 7 / 10 | 0.01 KM |
| Marine Crescent, Stourbridge | £ 390,000 | BUY | 7 / 10 | 0.11 KM |
| Marine Crescent, Wordsley, Stourbridge, West Midlands, DY8 4XR | £ 225,000 | BUY | 6 / 10 | 0.13 KM |
| Argyle Close, Stourbridge, DY8 4XT | £ 180,000 | BUY | 5 / 10 | 0.13 KM |
Nearby Properties
| Address | Price | Distance |
|---|---|---|
| 29 Ensall Drive | £ 124,000 | 0.01 KM |
| 14 Ensall Drive | £ 129,950 | 0.01 KM |
| 51 Ensall Drive | £ 182,000 | 0.01 KM |
| 53 Ensall Drive | £ 137,000 | 0.01 KM |
| 41 Ensall Drive | £ 185,500 | 0.01 KM |