Carrick House, Royal Victoria
CR

Carrick House, Royal Victoria

By CROWN LUXURY HOMES LIMITED

£ 925,000

Reviews

3 out of 5 stars

CROWN LUXURY HOMES LIMITED says ..

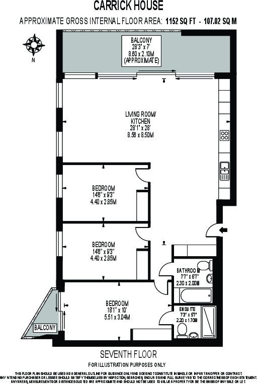
Large 3-Bedroom Apartment | Balcony | River Views | 24hr Concierge | Swimming Pool | Gym | 1152 Sq Ft | 7th Floor | Great Transport Links | WeChat: CLH-Consultant.

Property Oracle says ..

Therefore, we give this property 6 / 10. *Disclaimer: This is our option and does constitute a recommendation or financial advice. Do your own research. *

Price
6
Condition
9
Location
7
Land
3
Bedrooms
3
Bathrooms
2
Sqft (est)
1,523.95

The heatmap indicates the level of crime in the area. The color of the heatmap indicates the crime severity and recency.

Metrics Year-on-Year

Average area value
470,329.00 £
Decreased by 0.02 %
from 470,425.00 £
Est sale value
932,657.40 £
Increased by 3.03 %
from 905,226.30 £
Average area rental value
2,036.00 £/mo
Increased by 3.77 %
from 1,962.00 £/mo
Est letting value
3,047.90 £/mo
Unchanged by 0.00 %
from 3,047.90 £/mo
Est rental Yield
5.19 %
Increased by 3.80 %
from 5.00 %
Crime Rate
8.00 %
Unchanged by 0.00 %
from 8.00 %

Agent Activity

  • CROWN LUXURY HOMES LIMITED created the listing.

Nearby Schools

NameTypeOfstedDistance
Royal Wharf Primary SchoolFree Schools0.20 KM
Britannia Village Primary SchoolAcademy Converter0.58 KM
Oasis Academy SilvertownFree SchoolsGood0.63 KM
St Joachim'S Catholic Primary SchoolAcademy ConverterGood1.48 KM
Royal Docks AcademyAcademy Sponsor LedGood1.56 KM

Images

Untitled-8 copy.jpg Untitled-25 copy.jpg Untitled-21 copy.jpg Untitled-23 copy.jpg Untitled-11 copy.jpg Untitled-16 copy.jpg Untitled-15 copy.jpg Untitled-12 copy.jpg Untitled-20 copy.jpg Untitled-19 copy.jpg Untitled-14 copy.jpg Untitled-17 copy.jpg Untitled-18 copy.jpg Untitled-2 copy.jpg Untitled-13 copy.jpg Untitled-4 copy.jpg Untitled-5 copy.jpg Untitled-6 copy.jpg Untitled-7 copy.jpg Untitled-27 copy.jpg Untitled-22 copy.jpg Untitled-24 copy.jpg Untitled-26 copy.jpg CARRICK HOUSE, 91, EXTERNAL.jpg

Nearby Streets

NameAverage PriceAverage SqftDistance
Royal Crest Avenue £ 210,00000.00 KM
Barrier Point Road £ 000.00 KM
Anchor And Hope Lane £ 000.00 KM
West Periphery £ 000.00 KM
South Periphery £ 000.00 KM

Nearby Transport

NameNLCTLCDistance
Charlton5144CTN1.41 KM
Westcombe Park5151WCB1.92 KM
Woolwich Dockyard5153WWD3.12 KM
Maze Hill5149MZH3.27 KM
Kidbrooke5108KDB4.09 KM

Nearby Listings

AddressPriceTypeScoreDistance
Carrick House, Royal Wharf E16 £ 625,000BUY6 / 100.00 KM
Carrick House, Royal Victoria £ 925,000BUY6 / 100.00 KM
Carrick House, Royal Wharf, E16 £ 435,000BUYUnknown0.02 KM
Carrick House, Royal Wharf, London, E16 £ 950,000BUY5 / 100.02 KM
Carrick House, Royal Wharf, E16 £ 575,000BUY6 / 100.02 KM

Nearby Properties

AddressPriceDistance
11 Admiralty Avenue £ 848,0000.26 KM
6 Rope Terrace £ 769,0000.28 KM
5 Rope Terrace £ 805,0000.32 KM
38 Starboard Way £ 840,0000.38 KM
48 Starboard Way £ 960,0000.39 KM