Oak Lane, Whitstone, Holsworthy, Devon, EX22
FI

Oak Lane, Whitstone, Holsworthy, Devon, EX22

By Fine & Country

£ 575,000

Reviews

3 out of 5 stars

Fine & Country says ..

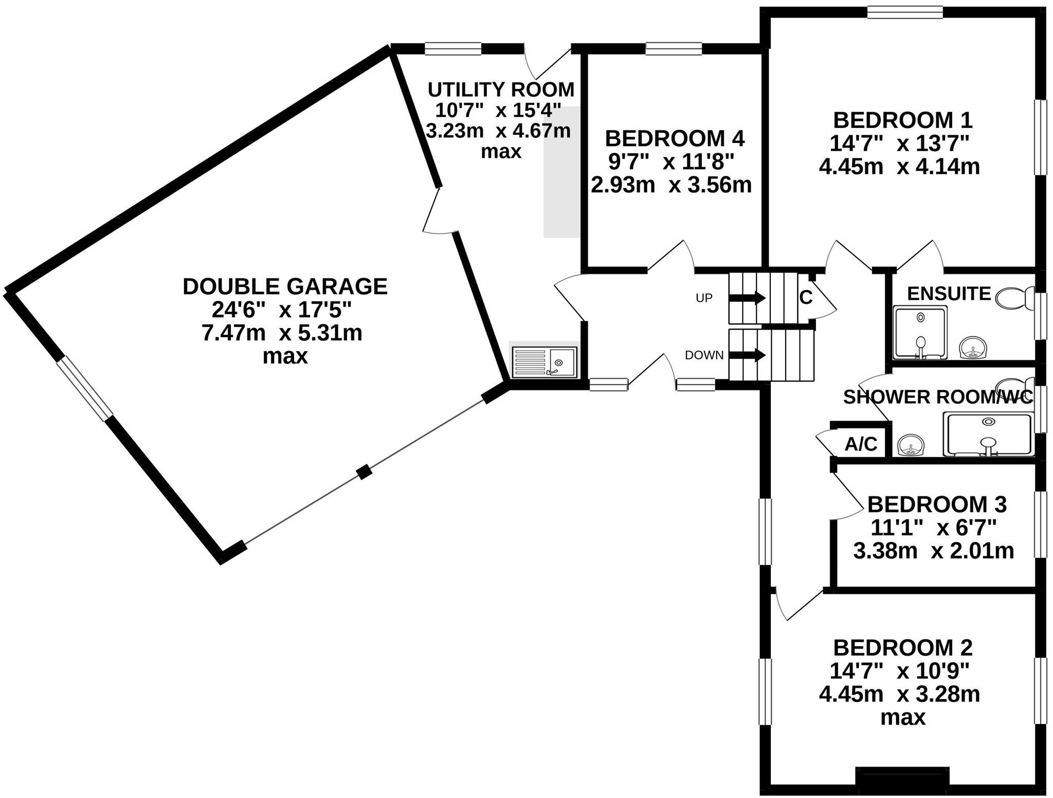
A superb modern individual four bedroom detached executive home with the benefit of a double garage and private wraparound well-manicured sheltered gardens. EPC rating D.

Property Oracle says ..

The property is a detached house located in a rural setting in Whitstone, Cornwall. It features four bedrooms and two bathrooms, with a well-maintained garden. While the house appears to be in generally good condition, some aspects of the interior are dated. The location offers a quiet, countryside lifestyle, but is relatively remote. The price is slightly above the average price per square foot for the area, but is in line with similar properties in the area. The property is conveniently located close to Whitstone Primary School.

Therefore, we give this property 7 / 10. *Disclaimer: This is our option and does constitute a recommendation or financial advice. Do your own research. *

Price
6
Condition
7
Location
7
Land
8
Bedrooms
4
Bathrooms
2
Sqft (est)
1,129.56

The heatmap indicates the level of crime in the area. The color of the heatmap indicates the crime severity and recency.

Metrics Year-on-Year

Average area value
380,500.00 £
Decreased by 7.95 %
from 413,363.00 £
Est sale value
344,515.80 £
Increased by 0.66 %
from 342,256.68 £
Average area rental value
1,550.00 £/mo
Increased by 31.91 %
from 1,175.00 £/mo
Est letting value
1,129.56 £/mo
from 0.00 £/mo
Est rental Yield
4.89 %
Increased by 43.40 %
from 3.41 %
Crime Rate
225.00 %
Unchanged by 0.00 %
from 225.00 %

Agent Activity

  • Fine & Country created the listing.

Nearby Schools

NameTypeOfstedDistance
Whitstone Primary SchoolCommunity SchoolRequires improvement0.09 KM
Highgate Hill House SchoolOther Independent Special School0.65 KM
Bridgerule Church Of England Primary SchoolAcademy Converter4.60 KM
North Petherwin SchoolAcademy ConverterGood7.64 KM
Marhamchurch Cofe Primary SchoolAcademy Converter8.56 KM

Images

Picture No. 16 Picture No. 17 Picture No. 18 Picture No. 19 Picture No. 20 Picture No. 01 Picture No. 08 Picture No. 09 Picture No. 03 Picture No. 04 Picture No. 05 Picture No. 06 Picture No. 07 Picture No. 10 Picture No. 11 Picture No. 12 Picture No. 13 Picture No. 14 Picture No. 15 Picture No. 21 Picture No. 27 Picture No. 28 Picture No. 29 Picture No. 31

Nearby Streets

NameAverage PriceAverage SqftDistance
Hillhead Cottages £ 750,00000.00 KM
St Annes Close £ 000.00 KM

Nearby Listings

AddressPriceTypeScoreDistance
Oak Lane, Whitstone, Holsworthy, Devon, EX22 £ 575,000BUY7 / 100.00 KM
Whitstone, Holsworthy £ 499,950BUY7 / 100.34 KM
Whitstone - Nr Bude, Cornwall £ 1,400,000BUY7 / 100.53 KM
Whitstone, Holsworthy, Devon, EX22 £ 650,000BUY5 / 100.54 KM
Whitstone, Holsworthy, Devon, EX22 £ 430,000BUYUnknown0.55 KM

Nearby Properties

AddressPriceDistance
The Oaks £ 353,0000.04 KM
Deran £ 287,5000.04 KM
Bassets £ 425,0000.04 KM
September Lodge £ 87,0000.04 KM
18 Paradise Park £ 210,0000.56 KM