Acorn says ..
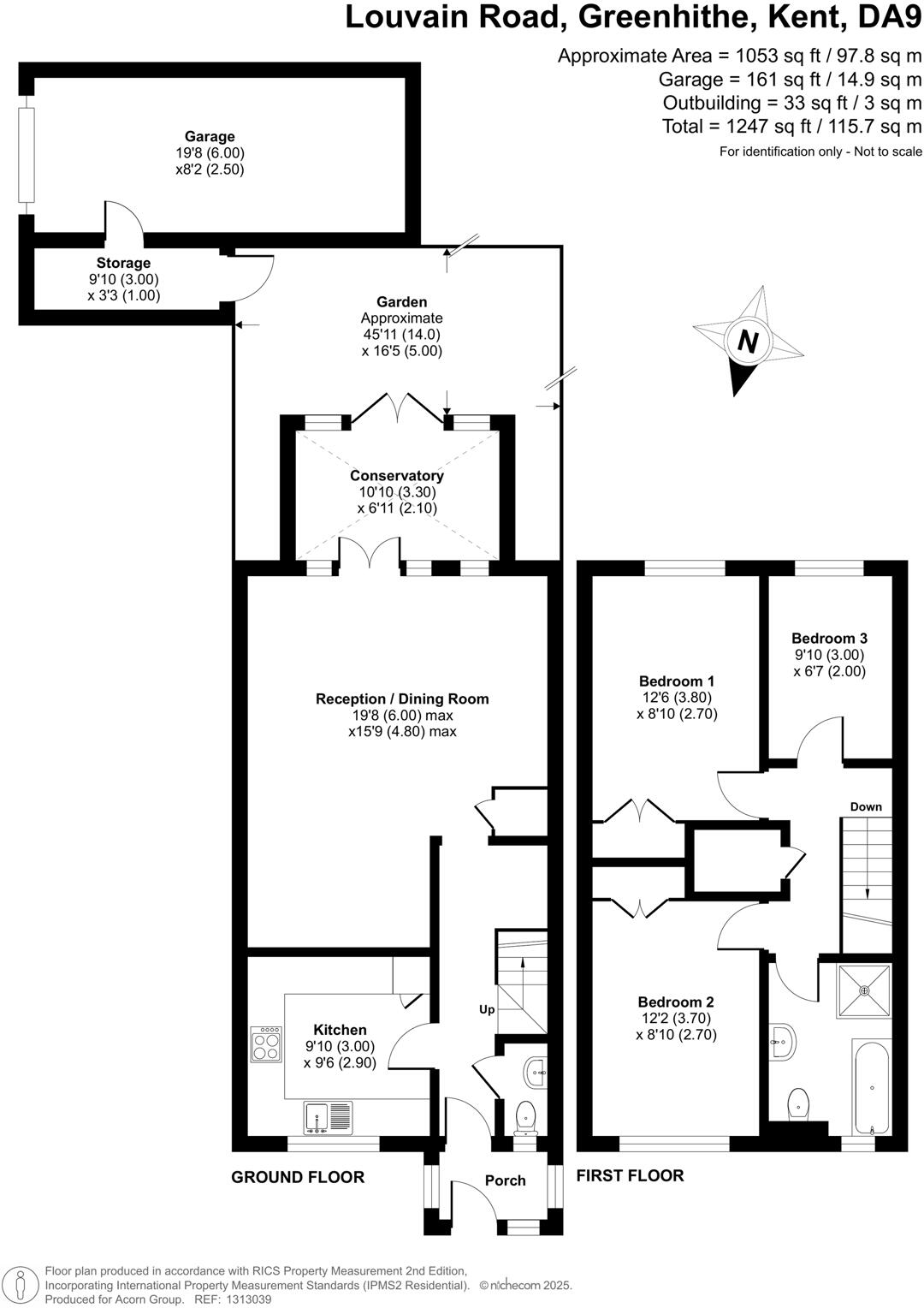
Acorn are pleased to welcome this three-bedroom, terraced family home. Internally, the property comprises; an entrance hall, downstairs WC, fully fitted kitchen, spacious reception/dining room which leads onto the conservatory providing ample natural light. Across the first floor, the...
Property Oracle says ..
Therefore, we give this property 7 / 10. *Disclaimer: This is our option and does constitute a recommendation or financial advice. Do your own research. *
- Price
- 9
- Condition
- 8
- Location
- 7
- Land
- 7
- Bedrooms
- 3
- Bathrooms
- 2
- Sqft (est)
- 1,053.00
- Lot (est)
- 752.00
The heatmap indicates the level of crime in the area. The color of the heatmap indicates the crime severity and recency.
Metrics Year-on-Year
- Average area value
- 335,611.00 £Increased by 6.01 %
- Est sale value
- 497,016.00 £Increased by 36.42 %
- Average area rental value
- 1,744.00 £/moDecreased by 0.85 %
- Est letting value
- 2,106.00 £/moIncreased by 100.00 %
- Est rental Yield
- 6.24 %Decreased by 6.45 %
- Crime Rate
- 5.00 %Unchanged by 0.00 %
from 316,591.00 £
from 364,338.00 £
from 1,759.00 £/mo
from 1,053.00 £/mo
from 6.67 %
from 5.00 %
Agent Activity
Acorn created the listing.
Nearby Schools
| Name | Type | Ofsted | Distance |
|---|---|---|---|
| Stone St Mary'S Cofe Primary School | Academy Converter | Good | 0.19 KM |
| Stone Lodge School | Free Schools | 1.57 KM | |
| The Brent Primary School | Academy Converter | Outstanding | 1.63 KM |
| Fleetdown Primary Academy | Academy Converter | 1.69 KM | |
| The Gateway Primary Academy | Academy Converter | Good | 2.17 KM |
Images
Nearby Streets
| Name | Average Price | Average Sqft | Distance |
|---|---|---|---|
| Watling Street | £ 0 | 0 | 0.00 KM |
| Saint James Lane | £ 580,000 | 0 | 0.00 KM |
| Gore Road | £ 375,000 | 0 | 0.00 KM |
| Wiltshire Close | £ 0 | 0 | 0.00 KM |
| Upper Church Hill | £ 0 | 0 | 0.00 KM |
Nearby Transport
| Name | NLC | TLC | Distance |
|---|---|---|---|
| Stone Crossing | 5248 | SCG | 1.22 KM |
| Greenhithe For Bluewater | 5138 | GNH | 2.43 KM |
| Dartford | 5101 | DFD | 4.63 KM |
| Farningham Road | 5105 | FNR | 5.17 KM |
| Purfleet | 7453 | PFL | 5.19 KM |
Nearby Listings
| Address | Price | Type | Score | Distance |
|---|---|---|---|---|
| Louvain Road, Greenhithe, DA9 | £ 200,000 | BUY | 6 / 10 | 0.00 KM |
| Louvain Road, Greenhithe, Kent | £ 400,000 | BUY | 7 / 10 | 0.00 KM |
| Louvain Road, Greenhithe, Kent, DA9 | £ 200,000 | BUY | 6 / 10 | 0.00 KM |
| Louvain Road, Greenhithe, Kent, DA9 | £ 300,000 | BUY | 6 / 10 | 0.00 KM |
| Louvain Road, Greenhithe, DA9 9DY | £ 140,000 | BUY | 5 / 10 | 0.06 KM |
Nearby Properties
| Address | Price | Distance |
|---|---|---|
| 53 Louvain Road | £ 114,000 | 0.04 KM |
| 77 Louvain Road | £ 104,995 | 0.04 KM |
| 99 Louvain Road | £ 185,000 | 0.04 KM |
| 59 Louvain Road | £ 127,000 | 0.04 KM |
| 79 Louvain Road | £ 195,000 | 0.04 KM |