Acorn Close, Enfield
By Barnfields Estate Agents
£ 500,000
Reviews
3 out of 5 stars
Barnfields Estate Agents says ..
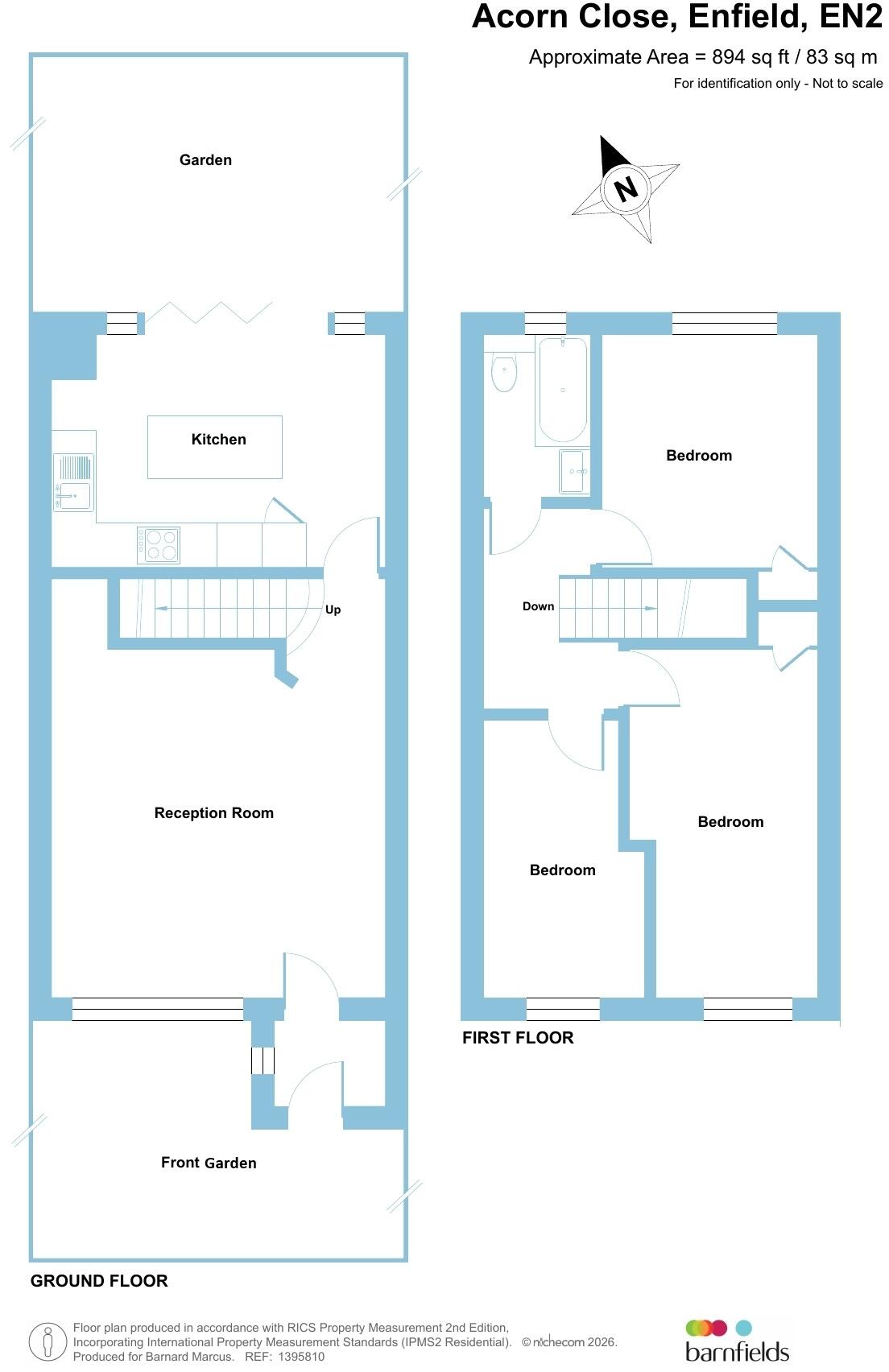
Three bedroom mid terraced house located in a quiet cul-de-sac close to Gordon Hill Station (Moorgate Line), good bus routes, Chase Farm Hospital and the new Wren and One Degree Academies. Spacious through lounge, modern fitted kitchen and bathroom, rear garden, garage. Chain Free. Sole Agents.
Property Oracle says ..
This is a three-bedroom terraced house located in Acorn Close, Enfield. The property benefits from a modern kitchen and bathroom, suggesting recent updates. While the interior appears well-maintained, the exterior and garden could use some improvement. The property is situated in a convenient location, with proximity to transportation (Gordon Hill station) and schools. The asking price of £500,000 seems reasonable compared to the average property price in the area, making it a potentially attractive opportunity for buyers.
Therefore, we give this property 7 / 10. *Disclaimer: This is our option and does constitute a recommendation or financial advice. Do your own research. *
- Price
- 8
- Condition
- 7
- Location
- 7
- Land
- 6
- Bedrooms
- 3
- Bathrooms
- 1
- Sqft (est)
- 893.40
The heatmap indicates the level of crime in the area. The color of the heatmap indicates the crime severity and recency.
Metrics Year-on-Year
- Average area value
- 780,333.00 £Increased by 28.74 %
- Est sale value
- 594,111.00 £Increased by 31.68 %
- Average area rental value
- 2,100.00 £/moIncreased by 7.91 %
- Est letting value
- 893.40 £/moUnchanged by 0.00 %
- Est rental Yield
- 3.23 %Decreased by 16.10 %
- Crime Rate
- 6.00 %Unchanged by 0.00 %
Agent Activity
Barnfields Estate Agents created the listing.
Nearby Schools
| Name | Type | Ofsted | Distance |
|---|---|---|---|
| Chase Side Children'S Centre | Children's Centre | 1.22 KM | |
| Chase Side Primary School | Community School | Requires improvement | 1.22 KM |
| St Michael'S Cofe Primary School | Voluntary Aided School | Good | 1.30 KM |
| St John'S Cofe Primary School | Voluntary Aided School | Good | 1.38 KM |
| Merryhills Primary School | Community School | Good | 1.66 KM |
Images
Nearby Streets
| Name | Average Price | Average Sqft | Distance |
|---|---|---|---|
| Woodridge Close | £ 0 | 0 | 0.00 KM |
| Cranmere Court | £ 0 | 0 | 0.00 KM |
| Lavender Gardens | £ 512,250 | 0 | 0.00 KM |
| Ripley Road | £ 0 | 0 | 0.00 KM |
| Enfield Greenways | £ 0 | 0 | 0.00 KM |
Nearby Transport
| Name | NLC | TLC | Distance |
|---|---|---|---|
| Gordon Hill | 6028 | GDH | 0.58 KM |
| Enfield Chase | 6010 | ENC | 1.45 KM |
| Grange Park | 6029 | GPK | 2.24 KM |
| Crews Hill | 6007 | CWH | 2.56 KM |
| Enfield Town | 6959 | ENF | 2.56 KM |
Nearby Listings
| Address | Price | Type | Score | Distance |
|---|---|---|---|---|
| Acorn Close, Enfield | £ 500,000 | BUY | 7 / 10 | 0.00 KM |
| Acorn Close, Enfield, Middlesex, EN2 | £ 525,000 | BUY | 6 / 10 | 0.03 KM |
| Acorn Close, Enfield | £ 525,000 | BUY | 6 / 10 | 0.06 KM |
| Lavender Hill, Enfield | £ 350,000 | BUY | 7 / 10 | 0.06 KM |
| Hardy Way, EN2 | £ 750,000 | BUY | 6 / 10 | 0.08 KM |
Nearby Properties
| Address | Price | Distance |
|---|---|---|
| 17 Acorn Close | £ 109,000 | 0.00 KM |
| 27 Acorn Close | £ 435,000 | 0.00 KM |
| 21 Acorn Close | £ 350,000 | 0.00 KM |
| 25 Acorn Close | £ 465,000 | 0.00 KM |
| 22 Acorn Close | £ 275,000 | 0.00 KM |