Snowbell Road, Kingsnorth, TN23
By Simpson & Hall
£ 550,000
Reviews
3 out of 5 stars
Simpson & Hall says ..
Tucked away in a highly regarded close on the Park Farm development sits this beautifully presented four-bedroom family home — a property that instantly engages and feels special.As you turn into the driveway, the appeal is obvious.
Property Oracle says ..
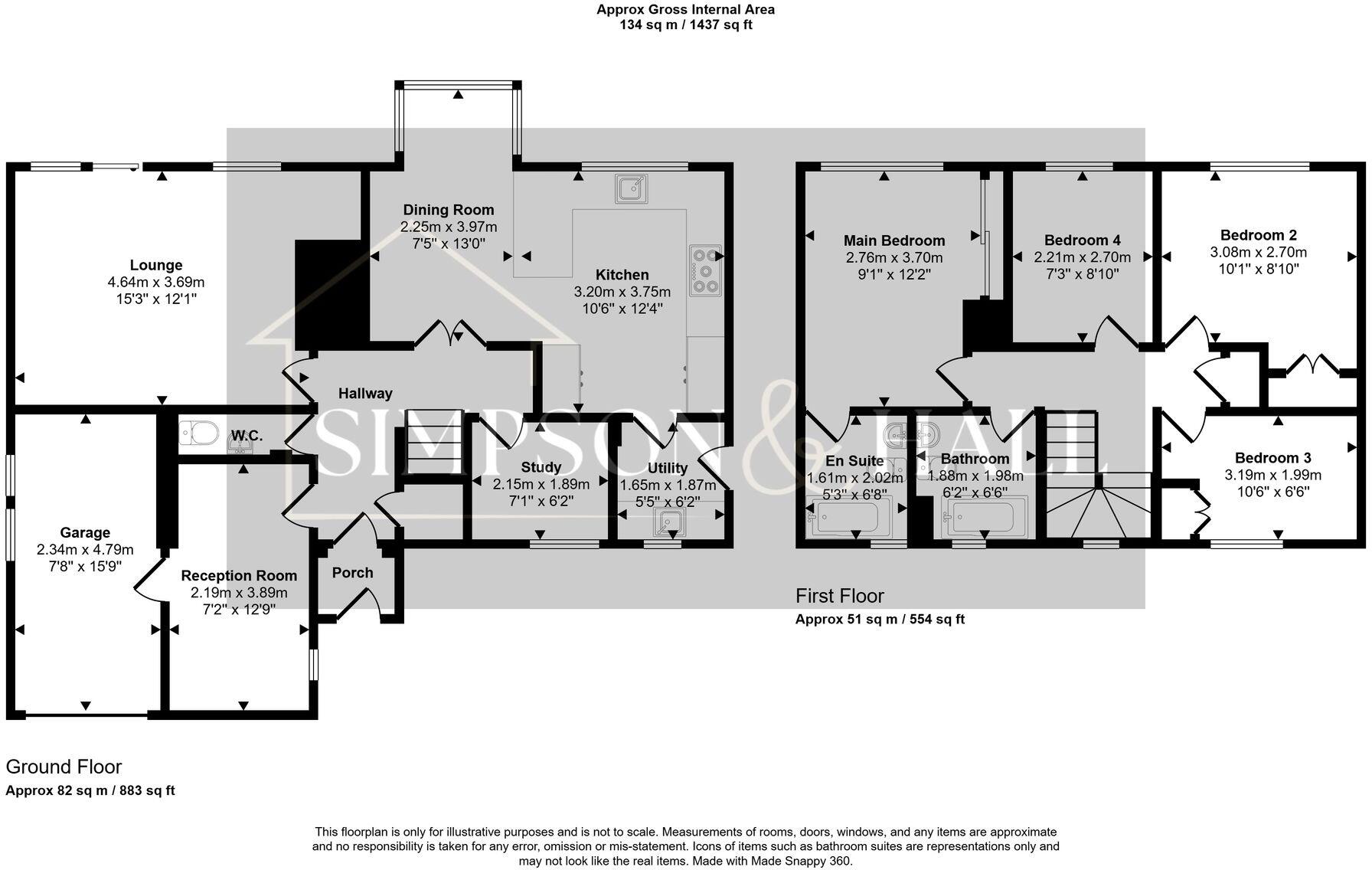
This is a well-presented, modern detached property in Kingsnorth, Ashford. The house benefits from a modern kitchen and bathrooms, a good-sized garden, and a double garage. The property is located within a reasonable distance of schools and transport links. The asking price is a little high compared to similar properties in the area.
Therefore, we give this property 7 / 10. *Disclaimer: This is our option and does constitute a recommendation or financial advice. Do your own research. *
- Price
- 6
- Condition
- 9
- Location
- 7
- Land
- 7
- Bedrooms
- 4
- Bathrooms
- 3
The heatmap indicates the level of crime in the area. The color of the heatmap indicates the crime severity and recency.
Metrics Year-on-Year
- Average area value
- 257,097.00 £Decreased by 8.25 %
- Average area rental value
- 956.00 £/moIncreased by 1.92 %
- Est rental Yield
- 4.46 %Increased by 10.95 %
- Crime Rate
- 3.00 %Unchanged by 0.00 %
Agent Activity
Simpson & Hall created the listing.
Nearby Schools
| Name | Type | Ofsted | Distance |
|---|---|---|---|
| Kingsnorth Church Of England Primary School | Academy Converter | Good | 0.77 KM |
| Furley Park Primary Academy | Academy Converter | Good | 0.78 KM |
| The John Wallis Church Of England Academy | Academy Sponsor Led | Good | 1.83 KM |
| Ray Allen Children'S Centre | Children's Centre | 1.84 KM | |
| Finberry Primary School | Academy Sponsor Led | Good | 1.93 KM |
Images
Nearby Streets
| Name | Average Price | Average Sqft | Distance |
|---|---|---|---|
| Great Oak Row | £ 495,000 | 0 | 0.00 KM |
| Hawthorn Road | £ 0 | 0 | 0.00 KM |
| Saddlers Way | £ 360,000 | 0 | 0.00 KM |
| Reed Crescent | £ 0 | 0 | 0.00 KM |
| Cherry Gardens | £ 400,000 | 0 | 0.00 KM |
Nearby Transport
| Name | NLC | TLC | Distance |
|---|---|---|---|
| Ashford International | 5004 | AFK | 2.60 KM |
| Ham Street | 5037 | HMT | 6.12 KM |
| Wye | 5031 | WYE | 9.62 KM |
Nearby Listings
| Address | Price | Type | Score | Distance |
|---|---|---|---|---|
| Snowbell Road, Kingsnorth, TN23 | £ 550,000 | BUY | 7 / 10 | 0.00 KM |
| Bell Chapel Close, Kingsnorth, Ashford, Kent, TN23 | £ 575,000 | BUY | 7 / 10 | 0.12 KM |
| Bell Chapel Close, Kingsnorth, Ashford | £ 475,000 | BUY | 7 / 10 | 0.14 KM |
| Bluebell Road, Kingsnorth, Ashford | £ 600,000 | BUY | 7 / 10 | 0.15 KM |
| Shipley Mill Close, Kingsnorth, TN23 | £ 450,000 | BUY | Unknown | 0.19 KM |
Nearby Properties
| Address | Price | Distance |
|---|---|---|
| 15 Snowbell Road | £ 470,000 | 0.06 KM |
| 8 Snowbell Road | £ 371,000 | 0.06 KM |
| 3 Snowbell Road | £ 352,500 | 0.06 KM |
| 23 Snowbell Road | £ 243,000 | 0.06 KM |
| 19 Snowbell Road | £ 435,000 | 0.06 KM |