TH
The Barn, Castlethorpe, Brigg, Lincolnshire, DN20 9LG
By The County Property Auction
£ 275,000
Reviews
3 out of 5 stars
The County Property Auction says ..
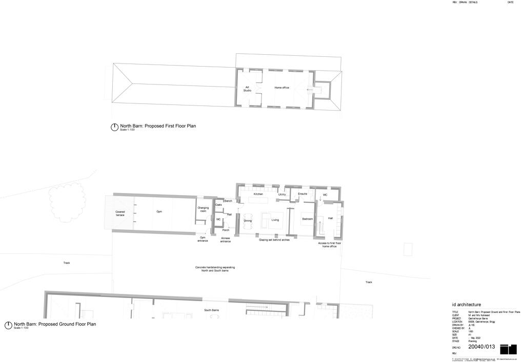
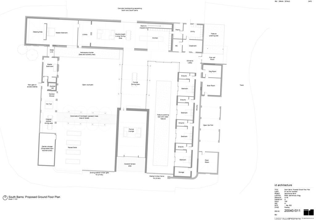
For Sale by Live Stream Auction 25th June 2025 - Substantial range of traditional farm buildings - Set in around 3.48 acres - Planning consent to convert into 5 bed dwelling with 1 bed annexe - Open Countryside Setting - Buyers Fee £900 + VAT
Property Oracle says ..
Therefore, we give this property 6 / 10. *Disclaimer: This is our option and does constitute a recommendation or financial advice. Do your own research. *
- Price
- 6
- Condition
- 2
- Location
- 7
- Land
- 9
- Bedrooms
- 6
- Bathrooms
- 0
The heatmap indicates the level of crime in the area. The color of the heatmap indicates the crime severity and recency.
Metrics Year-on-Year
- Average area value
- 236,667.00 £Decreased by 0.53 %
- Average area rental value
- 800.00 £/moDecreased by 20.00 %
- Est rental Yield
- 4.06 %Decreased by 19.44 %
- Crime Rate
- 0.00 %
from 237,924.00 £
from 1,000.00 £/mo
from 5.04 %
from 0.00 %
Agent Activity
The County Property Auction created the listing.
Nearby Schools
| Name | Type | Ofsted | Distance |
|---|---|---|---|
| Brigg Primary School | Community School | Good | 2.54 KM |
| The Vale Academy | Academy Converter | Good | 2.90 KM |
| Brigg Children'S Centre | Children's Centre | 3.15 KM | |
| Broughton Primary School | Community School | Requires improvement | 3.21 KM |
| Sir John Nelthorpe School | Voluntary Controlled School | Good | 3.22 KM |
Images
Nearby Streets
| Name | Average Price | Average Sqft | Distance |
|---|---|---|---|
| Brook Lane | £ 0 | 0 | 0.00 KM |
| Mallard Way | £ 168,480 | 0 | 0.00 KM |
Nearby Transport
| Name | NLC | TLC | Distance |
|---|---|---|---|
| Brigg | 6464 | BGG | 3.67 KM |
Nearby Listings
| Address | Price | Type | Score | Distance |
|---|---|---|---|---|
| The Barn, Castlethorpe, Brigg, Lincolnshire, DN20 9LG | £ 275,000 | BUY | 6 / 10 | 0.00 KM |
| Castlethorpe Corner, Castlethorpe, North Lincolnshire, DN20 | £ 550,000 | BUY | 7 / 10 | 0.18 KM |
| The Paddock, Castlethorpe, BRIGG | £ 700,000 | BUY | 7 / 10 | 0.35 KM |
| Castlethorpe, Brigg, Lincolnshire, DN20 | £ 450,000 | BUY | 6 / 10 | 0.79 KM |
| Castlethorpe, Brigg | £ 499,950 | BUY | 6 / 10 | 0.96 KM |
Nearby Properties
| Address | Price | Distance |
|---|---|---|
| The Barn | £ 299,000 | 0.35 KM |
| 1 Mill Cottages | £ 121,500 | 0.81 KM |
| 2 New Cottages | £ 140,000 | 0.81 KM |
| 144 Scawby Road | £ 240,000 | 1.00 KM |
| 132 Scawby Road | £ 200,000 | 1.00 KM |