Welbeck Rise, Off Hollingwood Lane, Bradford, BD7
By Robert Watts
£ 195,000
Reviews
3 out of 5 stars
Robert Watts says ..
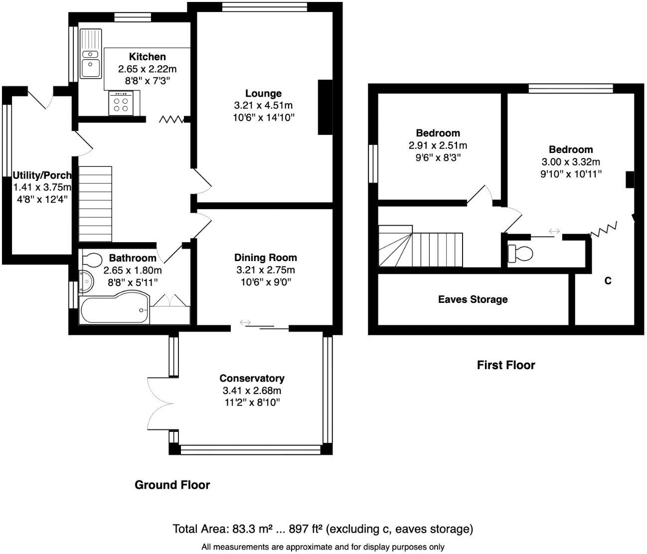
** OFFERED WITH NO CHAIN ** SUPERB CORNER PLOT POSITION ** VAST SCOPE FOR EXTENSION (subject to permissions). DOUBLE GARAGE ** Sat on an enviable plot within a cul de sac location is this DORMER STYLE SEMI DETACHED BUNGALOW. In need of modernisation and briefly comprising: Side entrance porch wit...
Property Oracle says ..
This two-bedroom bungalow in Bradford presents a renovation opportunity. While the property requires updating, it features a good-sized garden and a detached garage. The location offers a suburban lifestyle with access to local schools and amenities. The price appears reasonable considering the condition and location.
Therefore, we give this property 6 / 10. *Disclaimer: This is our option and does constitute a recommendation or financial advice. Do your own research. *
- Price
- 7
- Condition
- 4
- Location
- 6
- Land
- 7
- Bedrooms
- 2
- Bathrooms
- 1
- Sqft (est)
- 896.63
The heatmap indicates the level of crime in the area. The color of the heatmap indicates the crime severity and recency.
Metrics Year-on-Year
- Average area value
- 856,250.00 £Increased by 15.74 %
- Est sale value
- 636,607.30 £Increased by 21.37 %
- Average area rental value
- 2,000.00 £/moDecreased by 15.25 %
- Est letting value
- 896.63 £/moUnchanged by 0.00 %
- Est rental Yield
- 2.80 %Decreased by 26.89 %
- Crime Rate
- 2.00 %Unchanged by 0.00 %
Agent Activity
Robert Watts created the listing.
Nearby Schools
| Name | Type | Ofsted | Distance |
|---|---|---|---|
| Hollingwood Primary School | Academy Converter | 0.31 KM | |
| St Anthony'S Catholic Primary School, A Voluntary Academy | Academy Converter | 0.63 KM | |
| Jaamiatul Imaam Muhammad Zakaria | Other Independent School | 1.06 KM | |
| St John The Evangelist Catholic Primary School | Academy Converter | Good | 1.09 KM |
| Brackenhill Primary School | Community School | Good | 1.44 KM |
Images
Nearby Streets
| Name | Average Price | Average Sqft | Distance |
|---|---|---|---|
| Highlands Close | £ 0 | 0 | 0.00 KM |
| Mickledore Close | £ 189,950 | 0 | 0.00 KM |
| May Tree Place | £ 56,250 | 0 | 0.00 KM |
| Sandringham Close | £ 0 | 0 | 0.00 KM |
| Sandringham Road | £ 0 | 0 | 0.00 KM |
Nearby Transport
| Name | NLC | TLC | Distance |
|---|---|---|---|
| Frizinghall | 8556 | FZH | 5.88 KM |
| Bradford Forster Square | 8346 | BDQ | 5.92 KM |
| Bradford Interchange | 8345 | BDI | 6.11 KM |
| Low Moor | 8416 | LMR | 6.53 KM |
| Saltaire | 8561 | SAE | 6.62 KM |
Nearby Listings
| Address | Price | Type | Score | Distance |
|---|---|---|---|---|
| Welbeck Rise, Off Hollingwood Lane, Bradford, BD7 | £ 195,000 | BUY | 6 / 10 | 0.00 KM |
| Welbeck Rise, Horton Bank Top, Bradford | £ 159,950 | BUY | Unknown | 0.04 KM |
| Tanner Hill Road, Bradford | £ 200,000 | BUY | 7 / 10 | 0.08 KM |
| Tanner Hill Road, Bradford, BD7 4BR | £ 150,000 | BUY | Unknown | 0.14 KM |
| Welbeck Drive, Off Hollingwood Lane, Bradford, BD7 | £ 220,000 | BUY | 6 / 10 | 0.21 KM |
Nearby Properties
| Address | Price | Distance |
|---|---|---|
| 8 Welbeck Rise | £ 250,000 | 0.01 KM |
| 2 Welbeck Rise | £ 140,000 | 0.01 KM |
| 4 Welbeck Rise | £ 110,500 | 0.01 KM |
| 1 Welbeck Rise | £ 121,500 | 0.01 KM |
| 6 Welbeck Rise | £ 148,000 | 0.01 KM |