Bradford Road, Combe Down, Bath
TY

Bradford Road, Combe Down, Bath

By TYNINGS

£ 395,000

Reviews

3 out of 5 stars

TYNINGS says ..

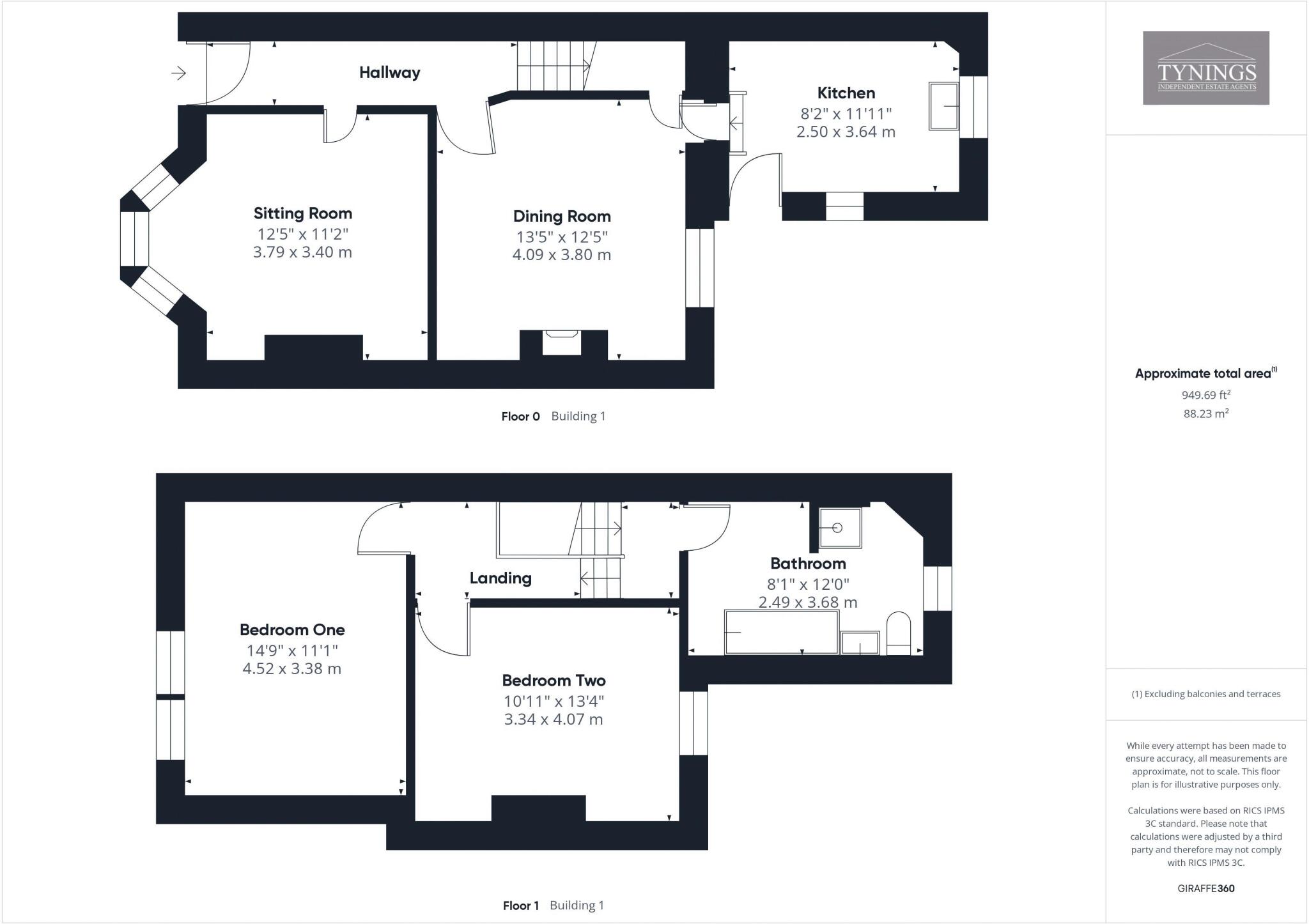
A Victorian two double bedroom mid-terrace home with potential to extend (STPP). Providing a 70' rear garden with driveway parking and garage backing onto open park space. Ideal location for all local amenities and schooling also sold with no onward chain.

Property Oracle says ..

Combe Down is a popular residential area within easy reach of Bath city centre. The property is conveniently located near several primary schools, including Mulberry Park Educate Together Primary Academy and Combe Down Cofe Primary School, both within a short walking distance. Bath Spa train station is also relatively close, providing good transport links. The presence of local amenities and proximity to Bath enhance the desirability of the location.

The property appears to be in need of modernisation. The interior photos reveal dated decor, carpets, and fixtures. The kitchen and bathroom require significant updating. While the structure seems sound, the overall condition suggests a need for refurbishment to bring it up to modern standards. There is some evidence of damp or water damage in the kitchen.

The property benefits from a garden, although it appears relatively small and requires some landscaping work. The inclusion of a garden adds to the appeal, especially for families.

Considering the property’s condition, requiring substantial modernisation, the relatively small plot size, and the average price per square foot in the area being significantly higher than that of the property, the list price of £395,000 appears to be reasonably priced. However, the need for significant renovation work should be factored into any potential buyer’s assessment. The average house price in the area is considerably higher, suggesting that this property is priced competitively, especially given its condition. The nearby properties for sale also support this assessment.

Therefore, we give this property 6 / 10. *Disclaimer: This is our option and does constitute a recommendation or financial advice. Do your own research. *

Price
7
Condition
4
Location
8
Land
5
Bedrooms
2
Bathrooms
1
Sqft (est)
949.70

The heatmap indicates the level of crime in the area. The color of the heatmap indicates the crime severity and recency.

Metrics Year-on-Year

Average area value
812,500.00 £
Increased by 46.80 %
from 553,478.00 £
Est sale value
511,888.30 £
Increased by 8.67 %
from 471,051.20 £
Average area rental value
1,223.00 £/mo
Decreased by 43.04 %
from 2,147.00 £/mo
Est letting value
0.00 £/mo
Decreased by 100.00 %
from 949.70 £/mo
Est rental Yield
1.81 %
Decreased by 61.08 %
from 4.65 %
Crime Rate
10.00 %
Unchanged by 0.00 %
from 10.00 %

Agent Activity

  • TYNINGS created the listing.

Nearby Schools

NameTypeOfstedDistance
Mulberry Park Educate Together Primary AcademyFree Schools0.27 KM
Combe Down Cofe Primary SchoolAcademy ConverterGood0.72 KM
The Paragon School, Junior School Of Prior Park CollegeOther Independent School1.12 KM
Prior Park CollegeOther Independent School1.15 KM
Monkton Prep SchoolOther Independent School1.50 KM

Images

Front of house Sitting room Sitting room Sitting room Hallway Dining room Dining room Dining room Kitchen Kitchen Kitchen Kitchen First floor landing Bedroom one Bedroom one Bedroom one Bedroom one Bedroom two Bedroom views Bedroom two Bathroom Bathroom Bathroom Rear garden Rear garden Car port Garage Backstones Open Space

Nearby Streets

NameAverage PriceAverage SqftDistance
Stonehouse Lane £ 442,50000.00 KM
Cannon Court £ 000.00 KM
Matilda House £ 550,00000.00 KM
Willis Grove £ 475,00000.00 KM
Beechwood Road £ 1,900,00000.00 KM

Nearby Transport

NameNLCTLCDistance
Bath Spa3271BTH2.01 KM
Oldfield Park3219OLF3.75 KM
Freshford3344FFD6.04 KM
Avoncliff3265AVF8.20 KM

Nearby Listings

AddressPriceTypeScoreDistance
Bradford Road, Combe Down, Bath £ 395,000BUY6 / 100.00 KM
Bradford Road, Combe Down, Bath £ 315,000BUY6 / 100.06 KM
Mulberry Way, Bath, BA2 £ 300,000BUY6 / 100.12 KM
Mulberry Way, Combe Down, Bath, BA2 5BU £ 290,000BUY6 / 100.12 KM
Bramble Way, Combe Down £ 1,000,000BUY8 / 100.14 KM

Nearby Properties

AddressPriceDistance
188 Bradford Road £ 455,0000.01 KM
190 Bradford Road £ 97,0000.01 KM
178 Bradford Road £ 502,0000.01 KM
193 Bradford Road £ 260,0000.02 KM
The Old Bakery £ 249,9990.02 KM