Barnard Marcus says ..
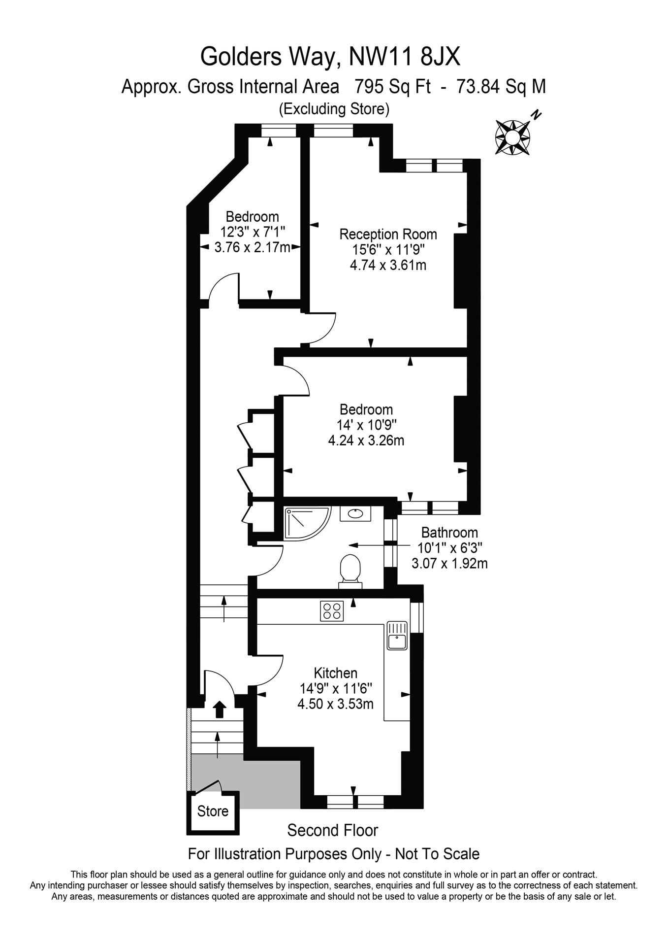
Situated on the desirable Golders Way, this well-presented two-bedroom first-floor maisonette offers bright and spacious living in the heart of Golders Green.
Property Oracle says ..
This two-bedroom property located on Golders Way, in the Childs Hill area of Barnet, is presented for sale at £425,000. The property is a terraced house offering approximately 794.81 square feet of living space, but lacks a garden or any significant land. The property’s condition appears to be average. The images show dated interior decor, fixtures, and fittings throughout, suggesting potential for modernisation and refurbishment. While structurally sound, updates to the kitchen and bathrooms seem necessary to improve the overall standard. The property’s location in Golders Green offers some advantages, with good access to transport and schooling; however, the particular position on Golders Way might not benefit from the most desirable aspects of the surrounding area. The price seems within the competitive range for two-bedroom properties in this part of London, considering comparable recent sales. Potential buyers should factor in costs associated with refurbishment and modernisation to reach the property’s full potential. This will be key to achieving optimal value for money. The lack of outdoor space could prove to be a drawback for some buyers. The attic space offers potential for conversion; however, this would require planning permission and additional expenses.
Therefore, we give this property 5 / 10. *Disclaimer: This is our option and does constitute a recommendation or financial advice. Do your own research. *
- Price
- 7
- Condition
- 5
- Location
- 7
- Land
- 1
- Bedrooms
- 2
- Bathrooms
- 1
- Sqft (est)
- 794.81
The heatmap indicates the level of crime in the area. The color of the heatmap indicates the crime severity and recency.
Metrics Year-on-Year
- Average area value
- 631,500.00 £Decreased by 49.35 %
- Est sale value
- 553,982.57 £Decreased by 12.55 %
- Average area rental value
- 2,142.00 £/moDecreased by 10.94 %
- Est letting value
- 1,589.62 £/moIncreased by 100.00 %
- Est rental Yield
- 4.07 %Increased by 76.19 %
- Crime Rate
- 38.00 %Unchanged by 0.00 %
Agent Activity
Barnard Marcus created the listing.
Nearby Schools
| Name | Type | Ofsted | Distance |
|---|---|---|---|
| Golders Hill School | Other Independent School | Good | 0.39 KM |
| Rimon Jewish Primary School | Free Schools | Good | 0.62 KM |
| Kisharon School | Free Schools Special | 0.67 KM | |
| Shiras Devorah High School | Other Independent School | Inadequate | 0.67 KM |
| Menorah Primary School | Voluntary Aided School | Outstanding | 0.92 KM |
Images
Nearby Streets
| Name | Average Price | Average Sqft | Distance |
|---|---|---|---|
| St Albans Lane | £ 2,500,000 | 0 | 0.00 KM |
| Portsdown Mews | £ 0 | 0 | 0.00 KM |
| Hendon Park Row | £ 0 | 0 | 0.00 KM |
| Malvern Gardens | £ 0 | 0 | 0.00 KM |
| Hill Close | £ 0 | 0 | 0.00 KM |
Nearby Transport
| Name | NLC | TLC | Distance |
|---|---|---|---|
| Cricklewood | 1519 | CRI | 2.21 KM |
| West Hampstead Thameslink | 1525 | WHP | 2.82 KM |
| West Hampstead | 1421 | WHD | 2.94 KM |
| Finchley Road And Frognal | 1445 | FNY | 3.05 KM |
| Brondesbury | 1437 | BSY | 3.10 KM |
Nearby Listings
| Address | Price | Type | Score | Distance |
|---|---|---|---|---|
| Golders Way, London | £ 425,000 | BUY | 5 / 10 | 0.00 KM |
| Golders Way, Golders Green, London, NW11 | £ 500,000 | BUY | 5 / 10 | 0.02 KM |
| Golders Green Road, London, NW11 | £ 375,000 | BUY | 6 / 10 | 0.09 KM |
| Woodstock Road, Golders Green, NW11 | £ 1,950,000 | BUY | Unknown | 0.11 KM |
| Woodstock Road, London, NW11 | £ 1,775,000 | BUY | Unknown | 0.11 KM |
Nearby Properties
| Address | Price | Distance |
|---|---|---|
| 32b Golders Way | £ 77,500 | 0.00 KM |
| 40b Golders Way | £ 300,000 | 0.00 KM |
| 32a Golders Way | £ 282,000 | 0.00 KM |
| 40a Golders Way | £ 75,000 | 0.00 KM |
| 28a Golders Way | £ 320,000 | 0.01 KM |