DO
Brookfield Road, Leeds, LS6 4EJ
By Donnelly and Co
£ 600,000
Reviews
3 out of 5 stars
Donnelly and Co says ..
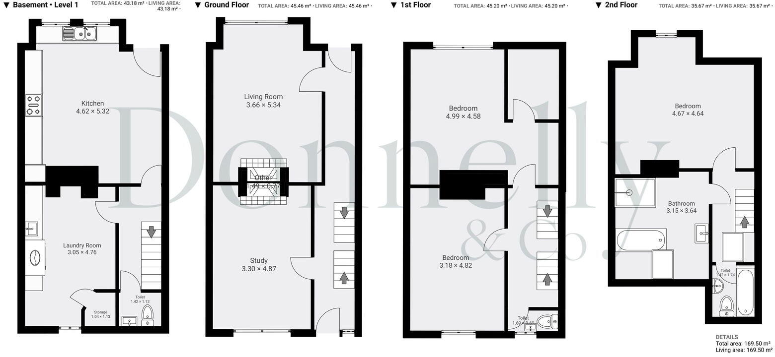
Brookfield Road, Headingley, Leeds, LS6 4EJ Join us for our Open Morning on Saturday, 14th June 2025, from 10:00 AM — viewings strictly by appointment. A beautifully restored Victorian home blending heritage charm with contemporary ...
Property Oracle says ..
Therefore, we give this property 7 / 10. *Disclaimer: This is our option and does constitute a recommendation or financial advice. Do your own research. *
- Price
- 5
- Condition
- 8
- Location
- 8
- Land
- 8
- Bedrooms
- 3
- Bathrooms
- 2
- Sqft (est)
- 1,449.30
The heatmap indicates the level of crime in the area. The color of the heatmap indicates the crime severity and recency.
Metrics Year-on-Year
- Average area value
- 425,754.00 £Increased by 28.76 %
- Est sale value
- 704,359.80 £Increased by 65.87 %
- Average area rental value
- 1,157.00 £/moIncreased by 11.79 %
- Est letting value
- 1,449.30 £/mo
- Est rental Yield
- 3.26 %Decreased by 13.30 %
- Crime Rate
- 4.00 %Unchanged by 0.00 %
from 330,666.00 £
from 424,644.90 £
from 1,035.00 £/mo
from 0.00 £/mo
from 3.76 %
from 4.00 %
Agent Activity
Donnelly and Co created the listing.
Nearby Schools
| Name | Type | Ofsted | Distance |
|---|---|---|---|
| Headingley Children'S Centre | Children's Centre | 0.59 KM | |
| Shire Oak Vc Primary School | Voluntary Controlled School | Good | 0.59 KM |
| Meanwood Church Of England Primary School | Voluntary Aided School | Outstanding | 0.74 KM |
| Lighthouse Futures Trust | Special Post 16 Institution | 0.74 KM | |
| Spring Bank Primary School | Community School | Requires improvement | 1.11 KM |
Images
Nearby Streets
| Name | Average Price | Average Sqft | Distance |
|---|---|---|---|
| Back Wilton Grove | £ 0 | 0 | 0.00 KM |
| Coniston Avenue | £ 287,475 | 0 | 0.00 KM |
| Meanwood Valley Trail (Dales Way Link) | £ 0 | 0 | 0.00 KM |
| School Lane | £ 316,665 | 0 | 0.00 KM |
| Grove Lane | £ 395,000 | 0 | 0.00 KM |
Nearby Transport
| Name | NLC | TLC | Distance |
|---|---|---|---|
| Burley Park | 8500 | BUY | 1.73 KM |
| Headingley | 8498 | HDY | 2.82 KM |
| Leeds | 8487 | LDS | 4.10 KM |
| Kirkstall Forge | 6544 | KLF | 5.82 KM |
| Cottingley | 8505 | COT | 6.71 KM |
Nearby Listings
| Address | Price | Type | Score | Distance |
|---|---|---|---|---|
| Brookfield Road, Leeds | £ 575,000 | BUY | 6 / 10 | 0.00 KM |
| Brookfield Road, Leeds, LS6 4EJ | £ 600,000 | BUY | 7 / 10 | 0.00 KM |
| Brookfield Place, Leeds, West Yorkshire, LS6 | £ 369,999 | BUY | Unknown | 0.09 KM |
| Spring Hill Terrace, Meanwood, Leeds, West Yorkshire | £ 345,000 | BUY | 6 / 10 | 0.12 KM |
| Monk Bridge Terrace, Meanwood, Leeds, LS6 | £ 350,000 | BUY | 7 / 10 | 0.13 KM |
Nearby Properties
| Address | Price | Distance |
|---|---|---|
| 31 Brookfield Road | £ 323,130 | 0.01 KM |
| 4 Brookfield Road | £ 249,995 | 0.01 KM |
| 10 Brookfield Road | £ 310,000 | 0.01 KM |
| 29 Brookfield Road | £ 278,000 | 0.01 KM |
| 13 Brookfield Road | £ 350,000 | 0.01 KM |