Plymouth Road, Redditch, B97 4PA
By Homes by Victoria
£ 600,000
Reviews
3 out of 5 stars
Homes by Victoria says ..
A Home of Timeless Elegance and Modern Comfort - Set on one of the most desirable roads in the area, 116 Plymouth Road is more than just a house, it’s a home that has been lovingly designed, immaculately maintained, and finished to an exceptional standard. From the momen...
Property Oracle says ..
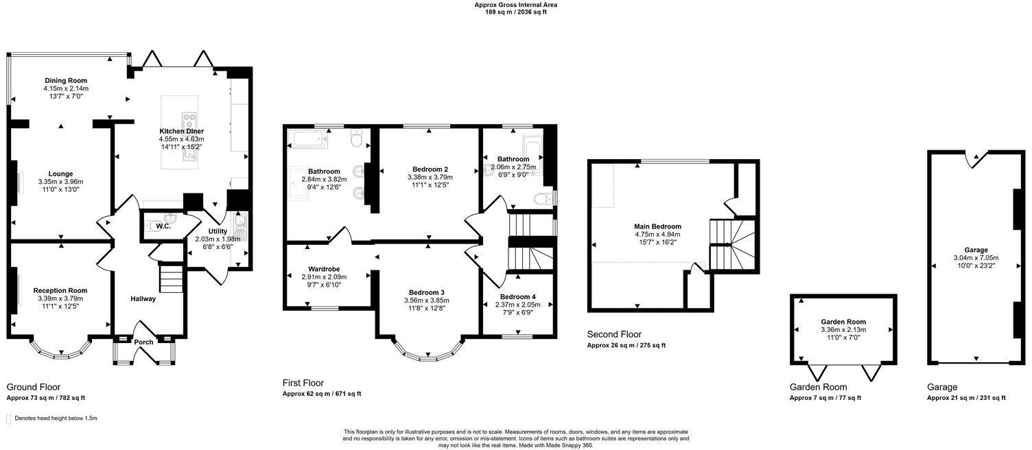
This is a detached property on Plymouth Road, Redditch. It features four bedrooms and two bathrooms. The property is in good condition, with a modern kitchen and bathrooms. It also has a large garden with a summer house and hot tub. The property is located in a residential area, close to schools and transport links. The listing price of £600,000 seems reasonable given the property’s size, condition, and location.
Therefore, we give this property 7 / 10. *Disclaimer: This is our option and does constitute a recommendation or financial advice. Do your own research. *
- Price
- 6
- Condition
- 8
- Location
- 7
- Land
- 9
- Bedrooms
- 4
- Bathrooms
- 2
- Sqft (est)
- 1,808.98
The heatmap indicates the level of crime in the area. The color of the heatmap indicates the crime severity and recency.
Metrics Year-on-Year
- Average area value
- 487,124.00 £Increased by 94.35 %
- Est sale value
- 1,114,331.68 £Increased by 112.41 %
- Average area rental value
- 1,220.00 £/moIncreased by 6.46 %
- Est letting value
- 1,808.98 £/moUnchanged by 0.00 %
- Est rental Yield
- 3.01 %Decreased by 45.17 %
- Crime Rate
- 1.00 %Unchanged by 0.00 %
Agent Activity
Homes by Victoria created the listing.
Nearby Schools
| Name | Type | Ofsted | Distance |
|---|---|---|---|
| St Luke'S Cofe First School | Voluntary Controlled School | Requires improvement | 0.31 KM |
| Holyoakes Field First School | Academy Converter | 1.14 KM | |
| Walkwood Church Of England Middle School | Academy Converter | Good | 1.26 KM |
| The Vaynor First School | Academy Converter | Good | 1.29 KM |
| Birchensale Middle School | Academy Converter | 1.30 KM |
Images
Nearby Streets
| Name | Average Price | Average Sqft | Distance |
|---|---|---|---|
| Lilac Close | £ 0 | 0 | 0.00 KM |
| Station Way | £ 0 | 0 | 0.00 KM |
| Middle Piece Drive | £ 0 | 0 | 0.00 KM |
| Marlpit Lane | £ 0 | 0 | 0.00 KM |
| South Street | £ 0 | 0 | 0.00 KM |
Nearby Transport
| Name | NLC | TLC | Distance |
|---|---|---|---|
| Redditch | 1208 | RDC | 0.96 KM |
| Alvechurch | 1198 | ALV | 5.75 KM |
| Barnt Green | 1096 | BTG | 8.54 KM |
Nearby Listings
| Address | Price | Type | Score | Distance |
|---|---|---|---|---|
| Plymouth Road, Redditch, B97 4PA | £ 600,000 | BUY | 7 / 10 | 0.00 KM |
| Plymouth Road, Southcrest, Redditch, B97 | £ 600,000 | BUY | 7 / 10 | 0.08 KM |
| Soudan, Redditch, Worcestershire, B97 | £ 275,000 | BUY | Unknown | 0.11 KM |
| Plymouth Road, Redditch | £ 270,000 | BUY | 7 / 10 | 0.12 KM |
| Plymouth Road, Redditch, B97 | £ 485,000 | BUY | 7 / 10 | 0.15 KM |
Nearby Properties
| Address | Price | Distance |
|---|---|---|
| 149a Plymouth Road | £ 551,050 | 0.01 KM |
| 131 Plymouth Road | £ 360,000 | 0.01 KM |
| 117 Plymouth Road | £ 230,000 | 0.01 KM |
| 113 Plymouth Road | £ 176,000 | 0.01 KM |
| 129 Plymouth Road | £ 180,000 | 0.01 KM |