New Houses, Pantygasseg, Pontypool
One2One logo

New Houses, Pantygasseg, Pontypool

By One2One

£ 180,000

Reviews

3 out of 5 stars

One2One says ..

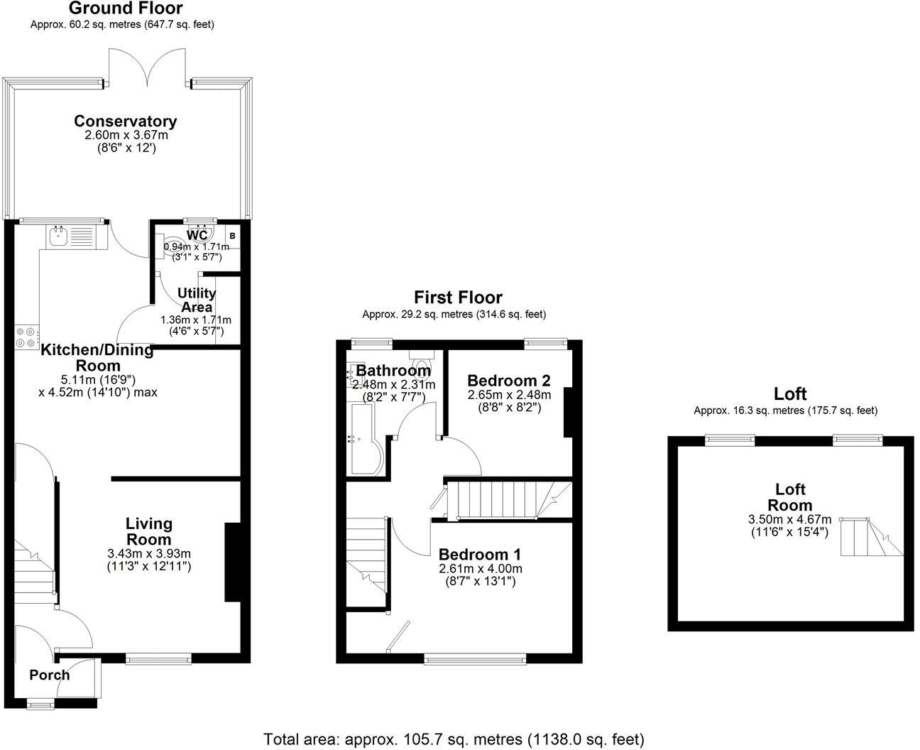
***GUIDE PRICE £180,000-£190,000*** Nestled in the charming area of New Houses, Pantygasseg, this delightful mid terrace house offers a perfect blend of comfort and scenic beauty. With two inviting reception rooms, this property provides ample space for relaxation and entertaining guests. The two...

Property Oracle says ..

This property is a 2 bedroom, 1 bathroom terraced house located in Pontypool, Wales. The list price is £180,000, and the property has 947.22 sqft of living space and a plot size of 1,137.75 sqft. The average house price in the area is £305,948, with an average price per sqft of £364. The property benefits from a pleasant outlook over open countryside, as shown in the photos. The interior shows a mix of updated and original features. While some areas are modern and well-maintained, others show signs of needing some attention. The kitchen appears functional but dated. One of the bedrooms has some minor wall damage visible in the photos. There is a small garden space visible in the photos. Transportation links are available within a reasonable distance, and there are several schools within a few kilometers. Given the location, size, and condition, the asking price is below average for the area.

Therefore, we give this property 6 / 10. *Disclaimer: This is our option and does constitute a recommendation or financial advice. Do your own research. *

Price
7
Condition
6
Location
7
Land
5
Bedrooms
2
Bathrooms
1
Sqft (est)
947.22
Lot (est)
1,137.75

The heatmap indicates the level of crime in the area. The color of the heatmap indicates the crime severity and recency.

Metrics Year-on-Year

Average area value
283,000.00 £
Decreased by 21.70 %
from 361,433.00 £
Est sale value
359,943.60 £
Increased by 38.69 %
from 259,538.28 £
Average area rental value
1,134.00 £/mo
Increased by 19.24 %
from 951.00 £/mo
Est letting value
947.22 £/mo
from 0.00 £/mo
Est rental Yield
4.81 %
Increased by 52.22 %
from 3.16 %
Crime Rate
0.00 %
from 0.00 %

Agent Activity

  • One2One created the listing.

Nearby Schools

NameTypeOfstedDistance
Cwmffrwdoer Primary SchoolWelsh Establishment2.82 KM
George Street Primary SchoolWelsh Establishment4.42 KM
Abersychan Comprehensive SchoolWelsh Establishment4.57 KM
Sofrydd C.P. SchoolWelsh Establishment4.93 KM
St Alban'S R.C. High SchoolWelsh Establishment5.05 KM

Images

att.U5bpPH3ipgTHW-piZAv7zIm1p1iOp0rqbCQqcNPDMxk.jp 2743B625-3D01-4271-8F71-0E60BCC53D85.jpeg 321AD11F-36BF-49CF-AF7A-0F89C99E0A33.jpeg BCD25051-BF5F-4D73-B2BC-8AEA12C1FDEC.jpeg A6AE4FF3-76FB-44F5-84C3-F0D15E18B5AC.jpeg DEB7C3F8-01C4-4AA2-86C1-06B1DD52B58E.jpeg IMG_1760.jpeg IMG_1910.jpeg A0491EDD-EC25-4DE3-A0DC-381CCFB75417.jpeg 71547FA2-E4D5-4B78-89B4-25870844E8B4.jpeg att.AZr_7dhS6XFDW3XrfmsLzlubRX81Fh2-2LYwWRIKac8.jp att.gzsFIbbG6Dr0Tgif2vo9KX5eKn4eGJe4j993vL5i1Qk.jp att.sTRsS61Y1FWC67w0qwvZZAXWqje3NJWmaQG2BmQ0IRQ.jp 495B9529-D906-40C3-A1ED-25301ECBCC41.jpeg 2E6AE673-53A6-4890-B620-7E0B5D9F8C25.png IMG_1783.jpeg A68C8965-17CA-426F-B085-74500B4F5DCD.jpeg

Nearby Streets

NameAverage PriceAverage SqftDistance
Ty Bwmpyn Road £ 210,00000.00 KM

Nearby Transport

NameNLCTLCDistance
Llanhilleth9916LTH5.81 KM
Newbridge9919NBE7.22 KM
Pontypool And New Inn3744PPL7.66 KM
Cwmbran3738CWM8.41 KM
Crosskeys9902CKY9.24 KM

Nearby Listings

AddressPriceTypeScoreDistance
New Houses, Pantygasseg, Pontypool £ 180,000BUY6 / 100.00 KM
Bush Terrace, Pantygasseg, Pontypool £ 170,000BUY6 / 100.07 KM
Bush Terrace , Pantygasseg £ 180,000BUY7 / 100.08 KM
New Houses, Pantygasseg, NP4 £ 180,000BUY7 / 100.09 KM
New Houses, Pantygasseg, Pontypool, Torfaen £ 180,000BUY7 / 100.10 KM

Nearby Properties

AddressPriceDistance
5 Bush Terrace £ 124,9990.07 KM
2 Bush Terrace £ 69,4500.07 KM
3 Bush Terrace £ 105,0000.07 KM
7 Bush Terrace £ 81,5000.07 KM
6 Bush Terrace £ 95,0000.07 KM