29/6 Barony Street, Edinburgh, EH3
By D J Alexander
£ 240,000
Reviews
2 out of 5 stars
D J Alexander says ..
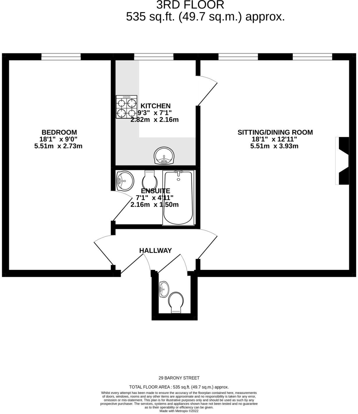
Well-presented one-bedroom third floor flat located within a traditional C-listed tenement in a sought-after Broughton address. The property is in walk-in condition and ideal buy for first time buyer, home mover or buy to let investor.
Property Oracle says ..
This is a one-bedroom flat located in the City Centre of Edinburgh. The property is in generally good condition, with a modern kitchen and bathroom. The flat is located in a desirable location, close to amenities, cultural attractions, and transport links. The property is competitively priced for the area.
Therefore, we give this property 5 / 10. *Disclaimer: This is our option and does constitute a recommendation or financial advice. Do your own research. *
- Price
- 7
- Condition
- 7
- Location
- 8
- Land
- 1
- Bedrooms
- 1
- Bathrooms
- 1
- Sqft (est)
- 535.00
The heatmap indicates the level of crime in the area. The color of the heatmap indicates the crime severity and recency.
Metrics Year-on-Year
- Average area value
- 322,952.00 £Decreased by 27.89 %
- Est sale value
- 184,040.00 £Decreased by 6.52 %
- Average area rental value
- 1,604.00 £/moDecreased by 7.50 %
- Est letting value
- 535.00 £/moUnchanged by 0.00 %
- Est rental Yield
- 5.96 %Increased by 28.17 %
- Crime Rate
- 0.00 %
Agent Activity
D J Alexander created the listing.
Nearby Schools
| Name | Type | Ofsted | Distance |
|---|---|---|---|
| Merchiston Castle School | Offshore Schools | 8.61 KM |
Images
Nearby Streets
| Name | Average Price | Average Sqft | Distance |
|---|---|---|---|
| Barony Place | £ 370,000 | 0 | 0.00 KM |
| Hart Street Lane | £ 0 | 0 | 0.00 KM |
| North St Andrew Street | £ 0 | 0 | 0.00 KM |
| East Scotland Street Lane | £ 612,500 | 0 | 0.00 KM |
| Cathedral Lane | £ 0 | 0 | 0.00 KM |
Nearby Transport
| Name | NLC | TLC | Distance |
|---|---|---|---|
| Edinburgh | 9328 | EDB | 0.69 KM |
| Haymarket | 9419 | HYM | 3.33 KM |
| Slateford | 9236 | SLA | 6.77 KM |
| Kingsknowe | 9217 | KGE | 9.27 KM |
Nearby Listings
| Address | Price | Type | Score | Distance |
|---|---|---|---|---|
| 29/6 Barony Street, Edinburgh, EH3 | £ 240,000 | BUY | 5 / 10 | 0.00 KM |
| 14/2F2 Barony Street, Edinburgh, EH3 6PE | £ 310,000 | BUY | 6 / 10 | 0.01 KM |
| New Broughton, Edinburgh, Midlothian | £ 575,000 | BUY | 7 / 10 | 0.06 KM |
| 34/4 Barony Street, Edinburgh, EH3 | £ 230,000 | BUY | 7 / 10 | 0.08 KM |
| Barony Street, Edinburgh, EH3 | £ 360,000 | BUY | 6 / 10 | 0.08 KM |