Cote & Castle says ..
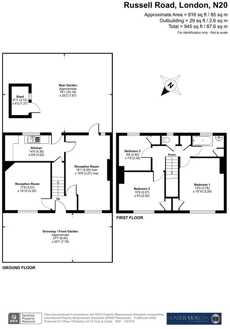
Hunter Morgan is excited to introduce this delightful three-bedroom mid-terraced property to the market, thoughtfully designed with a spacious layout that caters perfectly to family living. As you step inside, you are greeted by two generously sized reception rooms. The welcoming hallway...
Property Oracle says ..
Therefore, we give this property 6 / 10. *Disclaimer: This is our option and does constitute a recommendation or financial advice. Do your own research. *
- Price
- 7
- Condition
- 5
- Location
- 8
- Land
- 7
- Bedrooms
- 3
- Bathrooms
- 1
- Sqft (est)
- 945.00
- Lot (est)
- 700.00
The heatmap indicates the level of crime in the area. The color of the heatmap indicates the crime severity and recency.
Metrics Year-on-Year
- Average area value
- 1,302,500.00 £Increased by 43.07 %
- Est sale value
- 510,300.00 £Decreased by 5.10 %
- Average area rental value
- 2,439.00 £/moIncreased by 4.59 %
- Est letting value
- 945.00 £/moUnchanged by 0.00 %
- Est rental Yield
- 2.25 %Decreased by 26.71 %
- Crime Rate
- 6.00 %Unchanged by 0.00 %
from 910,395.00 £
from 537,705.00 £
from 2,332.00 £/mo
from 945.00 £/mo
from 3.07 %
from 6.00 %
Agent Activity
Cote & Castle created the listing.
Nearby Schools
| Name | Type | Ofsted | Distance |
|---|---|---|---|
| Sacred Heart Roman Catholic Primary School | Voluntary Aided School | Good | 0.15 KM |
| All Saints' Cofe Primary School N20 | Voluntary Aided School | Good | 0.46 KM |
| Oakleigh School & Acorn Assessment Centre | Community Special School | Outstanding | 0.70 KM |
| Queenswell Infant & Nursery School | Community School | Good | 0.75 KM |
| Queenswell Junior School | Community School | Good | 0.75 KM |
Images
Nearby Streets
| Name | Average Price | Average Sqft | Distance |
|---|---|---|---|
| Church Close | £ 0 | 0 | 0.00 KM |
| Lawrence Campe Close | £ 0 | 0 | 0.00 KM |
| Oakleigh Road North | £ 485,000 | 0 | 0.00 KM |
| St Ninian's Court | £ 302,500 | 0 | 0.00 KM |
| Leadbeaters Close | £ 0 | 0 | 0.00 KM |
Nearby Transport
| Name | NLC | TLC | Distance |
|---|---|---|---|
| Oakleigh Park | 6020 | OKL | 1.00 KM |
| New Barnet | 6018 | NBA | 2.41 KM |
| New Southgate | 6019 | NSG | 2.82 KM |
| Hadley Wood | 6075 | HDW | 4.60 KM |
| Bowes Park | 6027 | BOP | 5.35 KM |
Nearby Listings
| Address | Price | Type | Score | Distance |
|---|---|---|---|---|
| Russell Road, London | £ 597,500 | BUY | 6 / 10 | 0.00 KM |
| Russell Road, London | £ 570,000 | BUY | 6 / 10 | 0.00 KM |
| Oakleigh Road North, London | £ 700,000 | BUY | 7 / 10 | 0.06 KM |
| Russell Road, London | £ 800,000 | BUY | 7 / 10 | 0.07 KM |
| 4 Russell Road, Whetstone, London, N20 0TS | £ 475,000 | BUY | 6 / 10 | 0.07 KM |
Nearby Properties
| Address | Price | Distance |
|---|---|---|
| 9 Hobart Close | £ 383,500 | 0.08 KM |
| 4 Hobart Close | £ 370,000 | 0.08 KM |
| 3 Hobart Close | £ 213,500 | 0.08 KM |
| 6 Hobart Close | £ 268,000 | 0.08 KM |
| 24 Oakleigh Park South | £ 1,477,500 | 0.12 KM |