LE
Alconbury Close, Great Sankey, Warrington
By Leaders Sales
£ 270,000
Reviews
3 out of 5 stars
Leaders Sales says ..
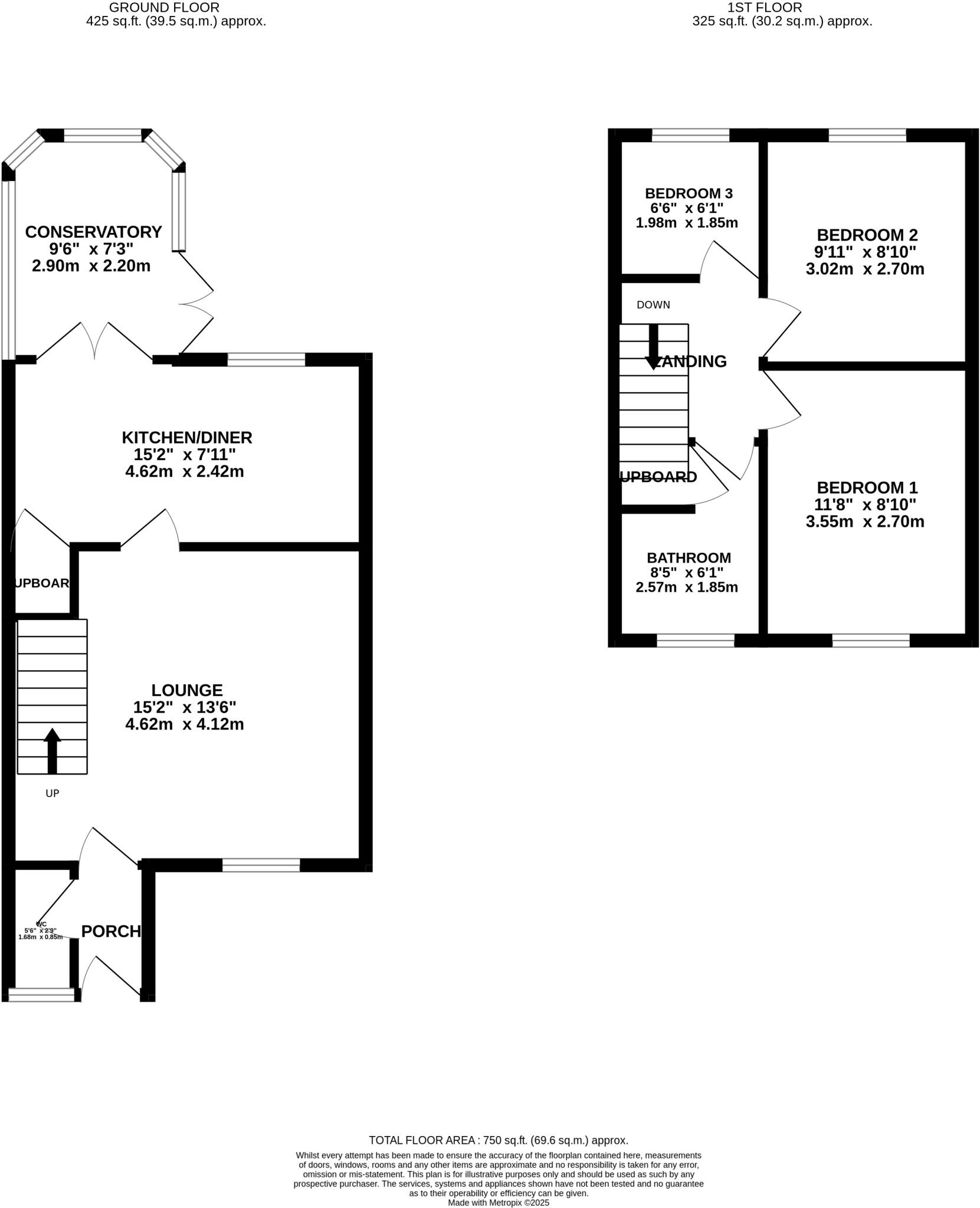
Presenting for sale this semi-detached house in a highly sought-after location. This property is in good condition and offers a desirable lifestyle with nearby schools, local amenities, parks, and walking routes all within easy reach. The house boasts three bedrooms; two of which are sizable doub...
Property Oracle says ..
Therefore, we give this property 6 / 10. *Disclaimer: This is our option and does constitute a recommendation or financial advice. Do your own research. *
- Price
- 6
- Condition
- 7
- Location
- 7
- Land
- 7
- Bedrooms
- 3
- Bathrooms
- 1
- Sqft (est)
- 689.33
The heatmap indicates the level of crime in the area. The color of the heatmap indicates the crime severity and recency.
Metrics Year-on-Year
- Average area value
- 230,000.00 £Decreased by 0.66 %
- Est sale value
- 197,148.38 £Increased by 13.94 %
- Average area rental value
- 841.00 £/moDecreased by 14.96 %
- Est letting value
- 689.33 £/moUnchanged by 0.00 %
- Est rental Yield
- 4.39 %Decreased by 14.42 %
- Crime Rate
- 9.00 %Unchanged by 0.00 %
from 231,537.00 £
from 173,021.83 £
from 989.00 £/mo
from 689.33 £/mo
from 5.13 %
from 9.00 %
Agent Activity
Leaders Sales created the listing.
Nearby Schools
| Name | Type | Ofsted | Distance |
|---|---|---|---|
| Sankey Valley St James Church Of England Primary School | Voluntary Aided School | Good | 0.33 KM |
| Chapelford Village Primary School | Academy Converter | 0.74 KM | |
| St Gregory'S Catholic High School | Voluntary Aided School | Good | 1.34 KM |
| Great Sankey Primary School | Academy Converter | Good | 1.39 KM |
| Great Sankey Children'S Centre | Children's Centre | 1.39 KM |
Images
Nearby Streets
| Name | Average Price | Average Sqft | Distance |
|---|---|---|---|
| Hilton Avenue | £ 220,000 | 0 | 0.00 KM |
| Worcester Close | £ 0 | 0 | 0.00 KM |
| Wyoming Close | £ 0 | 0 | 0.00 KM |
| Monterey Close | £ 0 | 0 | 0.00 KM |
| Rochester Close | £ 0 | 0 | 0.00 KM |
Nearby Transport
| Name | NLC | TLC | Distance |
|---|---|---|---|
| Warrington West | 6583 | WAW | 0.60 KM |
| Sankey For Penketh | 2388 | SNK | 1.94 KM |
| Warrington Bank Quay | 2384 | WBQ | 3.45 KM |
| Warrington Central | 2390 | WAC | 4.40 KM |
| Earlestown | 2292 | ERL | 6.57 KM |
Nearby Listings
| Address | Price | Type | Score | Distance |
|---|---|---|---|---|
| Alconbury Close, Great Sankey, Warrington | £ 270,000 | BUY | 6 / 10 | 0.00 KM |
| Alconbury Close, Great Sankey, WA5 | £ 249,950 | BUY | 7 / 10 | 0.03 KM |
| Hilton Avenue, Great Sankey, Warrington | £ 220,000 | BUY | 7 / 10 | 0.12 KM |
| Almer Drive, Great Sankey, WA5 | £ 289,950 | BUY | 6 / 10 | 0.13 KM |
| Almer Drive, Great Sankey, Warrington, Cheshire, WA5 | £ 240,000 | BUY | 6 / 10 | 0.13 KM |
Nearby Properties
| Address | Price | Distance |
|---|---|---|
| 22 Alconbury Close | £ 205,000 | 0.01 KM |
| 45 Alconbury Close | £ 119,950 | 0.01 KM |
| 1 Alconbury Close | £ 119,950 | 0.01 KM |
| 27 Alconbury Close | £ 122,000 | 0.01 KM |
| 52 Alconbury Close | £ 104,950 | 0.01 KM |