Brown & Merry says ..
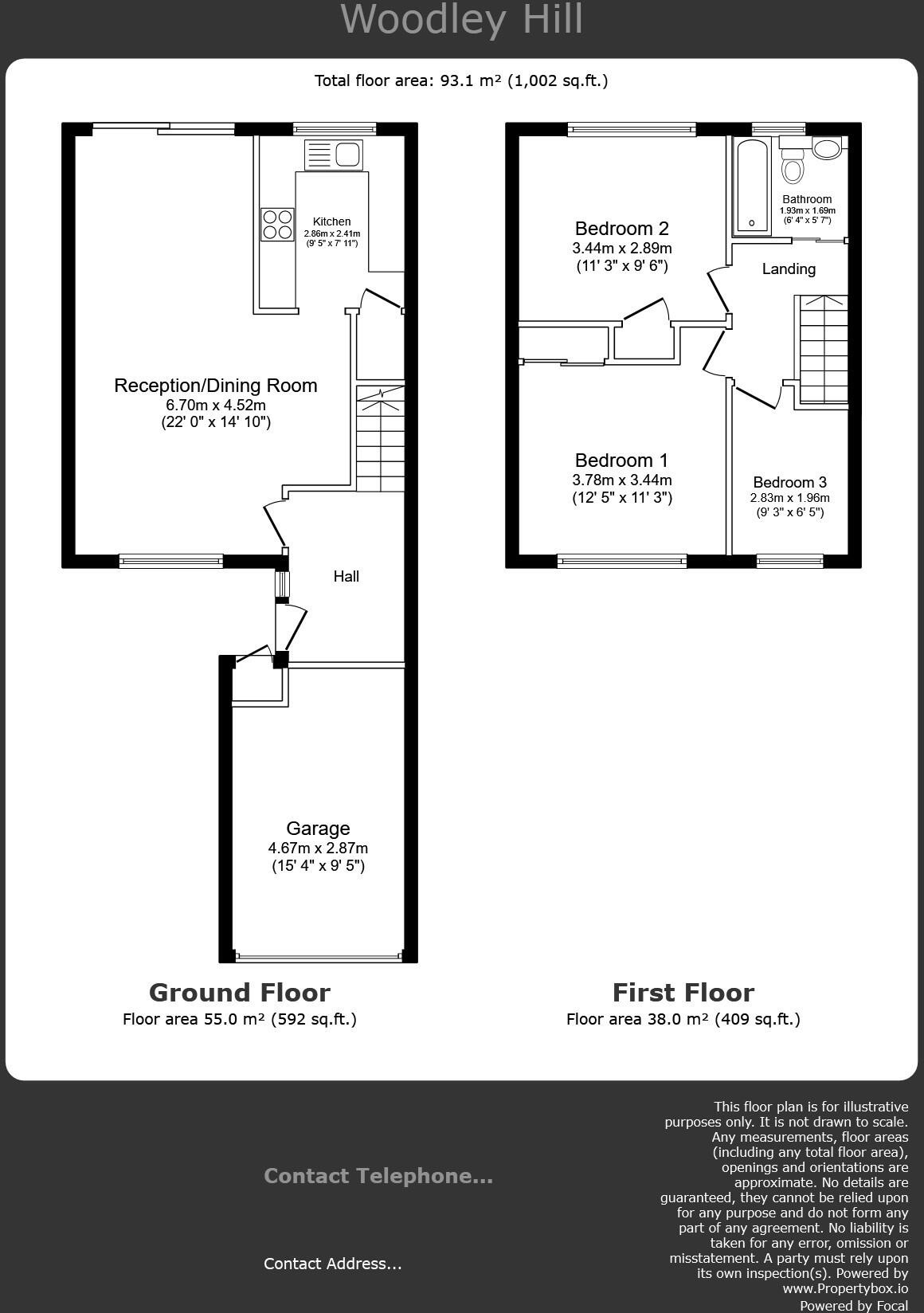
Three bedroom family home in secluded road to the south side of Chesham is offered for sale with NO ONWARD CHAIN. The property is less than 1.5 miles from the town centre and Chesham Underground Station and less than 2 miles from mainline Amersham station.
Property Oracle says ..
This three-bedroom terraced house in Chesham, Buckinghamshire is listed at £450,000. The property benefits from a garage and a garden, which are desirable features in this area. The average house price in the area is significantly higher at £569,121, suggesting that this property may be underpriced, although the lack of sqft data for comparable properties makes a definitive conclusion difficult. The property appears to be in good condition based on the images provided and benefits from a modern kitchen and bathroom. Its proximity to local schools and transport links (Amersham tube station is 2.19km away) adds to its appeal. However, more information is needed to fully assess the property’s condition and value.
Therefore, we give this property 7 / 10. *Disclaimer: This is our option and does constitute a recommendation or financial advice. Do your own research. *
- Price
- 7
- Condition
- 8
- Location
- 8
- Land
- 7
- Bedrooms
- 3
- Bathrooms
- 1
- Sqft (est)
- 880.49
- Lot (est)
- 1,002.12
The heatmap indicates the level of crime in the area. The color of the heatmap indicates the crime severity and recency.
Metrics Year-on-Year
- Average area value
- 551,111.00 £Increased by 5.73 %
- Est sale value
- 596,091.73 £Increased by 33.27 %
- Average area rental value
- 1,300.00 £/moDecreased by 22.06 %
- Est letting value
- 880.49 £/moUnchanged by 0.00 %
- Est rental Yield
- 2.83 %Decreased by 26.30 %
- Crime Rate
- 11.00 %Unchanged by 0.00 %
Agent Activity
Brown & Merry created the listing.
Nearby Schools
| Name | Type | Ofsted | Distance |
|---|---|---|---|
| Waterside Primary Academy | Academy Sponsor Led | 0.48 KM | |
| Chesham Bois Church Of England School | Academy Converter | 0.89 KM | |
| Our Lady'S Catholic Primary School | Academy Converter | 1.20 KM | |
| The Beacon School | Other Independent School | 1.33 KM | |
| Thomas Harding Junior School | Academy Converter | 1.43 KM |
Images
Nearby Streets
| Name | Average Price | Average Sqft | Distance |
|---|---|---|---|
| Springfield Close | £ 0 | 0 | 0.00 KM |
| Gordon Road | £ 0 | 0 | 0.00 KM |
| Cheyne Close | £ 0 | 0 | 0.00 KM |
| Fearney Field Close | £ 0 | 0 | 0.00 KM |
| The Ridings | £ 1,395,000 | 0 | 0.00 KM |
Nearby Transport
| Name | NLC | TLC | Distance |
|---|---|---|---|
| Amersham | 506 | AMR | 2.19 KM |
| Chalfont And Latimer | 539 | CFO | 5.62 KM |
| Berkhamsted | 1390 | BKM | 9.05 KM |
| Seer Green | 3061 | SRG | 9.33 KM |
Nearby Listings
| Address | Price | Type | Score | Distance |
|---|---|---|---|---|
| Woodley Hill, Chesham | £ 450,000 | BUY | 7 / 10 | 0.00 KM |
| Woodley Hill, Chesham, Buckinghamshire, HP5 | £ 400,000 | BUY | Unknown | 0.01 KM |
| Woodley Hill, Chesham, HP5 1SL | £ 395,000 | BUY | 7 / 10 | 0.01 KM |
| Bois Moor Road, Chesham | £ 699,995 | BUY | 7 / 10 | 0.07 KM |
| Bois Moor Road, Chesham | £ 415,000 | BUY | 7 / 10 | 0.07 KM |
Nearby Properties
| Address | Price | Distance |
|---|---|---|
| 1 Alexander House | £ 240,000 | 0.00 KM |
| 33 Woodley Hill | £ 220,000 | 0.00 KM |
| 49 Woodley Hill | £ 280,000 | 0.00 KM |
| 21 Woodley Hill | £ 208,800 | 0.00 KM |
| 51 Woodley Hill | £ 450,000 | 0.00 KM |