Leighton Snow says ..
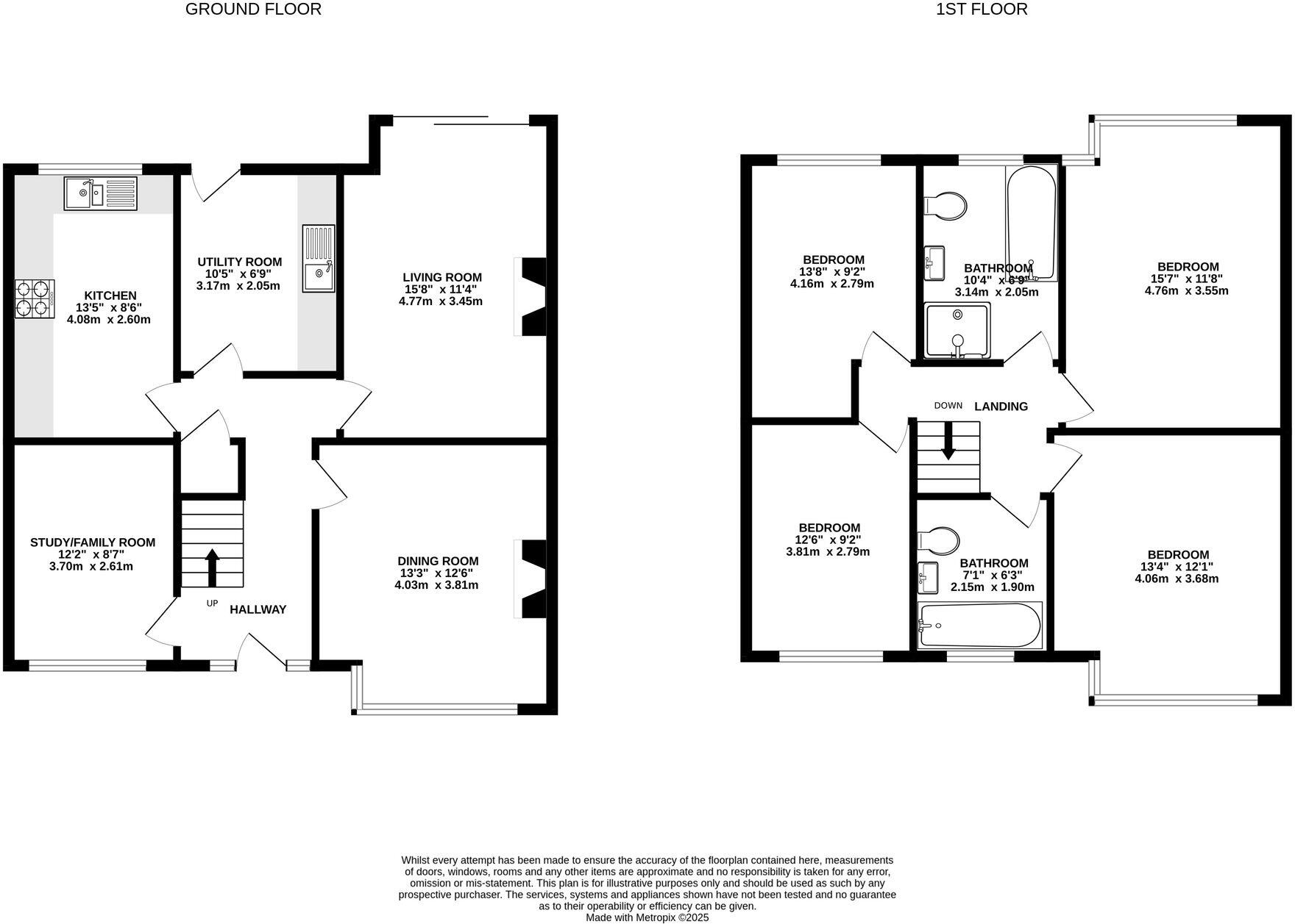
An excellent opportunity to view this double-fronted four bedroom semi-detached property situated on one of the most sought after roads in the area, which hosts an array of space, eye-catching features throughout and possessing the prospect of extending further. Backing onto open fields, the prop...
Property Oracle says ..
This four-bedroom, one-bathroom semi-detached house located on Bridle Road in Woodford, Stockport, presents a compelling proposition for families seeking a spacious home in a desirable area. The property benefits from a substantial garden offering ample outdoor space for children and entertaining. The interior shows a clean and well-maintained appearance. The kitchen, although functional, appears to be an area that would benefit from some modernization to enhance the overall appeal. While the provided images show an inviting living space with hardwood flooring, the overall interior decor might be considered dated by some buyers and updating may be a consideration depending upon personal preferences.
The location is a key selling point. Woodford’s reputation for excellent schooling and a family-friendly environment is well-established. Proximity to train stations adds convenience for commuters. However, potential buyers should independently verify details of local amenities and transportation connections and conduct further research to confirm their suitability for their needs. While the house requires minimal work, there is significant scope for modernization and cosmetic upgrades which would add potential value. Ultimately, this property stands as a good value proposition in a highly sought-after area, although the lack of comprehensive comparative pricing data for similar properties in the immediate vicinity prevents a more precise assessment of its market value.
Therefore, we give this property 6 / 10. *Disclaimer: This is our option and does constitute a recommendation or financial advice. Do your own research. *
- Price
- 7
- Condition
- 6
- Location
- 7
- Land
- 7
- Bedrooms
- 4
- Bathrooms
- 1
- Sqft (est)
- 1,363.46
The heatmap indicates the level of crime in the area. The color of the heatmap indicates the crime severity and recency.
Metrics Year-on-Year
- Average area value
- 646,429.00 £Increased by 3.01 %
- Est sale value
- 640,826.20 £Increased by 44.62 %
- Average area rental value
- 2,000.00 £/moDecreased by 6.06 %
- Est letting value
- 1,363.46 £/moUnchanged by 0.00 %
- Est rental Yield
- 3.71 %Decreased by 8.85 %
- Crime Rate
- 0.00 %
Agent Activity
Leighton Snow marked this listing as sold.
Leighton Snow created the listing.
Nearby Schools
| Name | Type | Ofsted | Distance |
|---|---|---|---|
| Queensgate Primary School | Community School | Outstanding | 1.04 KM |
| Lostock Hall Primary School | Academy Converter | 1.57 KM | |
| Pownall Green Primary School | Community School | Outstanding | 2.34 KM |
| Ladybrook Primary School | Community School | Outstanding | 2.41 KM |
| Bramhall High School | Community School | Requires improvement | 2.55 KM |
Images
Nearby Streets
| Name | Average Price | Average Sqft | Distance |
|---|---|---|---|
| Dobson Lane | £ 852,600 | 0 | 0.00 KM |
| Hawker Road | £ 625,000 | 0 | 0.00 KM |
| Ashton Close | £ 0 | 0 | 0.00 KM |
| Commodore Close | £ 0 | 0 | 0.00 KM |
| Fulmar Road | £ 550,000 | 0 | 0.00 KM |
Nearby Transport
| Name | NLC | TLC | Distance |
|---|---|---|---|
| Bramhall | 2944 | BML | 2.06 KM |
| Poynton | 2874 | PYT | 2.41 KM |
| Adlington (Cheshire) | 2939 | ADC | 3.63 KM |
| Woodsmoor | 2773 | WSR | 4.94 KM |
| Cheadle Hulme | 2870 | CHU | 5.09 KM |
Nearby Listings
| Address | Price | Type | Score | Distance |
|---|---|---|---|---|
| Bridle Road, Woodford, SK7 | £ 675,000 | BUY | 6 / 10 | 0.00 KM |
| Chester Road, Woodford, SK7 | £ 850,000 | BUY | 7 / 10 | 0.12 KM |
| Bridle Road, Woodford | £ 750,000 | BUY | 8 / 10 | 0.13 KM |
| Bridle Road, Woodford, SK7 | £ 545,000 | BUY | 7 / 10 | 0.14 KM |
| BRIDLE ROAD, Woodford SK7 1QH | £ 595,000 | BUY | 7 / 10 | 0.16 KM |
Nearby Properties
| Address | Price | Distance |
|---|---|---|
| 2 Bridle Court | £ 81,000 | 0.06 KM |
| 5 Bridle Court | £ 194,600 | 0.06 KM |
| 6 Bridle Court | £ 71,000 | 0.08 KM |
| 3 Bridle Court | £ 235,250 | 0.08 KM |
| 1 Bridle Court | £ 152,000 | 0.08 KM |