Holyoke Grove, Leamington Spa
CO

Holyoke Grove, Leamington Spa

By Complete Estate Agents

£ 365,000

Reviews

3 out of 5 stars

Complete Estate Agents says ..

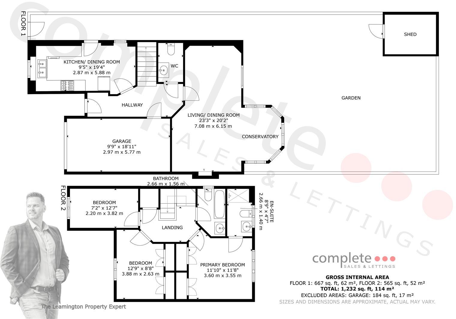
A detached family home built by the Builders Crest Nicholson in around 2002. The property comprises an entrance hall, guest WC, a breakfast kitchen, a full-width lounge diner, a conservatory, three well-proportioned bedrooms, an en-suite and a family bathroom. It includes a pleasant landscaped So...

Property Oracle says ..

This is a detached property located on Holyoke Grove in Whitnash, Leamington Spa. It features three bedrooms and two bathrooms, with a total square footage of 1,227.09 sqft. The property includes a garden and a garage. The house appears to be in good condition, with modern interiors. The location offers convenient access to local schools and transportation links. The asking price of £365,000 seems reasonable given the property’s size, condition, and location within the Warwickshire area. The property benefits from a conservatory, adding extra living space and value.

Therefore, we give this property 7 / 10. *Disclaimer: This is our option and does constitute a recommendation or financial advice. Do your own research. *

Price
7
Condition
8
Location
7
Land
6
Bedrooms
3
Bathrooms
2
Sqft (est)
1,227.09

The heatmap indicates the level of crime in the area. The color of the heatmap indicates the crime severity and recency.

Metrics Year-on-Year

Average area value
385,625.00 £
Increased by 6.37 %
from 362,536.00 £
Est sale value
504,333.99 £
Increased by 170.39 %
from 186,517.68 £
Average area rental value
1,750.00 £/mo
Increased by 26.81 %
from 1,380.00 £/mo
Est letting value
1,227.09 £/mo
from 0.00 £/mo
Est rental Yield
5.45 %
Increased by 19.26 %
from 4.57 %
Crime Rate
5.00 %
Unchanged by 0.00 %
from 5.00 %

Agent Activity

  • Complete Estate Agents created the listing.

Nearby Schools

NameTypeOfstedDistance
St Joseph'S Catholic Primary SchoolVoluntary Aided SchoolGood0.52 KM
St. Margaret'S Cofe Junior SchoolVoluntary Controlled SchoolGood0.53 KM
Briar Hill Infant SchoolCommunity SchoolOutstanding0.61 KM
Whitnash Primary SchoolCommunity SchoolGood1.31 KM
VlcOther Independent School1.33 KM

Images

5d864443-D-48E9-AF99-71E119B4FFCB-9229-000003DE318 overhead.jpg c89ca2ff--4CE9-BC26-04ABA11CEB87-62512-000014DF7EB 7bc611bc--44FF-A5B9-3EFC7BC3609A-62512-000014DE67A 7e41ebd0--4D2F-922B-C5EDF340FB8C-62512-000014DE670 958eec78-3-47C7-9A62-8A7FC51294F9-9229-000003DE2FC c33bdeed--4F95-A67E-F16BC33EDB80-62512-000014DE67F 3c9bf0d6--407E-B837-A2115FE4BD1A-62512-000014DF7F0 9ff3930d--4788-A614-C78CD8EF9FC2-62512-000014DE64E 62ae7b96--4FA8-9757-08642834CA3B-62512-000014DE664 e2cfed60--42B9-B714-0981E2C4E8A4-62512-000014DE654 map.jpg Promap-3045618-3144219-750400-1.jpg 00d088df-4-4F2D-96B6-16D779D27F65-9229-000003DE354 6af19dd5--4D1C-83EA-34F8371CBE1B-62512-000014DE675 dc674f8a--475E-B4C5-C23E26712E9D-62512-000014DE621 c6808f8a--4316-80F0-B47939A3A2EC-62512-000014DE643 68f50406--4137-AB9C-D5CDC41EA405-62512-000014DE631 14f6b0f4--4269-AED1-86EB40D10272-62512-000014DE61B b9c804c9--49B2-AF51-68F50638AA22-62512-000014DF7E5 2cf02bc5--45B1-B8EB-6A164BA19CFF-62512-000014DF800 63d2fafe--4A58-9C57-45A705DD8D0D-62512-000014DF7E0 f23f190b--4BA3-947C-E4DAEE60FC7C-62512-000014DE66A d02263da--4187-8711-659065B42595-62512-000014DE63D 8af3b45f--45F9-BB52-E2D3E94FB427-62512-000014DE648 66d4a705--4FE6-9CA0-9B99A0515DB6-62512-000014DE638 99aa33b8-3-4712-A7A2-5D8881135F33-9229-000003DE2ED 5c77e488--4020-92C7-6EC47BDCB2A4-62512-000014DE65F Promap-3045618-3144219-750400-2.jpg 0e2b8acf--4CF9-AC70-A6118426E246-62512-000014DF7FA

Nearby Streets

NameAverage PriceAverage SqftDistance
Burrows Close £ 000.00 KM
Cotterill's Close £ 000.00 KM
Laburnum Drive £ 000.00 KM
Curran Close £ 000.00 KM
Bremner Drive £ 450,00000.00 KM

Nearby Transport

NameNLCTLCDistance
Leamington Spa4597LMS2.96 KM
Warwick4600WRW6.95 KM

Nearby Listings

AddressPriceTypeScoreDistance
Holyoke Grove, Leamington Spa £ 365,000BUY7 / 100.00 KM
Holyoke Grove, Whitnash, CV31 £ 320,000BUY5 / 100.07 KM
Erica Drive, Whitnash, Leamington Spa, CV31 2RW £ 590,000BUY7 / 100.07 KM
Holyoke Grove, Leamington Spa £ 650,000BUY7 / 100.12 KM
Erica Drive, Whitnash, Leamington Spa, Warwickshire, CV31 £ 375,000BUY7 / 100.12 KM

Nearby Properties

AddressPriceDistance
19 Holyoke Grove £ 115,5000.04 KM
8 Holyoke Grove £ 288,5000.04 KM
23 Holyoke Grove £ 115,5000.04 KM
30 Holyoke Grove £ 472,0000.04 KM
15 Holyoke Grove £ 135,9500.04 KM