77A Springkell Avenue, Pollokshields, G41 4DL
By Corum
£ 259,000
Reviews
3 out of 5 stars
Corum says ..
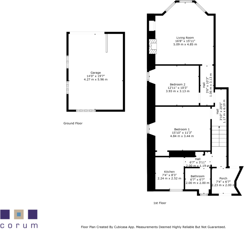
An upper conversion of a charming sandstone detached villa that sits in a quiet cul -de -sac with elevated, uninterrupted views over the duck pond in Maxwell Park.
Property Oracle says ..
This property is a 2-bedroom apartment located in Pollokshields, Glasgow. The apartment is situated in a desirable area, close to several train stations providing convenient access to Glasgow city centre and beyond. While specific school proximity information is unavailable, Pollokshields generally has good local schooling options. The property itself appears to be in good condition, well-maintained, and benefits from a traditional style with period features. The images showcase a well-presented interior and exterior, suggesting minimal need for renovation. The property also includes a small, manageable garden and parking. Considering the average property price and price per square foot in the area, the list price of £259,000 appears to be in line with the market value, especially given the property’s condition and location.
Therefore, we give this property 7 / 10. *Disclaimer: This is our option and does constitute a recommendation or financial advice. Do your own research. *
- Price
- 8
- Condition
- 8
- Location
- 9
- Land
- 4
- Bedrooms
- 2
- Bathrooms
- 1
The heatmap indicates the level of crime in the area. The color of the heatmap indicates the crime severity and recency.
Metrics Year-on-Year
- Average area value
- 211,230.00 £Decreased by 14.84 %
- Average area rental value
- 1,315.00 £/moIncreased by 14.45 %
- Est rental Yield
- 7.47 %Increased by 34.35 %
- Crime Rate
- 0.00 %
Agent Activity
Corum created the listing.
Images
Nearby Streets
| Name | Average Price | Average Sqft | Distance |
|---|---|---|---|
| Springkell Gate | £ 0 | 0 | 0.00 KM |
| Burrell Court | £ 220,000 | 0 | 0.00 KM |
| Nigel Gardens | £ 375,000 | 0 | 0.00 KM |
| St Ronan's Drive | £ 0 | 0 | 0.00 KM |
| Terregles Crescent | £ 0 | 0 | 0.00 KM |
Nearby Transport
| Name | NLC | TLC | Distance |
|---|---|---|---|
| Maxwell Park | 9802 | MAX | 0.36 KM |
| Crossmyloof | 9796 | CMY | 0.96 KM |
| Shawlands | 9823 | SHL | 0.97 KM |
| Dumbreck | 9622 | DUM | 1.26 KM |
| Pollokshaws East | 9820 | PWE | 1.58 KM |
Nearby Listings
| Address | Price | Type | Score | Distance |
|---|---|---|---|---|
| 77A Springkell Avenue, Pollokshields, G41 4DL | £ 259,000 | BUY | 7 / 10 | 0.00 KM |
| Merchants Gate, 69 Springkell Avenue, Glasgow | £ 175,000 | BUY | 8 / 10 | 0.18 KM |
| “Rascarrel”, 5 Hamilton Avenue, Pollokshields, G41 4JG | £ 995,000 | BUY | 8 / 10 | 0.27 KM |
| Springkell Avenue, Crossmyloof | £ 380,000 | BUY | 7 / 10 | 0.31 KM |
| Dalziel Drive, Pollokshields, Glasgow | £ 725,000 | BUY | 7 / 10 | 0.38 KM |