Chancellors says ..
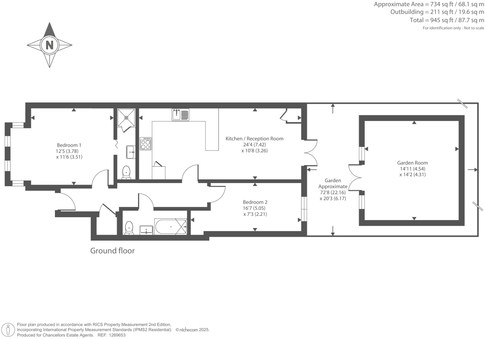
Newly refurbished ground-floor maisonette. This property consists of two double bedrooms, two bathrooms which one benefits with an en-suite bathroom. In addition, there is a living room flooded with natural lighting. Private garden to the rear and driveway for parking to the front.
Property Oracle says ..
This maisonette is located in Finchley, London, a desirable area known for its good schools and transport links. The property itself appears to be in excellent condition, having been recently modernised to a high standard. The images show a contemporary, well-maintained interior with a modern kitchen and bathrooms. There is also a good-sized garden, which is a valuable asset in a London property. While the plot size is listed as 0.00 sqft, the images clearly show a significant outdoor space. The list price of £575,000 seems reasonable considering the average price in the area (£421,943) and the property’s superior condition and features. However, a detailed comparison with similar properties in terms of size and features would be needed to make a definitive statement on value.
Therefore, we give this property 8 / 10. *Disclaimer: This is our option and does constitute a recommendation or financial advice. Do your own research. *
- Price
- 8
- Condition
- 9
- Location
- 9
- Land
- 8
- Bedrooms
- 2
- Bathrooms
- 2
- Sqft (est)
- 734.00
The heatmap indicates the level of crime in the area. The color of the heatmap indicates the crime severity and recency.
Metrics Year-on-Year
- Average area value
- 461,429.00 £Increased by 13.94 %
- Est sale value
- 405,168.00 £Increased by 13.58 %
- Average area rental value
- 1,822.00 £/moIncreased by 0.77 %
- Est letting value
- 1,468.00 £/moUnchanged by 0.00 %
- Est rental Yield
- 4.74 %Decreased by 11.57 %
- Crime Rate
- 8.00 %Unchanged by 0.00 %
Agent Activity
Chancellors created the listing.
Nearby Schools
| Name | Type | Ofsted | Distance |
|---|---|---|---|
| Sacks Morasha Jewish Primary School | Academy Converter | 0.34 KM | |
| Woodhouse College | Academy 16-19 Converter | Outstanding | 0.38 KM |
| Wren Academy Finchley | Academy Sponsor Led | Outstanding | 0.44 KM |
| Summerside Primary Academy | Academy Sponsor Led | Good | 0.53 KM |
| Woodside School | Other Independent Special School | 0.70 KM |
Images
Nearby Streets
| Name | Average Price | Average Sqft | Distance |
|---|---|---|---|
| A1003 | £ 379,000 | 0 | 0.00 KM |
| Castle Mews | £ 0 | 0 | 0.00 KM |
| Coleridge Road | £ 0 | 0 | 0.00 KM |
| High Road | £ 0 | 0 | 0.00 KM |
| Heatherdene Close | £ 0 | 0 | 0.00 KM |
Nearby Transport
| Name | NLC | TLC | Distance |
|---|---|---|---|
| Oakleigh Park | 6020 | OKL | 2.88 KM |
| New Southgate | 6019 | NSG | 3.22 KM |
| New Barnet | 6018 | NBA | 4.02 KM |
| Bowes Park | 6027 | BOP | 5.73 KM |
| Alexandra Palace | 6025 | AAP | 5.96 KM |
Nearby Listings
| Address | Price | Type | Score | Distance |
|---|---|---|---|---|
| Finchley, London, N12 | £ 575,000 | BUY | 8 / 10 | 0.00 KM |
| Finchley, London, N12 | £ 595,000 | BUY | 8 / 10 | 0.00 KM |
| Grove Road, North Finchley, N12 | £ 525,000 | BUY | 7 / 10 | 0.03 KM |
| Grove Road, North Finchley, N12 | £ 550,000 | BUY | 5 / 10 | 0.03 KM |
| Grove Road, North Finchley | £ 675,000 | BUY | 6 / 10 | 0.06 KM |
Nearby Properties
| Address | Price | Distance |
|---|---|---|
| 13 Grove Road | £ 945,000 | 0.06 KM |
| 41 Grove Road | £ 875,000 | 0.06 KM |
| 43 Grove Road | £ 174,950 | 0.06 KM |
| 27 Grove Road | £ 575,000 | 0.06 KM |
| 11 Grove Road | £ 223,000 | 0.06 KM |