BI
Welham House, North Parade, Bootham, York YO30 7AD
By Bishops Personal Agents
£ 199,950
Reviews
3 out of 5 stars
Bishops Personal Agents says ..
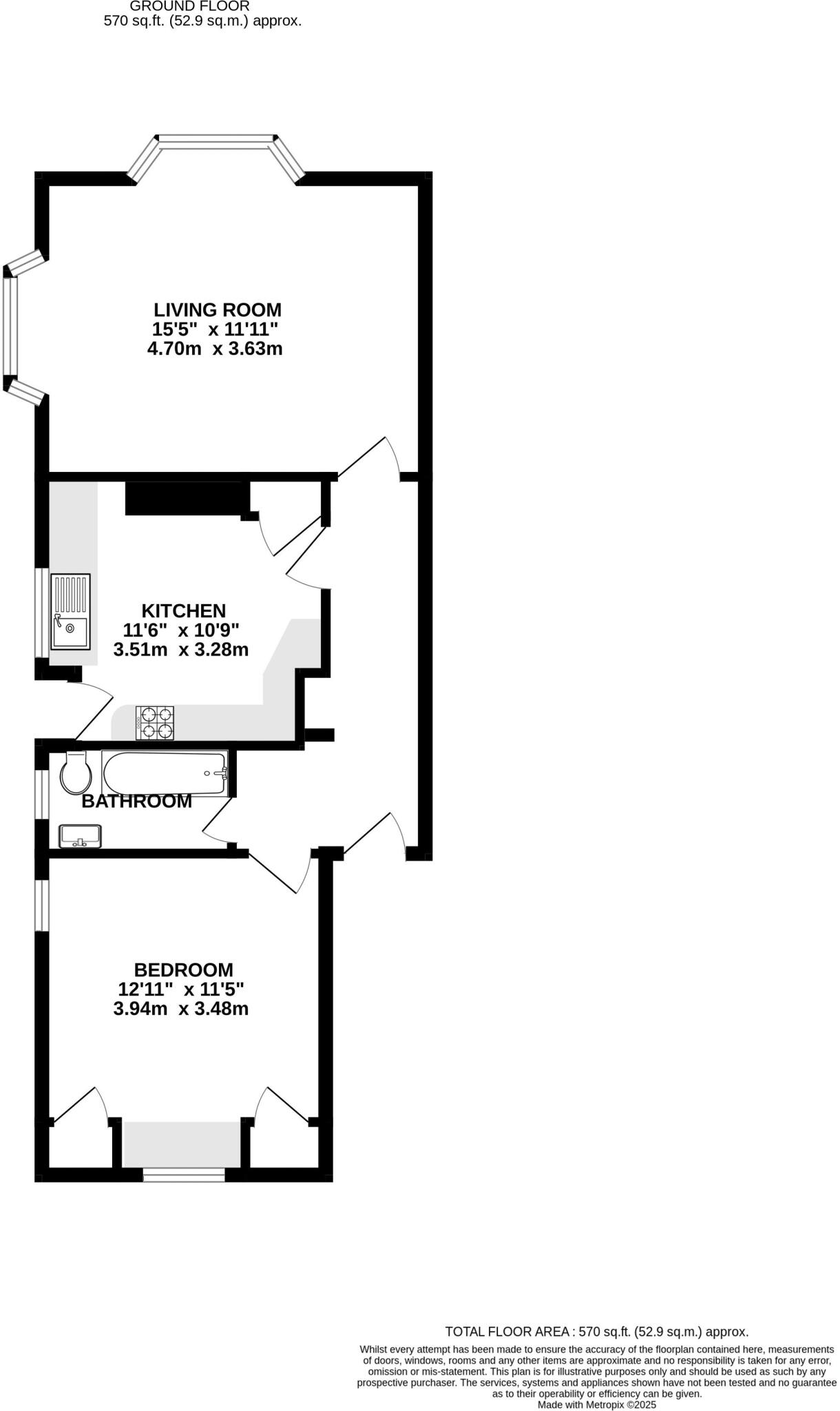
Bishops Personal Agents offer for sale a fantastic opportunity to add your own stamp and style to a one-bedroom ground floor apartment, with fabulous communal gardens, in one of York's most sought-after locations close to Bootham. This charming apartment is just a short walk from the city cen...
Property Oracle says ..
Therefore, we give this property 7 / 10. *Disclaimer: This is our option and does constitute a recommendation or financial advice. Do your own research. *
- Price
- 8
- Condition
- 7
- Location
- 8
- Land
- 7
- Bedrooms
- 1
- Bathrooms
- 1
- Sqft (est)
- 570.00
The heatmap indicates the level of crime in the area. The color of the heatmap indicates the crime severity and recency.
Metrics Year-on-Year
- Average area value
- 368,758.00 £Decreased by 22.24 %
- Est sale value
- 294,690.00 £Increased by 27.34 %
- Average area rental value
- 1,595.00 £/moDecreased by 3.10 %
- Est letting value
- 1,140.00 £/moIncreased by 100.00 %
- Est rental Yield
- 5.19 %Increased by 24.46 %
- Crime Rate
- 4.00 %Unchanged by 0.00 %
from 474,223.00 £
from 231,420.00 £
from 1,646.00 £/mo
from 570.00 £/mo
from 4.17 %
from 4.00 %
Agent Activity
Bishops Personal Agents created the listing.
Nearby Schools
| Name | Type | Ofsted | Distance |
|---|---|---|---|
| St Peter'S School 2-18 | Other Independent School | 0.12 KM | |
| Bootham School | Other Independent School | 0.49 KM | |
| Clifton Green Primary School | Community School | Requires improvement | 0.65 KM |
| Clifton Children'S Centre | Children's Centre | 0.84 KM | |
| Burton Green Primary School | Academy Converter | Good | 1.34 KM |
Images
Nearby Streets
| Name | Average Price | Average Sqft | Distance |
|---|---|---|---|
| St. Marys | £ 0 | 0 | 0.00 KM |
| Saint Mary's | £ 0 | 0 | 0.00 KM |
| Dame Judi Dench Walk | £ 695,000 | 0 | 0.00 KM |
| Joseph Rowntree Walk | £ 0 | 0 | 0.00 KM |
| Burton Court | £ 225,000 | 0 | 0.00 KM |
Nearby Transport
| Name | NLC | TLC | Distance |
|---|---|---|---|
| York | 8263 | YRK | 0.84 KM |
| Poppleton | 8254 | POP | 6.39 KM |
Nearby Listings
| Address | Price | Type | Score | Distance |
|---|---|---|---|---|
| Welham House, North Parade, Bootham, York YO30 7AD | £ 199,950 | BUY | 7 / 10 | 0.00 KM |
| North Parade, Bootham | £ 495,000 | BUY | 7 / 10 | 0.02 KM |
| North Parade, York | £ 500,000 | BUY | Unknown | 0.04 KM |
| North Parade, York | £ 250,000 | BUY | 6 / 10 | 0.05 KM |
| Queen Annes Road, York, YO30 | £ 630,000 | BUY | 6 / 10 | 0.06 KM |
Nearby Properties
| Address | Price | Distance |
|---|---|---|
| 42 Queen Annes Road | £ 193,500 | 0.07 KM |
| 21 Queen Annes Road | £ 303,000 | 0.09 KM |
| 12 Queen Annes Road | £ 350,000 | 0.09 KM |
| 41 Queen Annes Road | £ 318,000 | 0.09 KM |
| 22 Queen Annes Road | £ 510,000 | 0.09 KM |