Windsor Avenue, Radyr, Cardiff
TH

Windsor Avenue, Radyr, Cardiff

By Thomas H Wood

£ 650,000

Reviews

4 out of 5 stars

Thomas H Wood says ..

A rare and wonderful opportunity to purchase this five bedroom, semi detached family home on one of the most sought after roads in Radyr. The property has been maintained to a very high standard and benefits from a recently refurbished, modern family bathroom and a new combination boiler. Boastin...

Property Oracle says ..

This property is a 5 bedroom, 2 bathroom semi-detached house located in Radyr, Cardiff. Radyr is a popular residential area known for its good schools and convenient location. The property itself appears to be in good condition, well-maintained, and benefits from a garden. While specific pricing details are limited, the list price of £650,000 seems relatively high compared to the average price per square foot in the area. However, considering the property’s size, features, and location within Radyr, the price may be justified.

Therefore, we give this property 8 / 10. *Disclaimer: This is our option and does constitute a recommendation or financial advice. Do your own research. *

Price
7
Condition
9
Location
9
Land
7
Bedrooms
5
Bathrooms
2
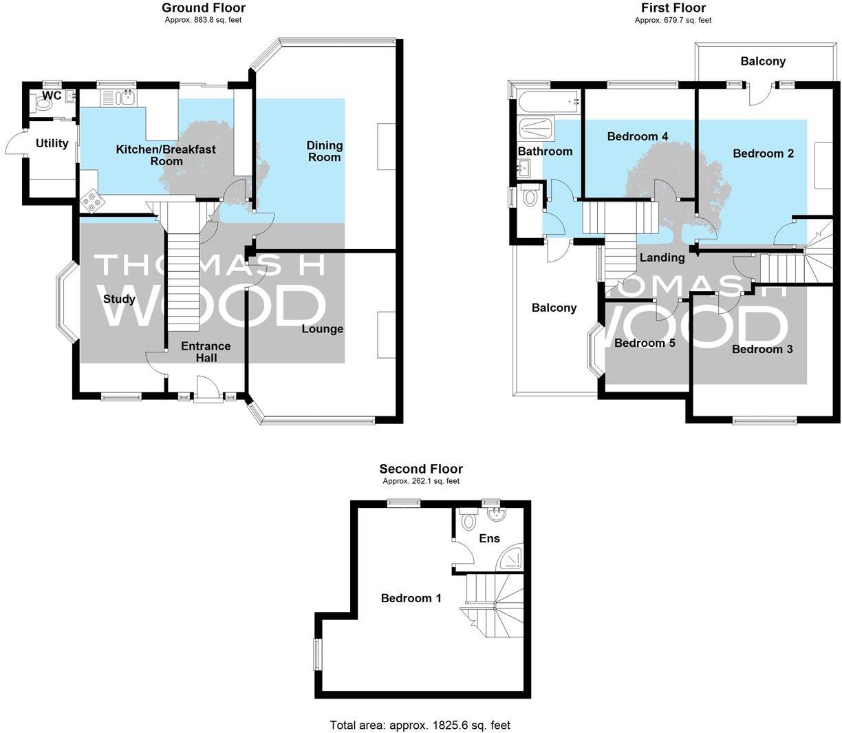
Sqft (est)
1,820.00
Lot (est)
1,825.60

The heatmap indicates the level of crime in the area. The color of the heatmap indicates the crime severity and recency.

Metrics Year-on-Year

Average area value
405,000.00 £
Decreased by 0.81 %
from 408,311.00 £
Est sale value
553,280.00 £
Decreased by 10.06 %
from 615,160.00 £
Average area rental value
1,450.00 £/mo
Increased by 7.89 %
from 1,344.00 £/mo
Est letting value
1,820.00 £/mo
Unchanged by 0.00 %
from 1,820.00 £/mo
Est rental Yield
4.30 %
Increased by 8.86 %
from 3.95 %
Crime Rate
7.00 %
Unchanged by 0.00 %
from 7.00 %

Agent Activity

  • Thomas H Wood created the listing.

Nearby Schools

NameTypeOfstedDistance
Radyr Primary SchoolWelsh Establishment0.09 KM
Bryn Deri Primary SchoolWelsh Establishment0.42 KM
Tongwynlais Primary SchoolWelsh Establishment1.63 KM
Radyr Comprehensive SchoolWelsh Establishment1.69 KM
Coryton Primary SchoolWelsh Establishment2.45 KM

Images

HVP-32.jpg HVP-28.jpg HVP-30.jpg HVP-12.jpg HVP-31.jpg HVP-33.jpg HVP-18.jpg HVP-19.jpg HVP-20.jpg HVP-23.jpg HVP-25.jpg HVP-58.jpg HVP-36.jpg HVP-37.jpg HVP-38.jpg HVP-21.jpg HVP-24.jpg HVP-29.jpg HVP-35.jpg HVP-52.jpg HVP-47.jpg HVP-48.jpg HVP-49.jpg HVP-50.jpg HVP-51.jpg HVP-39.jpg HVP-40.jpg HVP-41.jpg HVP-42.jpg HVP-43.jpg HVP-46.jpg HVP-53.jpg HVP-55.jpg HVP-54.jpg HVP-56.jpg HVP-5.jpg HVP-6.jpg HVP-1.jpg HVP-7.jpg HVP-8.jpg HVP-10.jpg HVP-11.jpg HVP-14.jpg HVP-13.jpg

Nearby Streets

NameAverage PriceAverage SqftDistance
Windsor Avenue £ 690,99000.00 KM
Cwrt Tŷ-Mynydd £ 179,95000.00 KM
Bryn Castell £ 320,00000.00 KM
The Uplands £ 000.00 KM
Graig Wen £ 180,00000.00 KM

Nearby Transport

NameNLCTLCDistance
Radyr3874RDR1.18 KM
Taffs Well3880TAF2.46 KM
Coryton3905COY2.97 KM
Danescourt3797DCT3.42 KM
Llandaf3844LLN3.52 KM

Nearby Listings

AddressPriceTypeScoreDistance
Windsor Avenue, Radyr, Cardiff £ 650,000BUY8 / 100.00 KM
Windsor Avenue, Radyr, Cardiff £ 595,000BUY7 / 100.06 KM
Windsor Avenue, Radyr, Cardiff £ 725,000BUY7 / 100.12 KM
Maes-yr-awel, Radyr, Cardiff £ 799,950BUY7 / 100.15 KM
Maes-Yr-Awel, Radyr, Cardiff £ 125,000BUY6 / 100.17 KM

Nearby Properties

AddressPriceDistance
23 Windsor Avenue £ 540,0000.13 KM
49 Windsor Avenue £ 435,0000.13 KM
51 Windsor Avenue £ 367,5000.13 KM
47 Windsor Avenue £ 375,0000.13 KM
35 Windsor Avenue £ 260,0000.13 KM