HouseShaw says ..
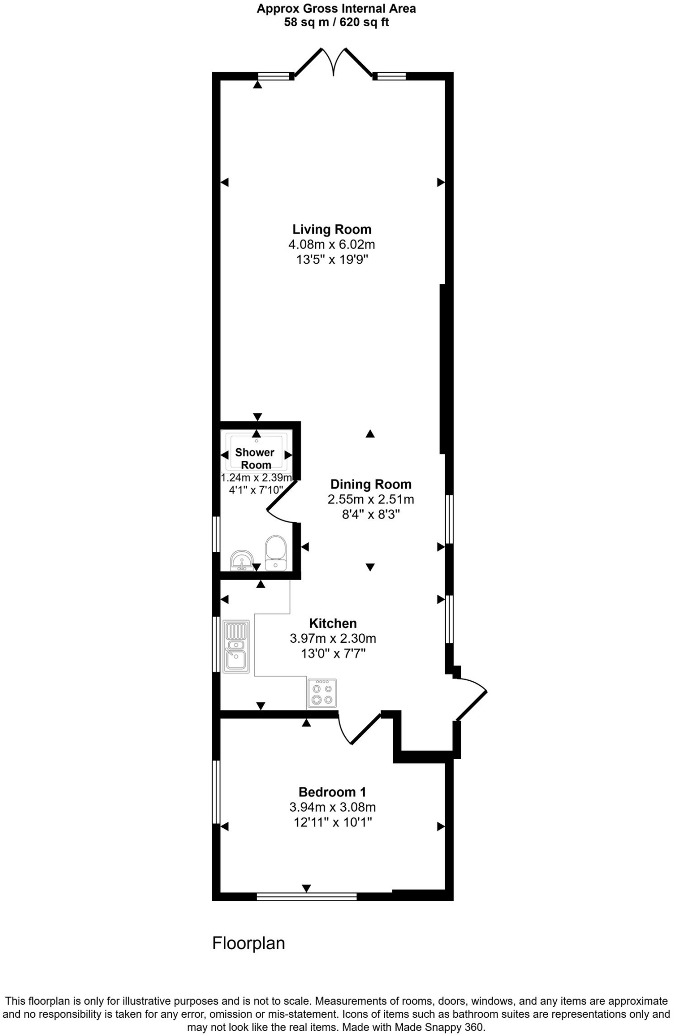
Charming 1-bed mobile home in sought-after location with far-reaching views. Ideal for FTB, downsizers, or investors. Features open plan living, parking, gas heating, and rural tranquillity. Offered to the market with no onward chain
Property Oracle says ..
Therefore, we give this property 7 / 10. *Disclaimer: This is our option and does constitute a recommendation or financial advice. Do your own research. *
- Price
- 9
- Condition
- 8
- Location
- 7
- Land
- 7
- Bedrooms
- 1
- Bathrooms
- 1
- Sqft (est)
- 594.07
The heatmap indicates the level of crime in the area. The color of the heatmap indicates the crime severity and recency.
Metrics Year-on-Year
- Average area value
- 1,232,857.00 £Increased by 34.16 %
- Est sale value
- 280,995.11 £Increased by 2.38 %
- Average area rental value
- 1,404.00 £/moDecreased by 23.36 %
- Est letting value
- 0.00 £/mo
- Est rental Yield
- 1.37 %Decreased by 42.68 %
- Crime Rate
- 0.00 %
from 918,966.00 £
from 274,460.34 £
from 1,832.00 £/mo
from 0.00 £/mo
from 2.39 %
from 0.00 %
Agent Activity
HouseShaw created the listing.
Nearby Schools
| Name | Type | Ofsted | Distance |
|---|---|---|---|
| Chartridge Combined School | Community School | Good | 1.49 KM |
| Chiltern Hills Academy | Academy Sponsor Led | Good | 2.65 KM |
| Ivingswood Academy | Academy Sponsor Led | Special Measures | 2.75 KM |
| Elmtree Infant And Nursery School | Academy Converter | 2.97 KM | |
| Hawridge And Cholesbury Church Of England School | Voluntary Aided School | Good | 3.04 KM |
Images
Nearby Streets
| Name | Average Price | Average Sqft | Distance |
|---|---|---|---|
| Two Gates Lane | £ 0 | 0 | 0.00 KM |
Nearby Transport
| Name | NLC | TLC | Distance |
|---|---|---|---|
| Amersham | 506 | AMR | 6.70 KM |
| Great Missenden | 1463 | GMN | 7.88 KM |
| Tring | 1393 | TRI | 8.75 KM |
| Berkhamsted | 1390 | BKM | 9.75 KM |
Nearby Listings
| Address | Price | Type | Score | Distance |
|---|---|---|---|---|
| Old Sax Lane, Chartridge, HP5 | £ 120,000 | BUY | 7 / 10 | 0.00 KM |
| Old Sax Lane, Chartridge, Chesham, Buckinghamshire, HP5 | £ 130,000 | BUY | 5 / 10 | 0.02 KM |
| Old Sax Lane, Chartridge, HP5 | £ 90,000 | BUY | 6 / 10 | 0.07 KM |
| Old Sax Lane, Chartridge, HP5 | £ 100,000 | BUY | 6 / 10 | 0.10 KM |
| Old Sax Lane, Chartridge, Chesham, Buckinghamshire, HP5 | £ 240,000 | BUY | Unknown | 0.11 KM |
Nearby Properties
| Address | Price | Distance |
|---|---|---|
| 401 Chartridge Lane | £ 650,000 | 0.27 KM |
| 421 Chartridge Lane | £ 705,000 | 0.27 KM |
| 369 Chartridge Lane | £ 395,000 | 0.27 KM |
| 397 Chartridge Lane | £ 615,000 | 0.27 KM |
| 373 Chartridge Lane | £ 425,000 | 0.27 KM |