Symonds & Greenham says ..
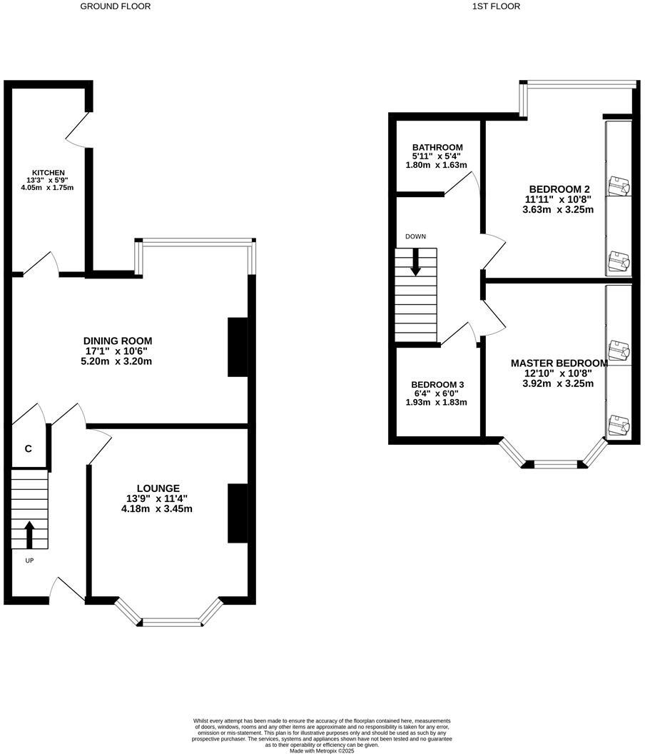
THREE-BED END TERRACE HOME - AVAILABLE WITH NO CHAIN - TWO RECEPTION ROOMS + FUNCTIONAL KITCHEN - THREE WELL-PROPORTIONED BEDROOMS + FAMILY BATHROOM REAR GARDEN & GARAGE - PRIME LOCATION CLOSE TO SHOPS, SCHOOLS & TRANSPORT LINKS - IDEAL PROJECT WITH POTENTIAL TO MODERNISE Nestled on ...
Property Oracle says ..
This end-of-terrace property on Fairfax Avenue, Hull, presents a solid opportunity for potential buyers. The house offers three bedrooms and one bathroom, with a total square footage of 744.43. The property benefits from its location in Bricknell, with convenient access to local schools and amenities. While the interior is generally well-maintained, the kitchen could benefit from modernization. The garden provides a valuable outdoor space. Given the price per square foot is below the local average, the property represents good value for money. Overall, this property is a traditional home that offers a blend of comfort and potential.
Therefore, we give this property 7 / 10. *Disclaimer: This is our option and does constitute a recommendation or financial advice. Do your own research. *
- Price
- 8
- Condition
- 7
- Location
- 7
- Land
- 6
- Bedrooms
- 3
- Bathrooms
- 1
- Sqft (est)
- 744.43
The heatmap indicates the level of crime in the area. The color of the heatmap indicates the crime severity and recency.
Metrics Year-on-Year
- Average area value
- 226,831.00 £Increased by 13.45 %
- Est sale value
- 177,174.34 £Increased by 54.55 %
- Average area rental value
- 842.00 £/moDecreased by 66.32 %
- Est letting value
- 0.00 £/moDecreased by 100.00 %
- Est rental Yield
- 4.45 %Decreased by 70.33 %
- Crime Rate
- 0.00 %
Agent Activity
Symonds & Greenham created the listing.
Nearby Schools
| Name | Type | Ofsted | Distance |
|---|---|---|---|
| Kelvin Hall School | Academy Converter | 0.36 KM | |
| Bricknell Primary School | Academy Converter | Outstanding | 0.50 KM |
| Bricknell Children'S Centre | Children's Centre Linked Site | 0.54 KM | |
| Wyke Sixth Form College | Further Education | Good | 0.63 KM |
| Hall Road Academy | Academy Sponsor Led | Good | 0.94 KM |
Images
Nearby Streets
| Name | Average Price | Average Sqft | Distance |
|---|---|---|---|
| Fairfield Road | £ 0 | 0 | 0.00 KM |
| Brompton Close | £ 0 | 0 | 0.00 KM |
| Barrington Avenue | £ 385,000 | 0 | 0.00 KM |
| Ernest Hill Court | £ 0 | 0 | 0.00 KM |
| Gilling Mews | £ 0 | 0 | 0.00 KM |
Nearby Transport
| Name | NLC | TLC | Distance |
|---|---|---|---|
| Cottingham | 8056 | CGM | 3.22 KM |
| Hull | 8126 | HUL | 4.71 KM |
| New Holland | 6209 | NHL | 7.40 KM |
| Barrow Haven | 6212 | BAV | 7.53 KM |
| Hessle | 8067 | HES | 8.33 KM |
Nearby Listings
| Address | Price | Type | Score | Distance |
|---|---|---|---|---|
| Fairfax Avenue, Hull | £ 165,000 | BUY | 7 / 10 | 0.00 KM |
| Fairfax Avenue, Hull | £ 155,000 | BUY | 6 / 10 | 0.05 KM |
| Fairfax Avenue, Hull, HU5 4QL | £ 130,000 | BUY | 6 / 10 | 0.09 KM |
| Bricknell Avenue, Hull | £ 155,000 | BUY | 7 / 10 | 0.15 KM |
| Kenilworth Avenue, Hull | £ 160,000 | BUY | 6 / 10 | 0.15 KM |
Nearby Properties
| Address | Price | Distance |
|---|---|---|
| 10 Fairfax Avenue | £ 157,500 | 0.07 KM |
| 40 Fairfax Avenue | £ 162,000 | 0.07 KM |
| 8 Fairfax Avenue | £ 110,000 | 0.07 KM |
| 46 Fairfax Avenue | £ 109,000 | 0.07 KM |
| 70 Fairfax Avenue | £ 128,000 | 0.07 KM |