John F Kennedy, Washington Village, Washington, Sunderland
JI

John F Kennedy, Washington Village, Washington, Sunderland

By Jill Moore Select Properties

£ 260,000

Reviews

3 out of 5 stars

Jill Moore Select Properties says ..

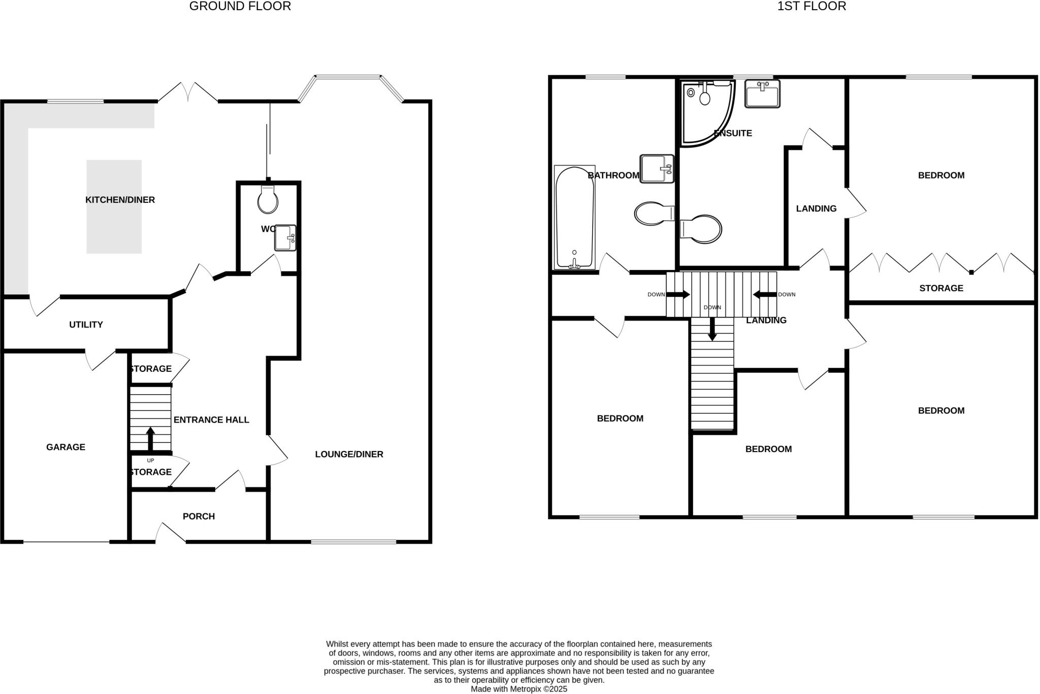
Extended Family Home!! Jill Moore Sales & Lettings are proud to present this amazing four bedroom semi-detached property, in the ever popular Washington Village area, to the sales market. Boasting a stunning open plan kitchen/diner extension to the rear, and modern furnishings throughout, thi...

Property Oracle says ..

Therefore, we give this property 7 / 10. *Disclaimer: This is our option and does constitute a recommendation or financial advice. Do your own research. *

Price
8
Condition
8
Location
7
Land
7
Bedrooms
4
Bathrooms
2
Sqft (est)
1,632.00

The heatmap indicates the level of crime in the area. The color of the heatmap indicates the crime severity and recency.

Metrics Year-on-Year

Average area value
197,600.00 £
Increased by 0.12 %
from 197,369.00 £
Est sale value
409,632.00 £
Increased by 18.40 %
from 345,984.00 £
Average area rental value
1,200.00 £/mo
Increased by 42.69 %
from 841.00 £/mo
Est letting value
1,632.00 £/mo
from 0.00 £/mo
Est rental Yield
7.29 %
Increased by 42.66 %
from 5.11 %
Crime Rate
1.00 %
Unchanged by 0.00 %
from 1.00 %

Agent Activity

  • Jill Moore Select Properties created the listing.

Nearby Schools

NameTypeOfstedDistance
John F Kennedy Primary SchoolAcademy ConverterGood0.35 KM
St Joseph'S Catholic Primary SchoolAcademy Converter0.66 KM
Barmston Village Primary SchoolCommunity SchoolGood0.76 KM
Columbia Grange SchoolCommunity Special SchoolOutstanding0.92 KM
Biddick Primary SchoolCommunity SchoolGood1.04 KM

Images

Picture No. 02 Picture No. 25 Picture No. 22 Picture No. 14 Picture No. 15 Picture No. 16 Picture No. 26 Picture No. 24 Picture No. 23 Picture No. 21 Picture No. 20 Picture No. 19 Picture No. 17 Picture No. 18 Picture No. 04 Picture No. 11 Bed 3 Bed 4 Bed 2 Family Bathroom Family Bathroom Master Bed Master Bed Master En-Suite En-Suite Picture No. 28 Picture No. 27 Picture No. 30 Picture No. 29 Picture No. 32 Picture No. 31

Nearby Streets

NameAverage PriceAverage SqftDistance
John F. Kennedy Estate £ 225,00000.00 KM
Grasmere Gardens £ 89,95000.00 KM
Oliver Street £ 000.00 KM
Autumn Close £ 000.00 KM
Reynolds Avenue £ 000.00 KM

Nearby Transport

NameNLCTLCDistance
Heworth7766HEW7.27 KM
Chester-Le-Street7736CLS8.63 KM

Nearby Listings

AddressPriceTypeScoreDistance
John F Kennedy, Washington Village, Washington, Sunderland £ 260,000BUY7 / 100.00 KM
John F Kennedy Estate, Washington Village, Washington £ 190,000BUY5 / 100.02 KM
The Avenue, Washington, Tyne and Wear, NE38 £ 120,000BUY5 / 100.15 KM
The East Wing, Washington, NE38 £ 120,000BUY7 / 100.15 KM
John F Kennedy Estate, Washington £ 225,000BUY6 / 100.16 KM

Nearby Properties

AddressPriceDistance
54 John F Kennedy Estate £ 165,0000.04 KM
43 John F Kennedy Estate £ 135,0000.04 KM
3 John F Kennedy Estate £ 159,5000.15 KM
23 John F Kennedy Estate £ 164,0000.15 KM
12 John F Kennedy Estate £ 157,0000.15 KM