BE
Longfield Avenue, Ealing, W5
By Benham & Reeves - Ealing
£ 1,150,000
Reviews
3 out of 5 stars
Benham & Reeves - Ealing says ..
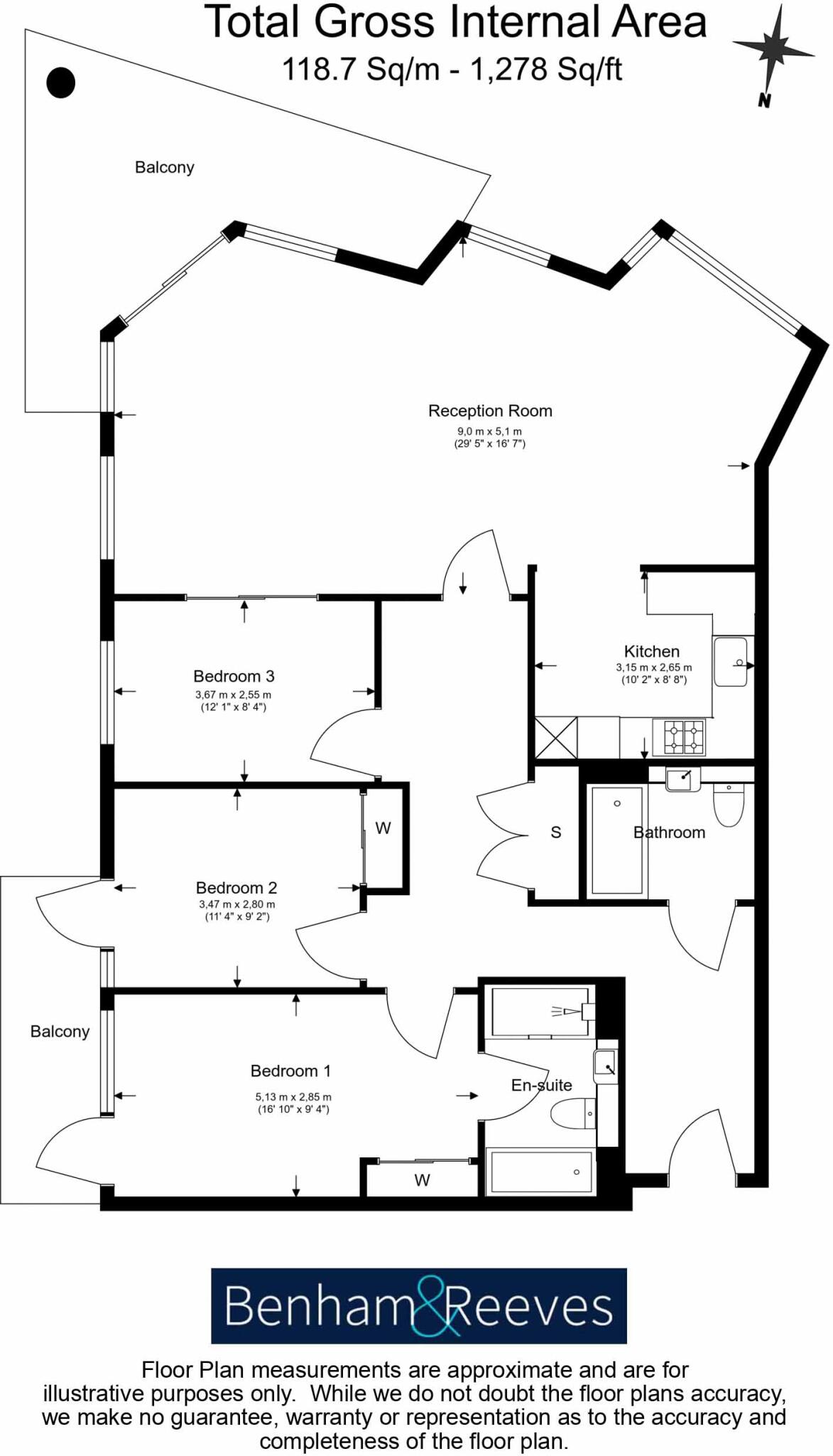
**Right To Park Included** Superbly designed is this seventh floor two bedroom + study apartment spanning an impressive 1278 square feet (approx.). This “Elite” spec apartment offers bright and airy accommodation throughout and has the additional benefits of comfort cooling, two balco...
Property Oracle says ..
Therefore, we give this property 6 / 10. *Disclaimer: This is our option and does constitute a recommendation or financial advice. Do your own research. *
- Price
- 5
- Condition
- 8
- Location
- 9
- Land
- 3
- Bedrooms
- 2
- Bathrooms
- 2
- Sqft (est)
- 946.58
The heatmap indicates the level of crime in the area. The color of the heatmap indicates the crime severity and recency.
Metrics Year-on-Year
- Average area value
- 677,500.00 £Decreased by 34.26 %
- Est sale value
- 1,152,934.44 £Increased by 51.87 %
- Average area rental value
- 2,388.00 £/moIncreased by 11.33 %
- Est letting value
- 3,786.32 £/moIncreased by 300.00 %
- Est rental Yield
- 4.23 %Increased by 69.20 %
- Crime Rate
- 9.00 %Unchanged by 0.00 %
from 1,030,646.00 £
from 759,157.16 £
from 2,145.00 £/mo
from 946.58 £/mo
from 2.50 %
from 9.00 %
Agent Activity
Benham & Reeves - Ealing created the listing.
Nearby Schools
| Name | Type | Ofsted | Distance |
|---|---|---|---|
| Ealing Independent College | Other Independent School | 0.20 KM | |
| Clifton Lodge School | Other Independent School | 0.25 KM | |
| Christ The Saviour Church Of England Primary School | Voluntary Aided School | Outstanding | 0.34 KM |
| Harvington Prep School | Other Independent School | 0.35 KM | |
| Durston House School | Other Independent School | 0.38 KM |
Images
Nearby Streets
| Name | Average Price | Average Sqft | Distance |
|---|---|---|---|
| Vernon Court Private Parking | £ 183,500 | 0 | 0.00 KM |
| Victoria Lane | £ 0 | 0 | 0.00 KM |
| Longfield Walk | £ 575,000 | 0 | 0.00 KM |
| Springbridge Road | £ 0 | 0 | 0.00 KM |
| High Street | £ 0 | 0 | 0.00 KM |
Nearby Transport
| Name | NLC | TLC | Distance |
|---|---|---|---|
| Ealing Broadway | 3190 | EAL | 0.75 KM |
| West Ealing | 3188 | WEA | 1.29 KM |
| Drayton Green | 3099 | DRG | 2.43 KM |
| Castle Bar Park | 3098 | CBP | 2.75 KM |
| Brentford | 5552 | BFD | 2.93 KM |
Nearby Listings
| Address | Price | Type | Score | Distance |
|---|---|---|---|---|
| Longfield Avenue, Ealing, W5 | £ 730,000 | BUY | 6 / 10 | 0.00 KM |
| Longfield Avenue, Ealing, W5 | £ 485,000 | BUY | 6 / 10 | 0.00 KM |
| Longfield Avenue, Ealing, W5 | £ 675,000 | BUY | 6 / 10 | 0.00 KM |
| Longfield Avenue, Ealing, W5 | £ 820,000 | BUY | Unknown | 0.00 KM |
| Longfield Avenue, Ealing, W5 | £ 1,150,000 | BUY | 6 / 10 | 0.00 KM |
Nearby Properties
| Address | Price | Distance |
|---|---|---|
| 79a New Broadway | £ 10,000 | 0.17 KM |
| 43 Gordon Road | £ 585,000 | 0.19 KM |
| 45 Gordon Road | £ 945,000 | 0.19 KM |
| 41 Gordon Road | £ 870,000 | 0.19 KM |
| 8 Gordon Road | £ 1,364,200 | 0.19 KM |