North Road, West Kirby, Wirral, Merseyside, CH48
BR

North Road, West Kirby, Wirral, Merseyside, CH48

By Bradshaw Farnham & Lea

£ 600,000

Reviews

3 out of 5 stars

Bradshaw Farnham & Lea says ..

Welcome to this charming terraced house located in the heart of West Kirby, offering an ideal blend of comfort, convenience, and coastal living.

Property Oracle says ..

The property is located in the desirable coastal town of West Kirby, known for its Victorian architecture, proximity to the beach, and good local amenities. Several highly-rated schools are nearby, and West Kirby railway station provides convenient transport links. The property itself appears well-maintained but could benefit from some modernisation. It is a traditional period property with character and charm, and includes a garden. The list price is higher than the area average, but a precise comparison is difficult without knowing the property’s square footage. Similar properties on North Road have varying prices, suggesting the list price might reflect the property’s size, location, and features.

Therefore, we give this property 7 / 10. *Disclaimer: This is our option and does constitute a recommendation or financial advice. Do your own research. *

Price
6
Condition
7
Location
9
Land
7
Bedrooms
5
Bathrooms
2
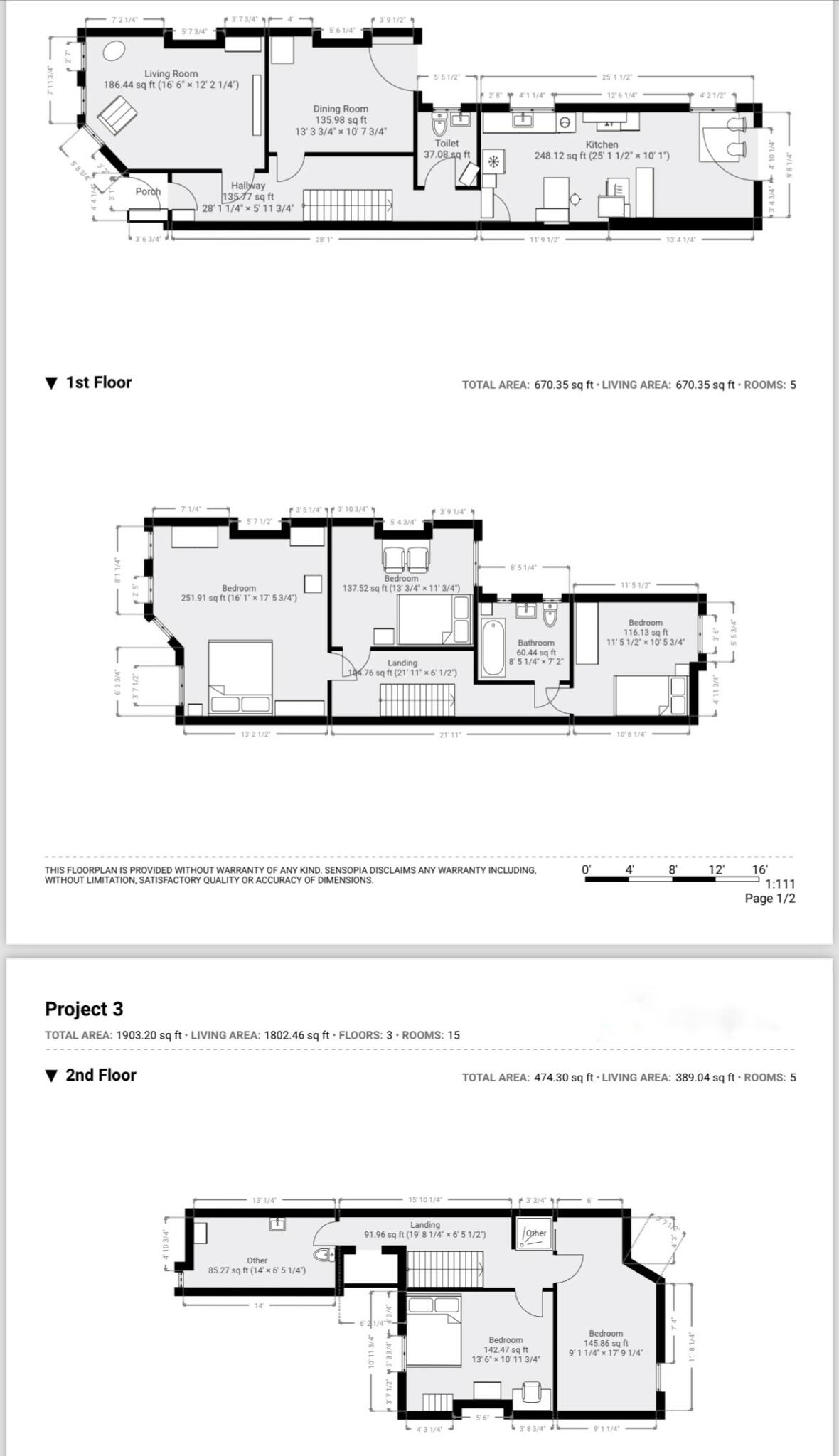
Sqft (est)
670.35
Lot (est)
670.35

The heatmap indicates the level of crime in the area. The color of the heatmap indicates the crime severity and recency.

Metrics Year-on-Year

Average area value
686,761.00 £
Increased by 63.43 %
from 420,220.00 £
Est sale value
517,510.20 £
Increased by 138.27 %
from 217,193.40 £
Average area rental value
1,058.00 £/mo
Increased by 8.51 %
from 975.00 £/mo
Est letting value
670.35 £/mo
from 0.00 £/mo
Est rental Yield
1.85 %
Decreased by 33.45 %
from 2.78 %
Crime Rate
50.00 %
Unchanged by 0.00 %
from 50.00 %

Agent Activity

  • Bradshaw Farnham & Lea created the listing.

Nearby Schools

NameTypeOfstedDistance
West Kirby Residential SchoolNon-maintained Special SchoolOutstanding0.54 KM
West Kirby Primary SchoolCommunity SchoolGood0.68 KM
West Kirby St Bridget'S Cofe Primary SchoolVoluntary Controlled SchoolOutstanding0.76 KM
West Kirby Grammar SchoolAcademy Converter0.77 KM
Avalon SchoolOther Independent School1.33 KM

Images

Picture No. 46 Picture No. 28 Picture No. 26 Picture No. 10 Picture No. 14 Picture No. 08 Picture No. 21 Picture No. 09 Picture No. 32 Picture No. 31 Picture No. 19 Picture No. 25 Picture No. 12 Picture No. 16 Picture No. 03 Picture No. 01 Picture No. 06 Picture No. 33 Picture No. 38 Picture No. 24 Picture No. 17 Picture No. 23 Picture No. 30 Picture No. 34

Nearby Streets

NameAverage PriceAverage SqftDistance
Nettle Hill £ 200,00000.00 KM
Ashburton Road £ 485,00000.00 KM
Anglesey Road £ 425,00000.00 KM
Grosvenor Avenue £ 000.00 KM
Belmont Road £ 000.00 KM

Nearby Transport

NameNLCTLCDistance
West Kirby2201WKI0.21 KM
Hoylake2194HYK2.12 KM
Manor Road2253MNR2.86 KM
Meols2254MEO4.41 KM
Moreton (Merseyside)2151MRT8.62 KM

Nearby Listings

AddressPriceTypeScoreDistance
North Road, West Kirby, Wirral, Merseyside, CH48 £ 600,000BUY7 / 100.00 KM
North Road, West Kirby, CH48 £ 595,000BUY8 / 100.05 KM
Park Road, West Kirby, Wirral £ 450,000BUY7 / 100.05 KM
Westbourne Road, West Kirby, Wirral £ 217,500BUY6 / 100.07 KM
Westbourne Road, West Kirby, Wirral £ 220,000BUY7 / 100.07 KM

Nearby Properties

AddressPriceDistance
21a North Road £ 170,0000.04 KM
11 North Road £ 480,0000.04 KM
5 North Road £ 187,5000.04 KM
1 North Road £ 238,5000.04 KM
7 North Road £ 233,6000.04 KM