Lot 3 - Cartref, Llanmihangel Farm, Pyle, Bridgend, CF33 6RL
By Herbert R Thomas
£ 1,100,000
Reviews
3 out of 5 stars
Herbert R Thomas says ..
Situation Llanmihangel Farm enjoys a a semi-rural location providing excellent access to a range of amenities with easy access to Junctions 37 and 38 of the M4 and the A48. Please see the attached location plan. Cartref Cartref is a charming four-bedroom barn conversion with stunning views...
Property Oracle says ..
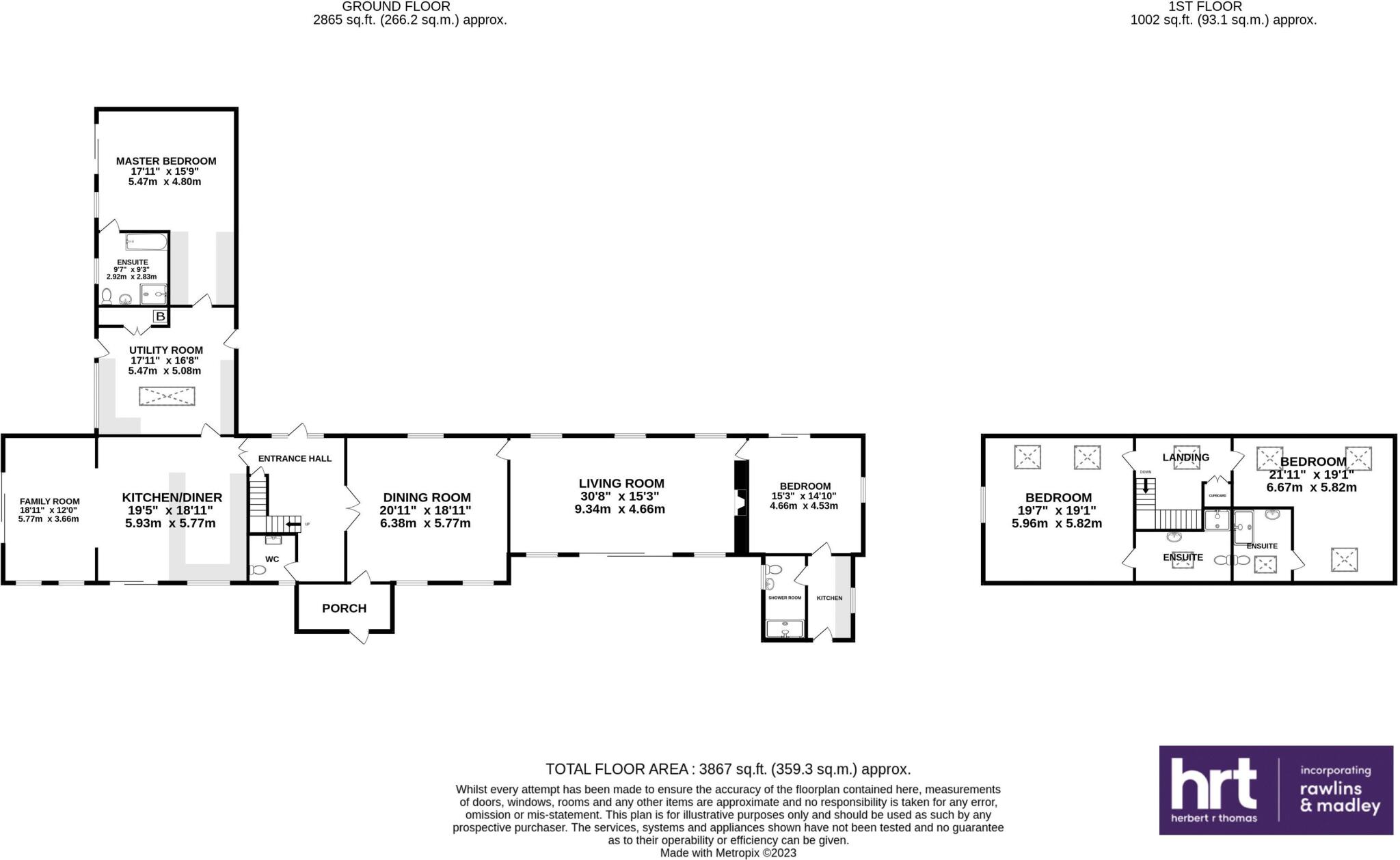
A substantial four-bedroom barn conversion located in Pyle, Bridgend. The property offers 3,150.38 sqft of living space and is listed for £1,100,000. The location is near Pyle, offering convenient access to local amenities and transportation, including the Pyle train station. Several schools are also located nearby. The property appears to be in good condition, with modern interiors and well-maintained exterior. The property includes a large garden and driveway, offering ample outdoor space. There also appears to be a gym. The average price per sqft in the area is £138.00. This property is listed at approximately £349 per sqft. This is significantly higher than the average, but the property is a large barn conversion and appears to be in good condition.
Therefore, we give this property 7 / 10. *Disclaimer: This is our option and does constitute a recommendation or financial advice. Do your own research. *
- Price
- 6
- Condition
- 9
- Location
- 7
- Land
- 9
- Bedrooms
- 4
- Bathrooms
- 0
- Sqft (est)
- 3,150.38
The heatmap indicates the level of crime in the area. The color of the heatmap indicates the crime severity and recency.
Metrics Year-on-Year
- Average area value
- 245,000.00 £Decreased by 2.53 %
- Est sale value
- 434,752.44 £Decreased by 44.13 %
- Average area rental value
- 608.00 £/moDecreased by 26.30 %
- Est letting value
- 0.00 £/mo
- Est rental Yield
- 2.98 %Decreased by 24.37 %
- Crime Rate
- 11.00 %Unchanged by 0.00 %
Agent Activity
Herbert R Thomas created the listing.
Nearby Schools
| Name | Type | Ofsted | Distance |
|---|---|---|---|
| Afon-Y-Felin Primary School | Welsh Establishment | 0.49 KM | |
| Ysgol Y Ferch O'R Sger | Welsh Establishment | 0.75 KM | |
| Corneli Primary School | Welsh Establishment | 0.85 KM | |
| Pil Primary School | Welsh Establishment | 0.90 KM | |
| Cynffig Comprehensive School | Welsh Establishment | 2.25 KM |
Images
Nearby Streets
| Name | Average Price | Average Sqft | Distance |
|---|---|---|---|
| Lon-y-Cariadon | £ 0 | 0 | 0.00 KM |
| Ffordd Collwyn | £ 0 | 0 | 0.00 KM |
| Cae'r Cynffig | £ 140,000 | 0 | 0.00 KM |
| St. James' Crescent | £ 0 | 0 | 0.00 KM |
| Tydraw Crescent | £ 275,000 | 0 | 0.00 KM |
Nearby Transport
| Name | NLC | TLC | Distance |
|---|---|---|---|
| Pyle | 4185 | PYL | 0.24 KM |
| Garth (Bridgend County) | 3961 | GMG | 9.97 KM |
Nearby Listings
| Address | Price | Type | Score | Distance |
|---|---|---|---|---|
| Lot 4 - Equestrian facilities set in 50.42 acres, Llanmihangel Farm, Pyle, Bridgend, CF33 6RL | £ 875,000 | BUY | 7 / 10 | 0.00 KM |
| Lot 3 - Cartref, Llanmihangel Farm, Pyle, Bridgend, CF33 6RL | £ 1,100,000 | BUY | 7 / 10 | 0.00 KM |
| Lot 5 - approximately 18.59 acres of land at Llanmihangel Farm, Pyle, Bridgend, CF33 6RL | £ 270,000 | BUY | 8 / 10 | 0.00 KM |
| Llanmihangel Farm, Pyle, Bridgend, CF33 6RL | £ 3,850,000 | BUY | 7 / 10 | 0.00 KM |
| Lot 6 - The Cow Shed, Llanmihangel Farm, Pyle, Bridgend, CF33 6RL | £ 475,000 | BUY | 7 / 10 | 0.00 KM |
Nearby Properties
| Address | Price | Distance |
|---|---|---|
| 77 Marlas Road | £ 115,000 | 0.09 KM |
| 93 Marlas Road | £ 78,000 | 0.09 KM |
| 88 Marlas Road | £ 230,000 | 0.09 KM |
| 85 Marlas Road | £ 102,000 | 0.09 KM |
| 50 Beach Road | £ 68,000 | 0.13 KM |