Haybrook says ..
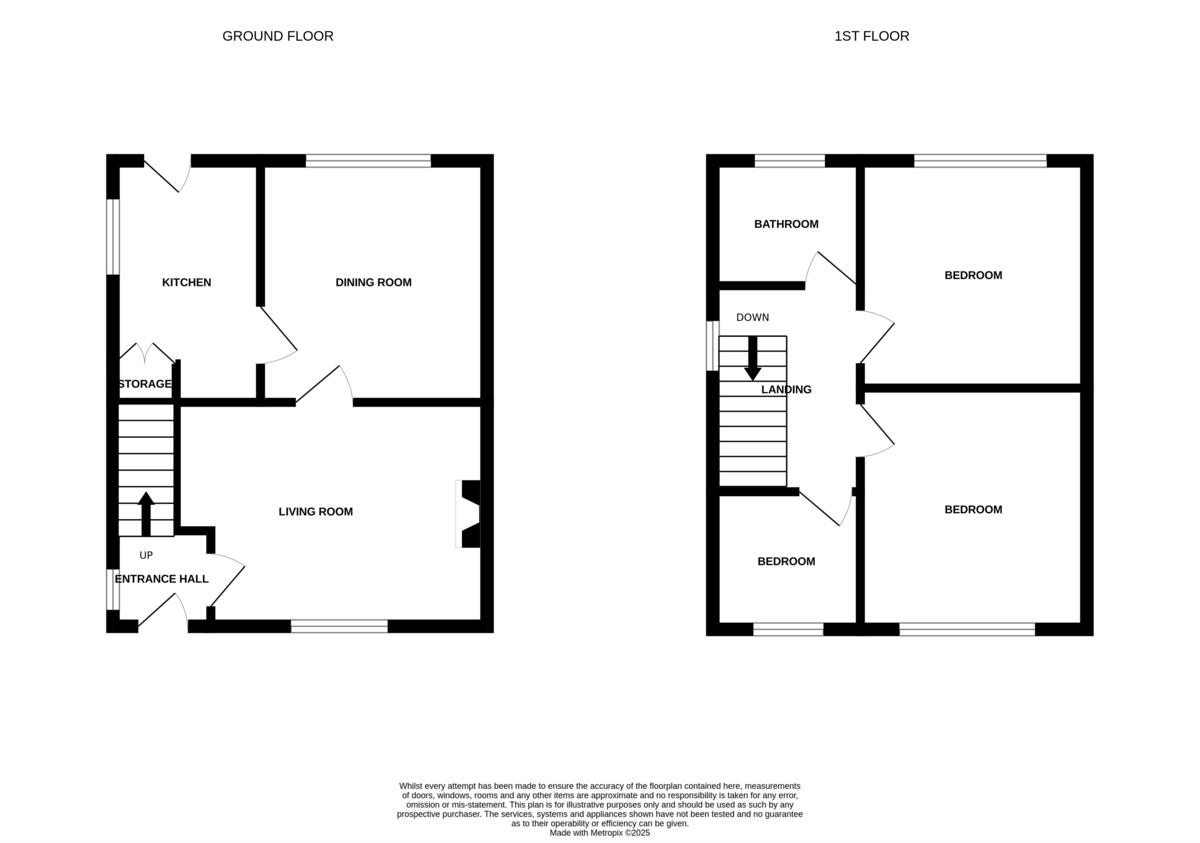
Looking for a well-located, welcoming family home with plenty of space inside and out? This lovely three bedroom property in Ecclesfield ticks all the boxes. Guide Price £190,000 - £200,000
Property Oracle says ..
Therefore, we give this property 5 / 10. *Disclaimer: This is our option and does constitute a recommendation or financial advice. Do your own research. *
- Price
- 5
- Condition
- 4
- Location
- 7
- Land
- 7
- Bedrooms
- 3
- Bathrooms
- 1
- Sqft (est)
- 482.49
The heatmap indicates the level of crime in the area. The color of the heatmap indicates the crime severity and recency.
Metrics Year-on-Year
- Average area value
- 276,071.00 £Increased by 29.23 %
- Est sale value
- 161,634.15 £Increased by 50.90 %
- Average area rental value
- 713.00 £/moDecreased by 20.69 %
- Est letting value
- 0.00 £/mo
- Est rental Yield
- 3.10 %Decreased by 38.61 %
- Crime Rate
- 2.00 %Unchanged by 0.00 %
from 213,623.00 £
from 107,112.78 £
from 899.00 £/mo
from 0.00 £/mo
from 5.05 %
from 2.00 %
Agent Activity
Haybrook created the listing.
Nearby Schools
| Name | Type | Ofsted | Distance |
|---|---|---|---|
| Ecclesfield Primary School | Community School | Good | 0.83 KM |
| Monteney Children'S Centre | Children's Centre Linked Site | 0.84 KM | |
| Monteney Primary School | Academy Converter | Good | 0.92 KM |
| Hartley Brook Primary School | Academy Sponsor Led | Good | 1.22 KM |
| Beck Primary School | Academy Converter | Good | 1.36 KM |
Images
Nearby Streets
| Name | Average Price | Average Sqft | Distance |
|---|---|---|---|
| Town Fields Avenue | £ 0 | 0 | 0.00 KM |
| St Michaels Close | £ 0 | 0 | 0.00 KM |
| Linden Court | £ 220,000 | 0 | 0.00 KM |
| St. Wandrilles Close | £ 0 | 0 | 0.00 KM |
| Lindsay Drive | £ 159,950 | 0 | 0.00 KM |
Nearby Transport
| Name | NLC | TLC | Distance |
|---|---|---|---|
| Chapeltown (South Yorkshire) | 6664 | CLN | 2.94 KM |
| Meadowhall | 6663 | MHS | 5.59 KM |
| Sheffield | 6691 | SHF | 6.53 KM |
| Elsecar | 6667 | ELR | 7.74 KM |
| Darnall | 6729 | DAN | 7.79 KM |
Nearby Listings
| Address | Price | Type | Score | Distance |
|---|---|---|---|---|
| St Michaels Road, Ecclesfield | £ 190,000 | BUY | 5 / 10 | 0.00 KM |
| St. Michaels Road, Ecclesfield, Sheffield, South Yorkshire, S35 | £ 290,000 | BUY | 7 / 10 | 0.05 KM |
| St. Michaels Road, Ecclesfield, S35 | £ 160,000 | BUY | Unknown | 0.08 KM |
| 170 High Street, Ecclesfield, Sheffield, South Yorkshire, S35 9XF | £ 100,000 | BUY | 6 / 10 | 0.08 KM |
| High Street, Ecclesfield | £ 150,000 | BUY | 5 / 10 | 0.08 KM |
Nearby Properties
| Address | Price | Distance |
|---|---|---|
| 11 St Michaels Road | £ 54,000 | 0.03 KM |
| 9 St Michaels Road | £ 135,000 | 0.04 KM |
| 3 St Michaels Road | £ 135,000 | 0.04 KM |
| 78 St Michaels Road | £ 124,000 | 0.05 KM |
| 62 St Michaels Road | £ 125,000 | 0.05 KM |