Palermo Road, Kensal Green, London, NW10
By Foxtons
£ 725,000
Reviews
3 out of 5 stars
Foxtons says ..
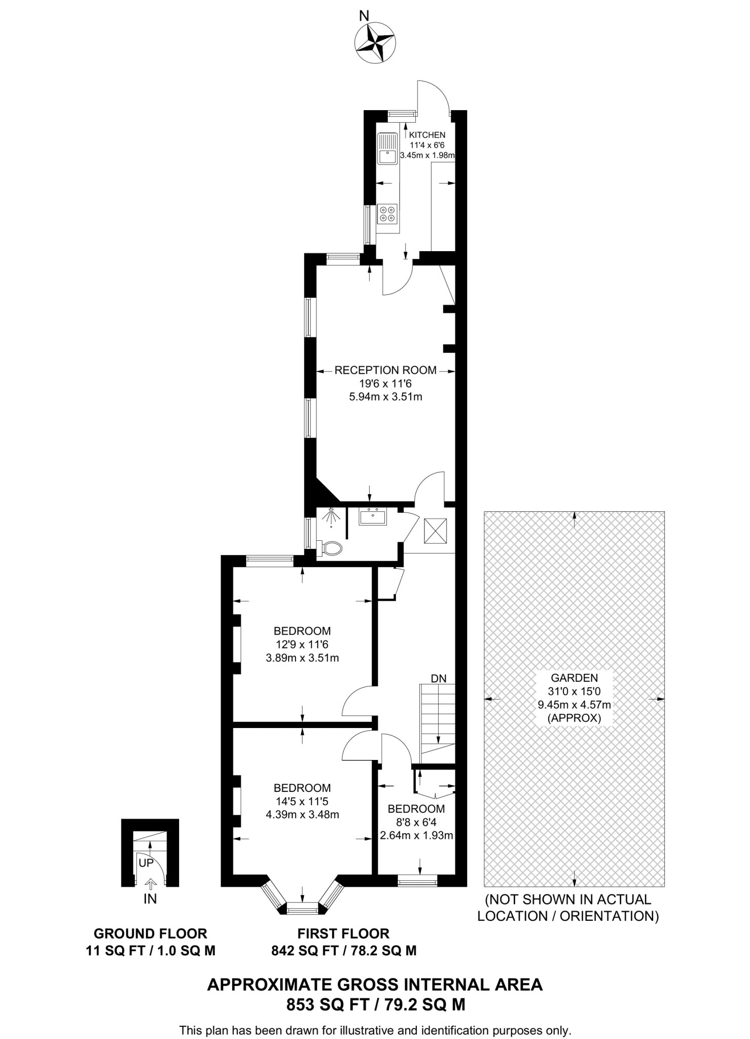
Located on a lovely quiet residential street, this charming three bedroom flat situated on the first floor offers bright and spacious interiors, well proportioned rooms and an attractive private garden.
Property Oracle says ..
This three-bedroom property located on Palermo Road in Kensal Green, London, presents a mixed bag. The location is a definite positive, offering good access to transport links and proximity to well-regarded schools, increasing the property’s desirability. The photos reveal a property that is livable but could benefit from some modernisation to the kitchen and bathrooms. While the property is habitable, some updating would enhance its appeal and potential market value. The presence of a garden, while not expansive, adds to the property’s appeal and family-friendliness. The price point is competitive for the area, particularly considering the property’s condition and location. The relatively modest square footage might be considered by potential buyers alongside properties with larger living spaces. The overall assessment is that this property represents a solid purchase for buyers seeking a family home with access to good schools and transport, but also are willing to invest in some modernisation. It is crucial for potential buyers to conduct thorough viewings and obtain professional advice to assess the structural condition and any potential costs associated with renovations. The lack of exact square footage data for other nearby properties makes a detailed comparison challenging, leading to a degree of uncertainty in determining the exact value.
Therefore, we give this property 6 / 10. *Disclaimer: This is our option and does constitute a recommendation or financial advice. Do your own research. *
- Price
- 7
- Condition
- 6
- Location
- 7
- Land
- 4
- Bedrooms
- 3
- Bathrooms
- 2
- Sqft (est)
- 852.50
The heatmap indicates the level of crime in the area. The color of the heatmap indicates the crime severity and recency.
Metrics Year-on-Year
- Average area value
- 745,000.00 £Decreased by 11.71 %
- Est sale value
- 652,162.50 £Decreased by 15.09 %
- Average area rental value
- 2,378.00 £/moIncreased by 14.49 %
- Est letting value
- 1,705.00 £/moUnchanged by 0.00 %
- Est rental Yield
- 3.83 %Increased by 29.83 %
- Crime Rate
- 4.00 %Unchanged by 0.00 %
Agent Activity
Foxtons created the listing.
Nearby Schools
| Name | Type | Ofsted | Distance |
|---|---|---|---|
| Furness Primary School | Academy Converter | Good | 0.10 KM |
| Kenmont Primary School | Community School | Good | 0.34 KM |
| Newman Catholic College | Voluntary Aided School | Good | 0.49 KM |
| Roundwood School And Community Centre | Free Schools Alternative Provision | 0.65 KM | |
| Capital City Academy | Academy Sponsor Led | Good | 0.73 KM |
Images
Nearby Streets
| Name | Average Price | Average Sqft | Distance |
|---|---|---|---|
| Fortune Way | £ 0 | 0 | 0.00 KM |
| Wrottesley Road | £ 0 | 0 | 0.00 KM |
| Wrottesley Road | £ 0 | 0 | 0.00 KM |
| Wrottesley Road | £ 0 | 0 | 0.00 KM |
| Wrottesley Road | £ 0 | 0 | 0.00 KM |
Nearby Transport
| Name | NLC | TLC | Distance |
|---|---|---|---|
| Willesden Junction | 1457 | WIJ | 0.73 KM |
| Kensal Green | 1447 | KNL | 1.46 KM |
| Kensal Rise | 1448 | KNR | 2.00 KM |
| Harlesden | 1521 | HDN | 2.20 KM |
| Brondesbury Park | 1438 | BSP | 3.19 KM |
Nearby Listings
| Address | Price | Type | Score | Distance |
|---|---|---|---|---|
| Palermo Road, Kensal Green, London, NW10 | £ 725,000 | BUY | 6 / 10 | 0.00 KM |
| Palermo Road, Kensal Rise | £ 650,000 | BUY | 6 / 10 | 0.02 KM |
| Palermo Road, Kensal Rise | £ 600,000 | BUY | 5 / 10 | 0.02 KM |
| Odessa Road, London NW10 | £ 650,000 | BUY | 7 / 10 | 0.02 KM |
| Palermo Road, London | £ 1,350,000 | BUY | 7 / 10 | 0.02 KM |
Nearby Properties
| Address | Price | Distance |
|---|---|---|
| 15a Palermo Road | £ 171,500 | 0.01 KM |
| 13a Palermo Road | £ 560,000 | 0.01 KM |
| 20 Palermo Road | £ 500,000 | 0.02 KM |
| 54 Palermo Road | £ 880,000 | 0.02 KM |
| 28 Palermo Road | £ 1,200,000 | 0.02 KM |