Mulberry Walk, Fleet, Hampshire, GU51
By Bridges Estate Agents
£ 340,000
Reviews
3 out of 5 stars
Bridges Estate Agents says ..
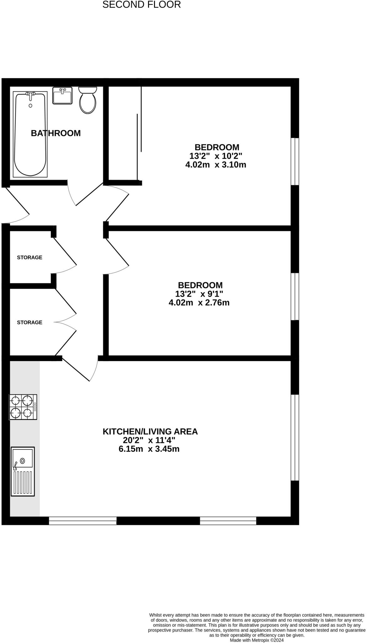
Situated in the recently built Edenbrook development this wonderful two-bedroom former show apartment is offered to the market with no onward chain. Light and inviting, the double aspect living room with a beautiful Juliette balcony looking out onto the open green space is most certainly the &lsq...
Property Oracle says ..
This two-bedroom, one-bathroom flat located on Mulberry Walk in Fleet, Hampshire, is presented in excellent condition. The modern interior features a well-designed open-plan living/dining/kitchen area, contemporary fixtures and fittings, and ample natural light. The photos depict a clean and tastefully decorated space. The apartment benefits from a Juliette balcony, offering views of open green space. The development’s proximity to good schools, as highlighted by the provided data, adds to its family-friendly appeal. The location also presents a balance between suburban peace and proximity to transport links, with several train stations within a relatively short distance. While the property lacks a private garden, which is common for flats, its overall condition and amenities make it an attractive option for buyers seeking a modern, comfortable apartment in a convenient location. The lack of detailed plot size and surrounding information impacts on the overall appraisal.
Therefore, we give this property 6 / 10. *Disclaimer: This is our option and does constitute a recommendation or financial advice. Do your own research. *
- Price
- 7
- Condition
- 9
- Location
- 7
- Land
- 1
- Bedrooms
- 2
- Bathrooms
- 1
- Sqft (est)
- 825.16
The heatmap indicates the level of crime in the area. The color of the heatmap indicates the crime severity and recency.
Metrics Year-on-Year
- Average area value
- 587,286.00 £Decreased by 26.45 %
- Est sale value
- 556,983.00 £Increased by 72.63 %
- Average area rental value
- 1,582.00 £/moDecreased by 10.97 %
- Est letting value
- 825.16 £/mo
- Est rental Yield
- 3.23 %Increased by 20.97 %
- Crime Rate
- 18.00 %Unchanged by 0.00 %
Agent Activity
Bridges Estate Agents created the listing.
Nearby Schools
| Name | Type | Ofsted | Distance |
|---|---|---|---|
| Calthorpe Park School | Community School | Good | 0.56 KM |
| Tavistock Infant School | Community School | Good | 1.22 KM |
| All Saints Church Of England Aided Junior School | Voluntary Aided School | Good | 1.37 KM |
| Turners Wood, Fleet Fireflies And Wild Rose Children'S Centre | Children's Centre | 1.61 KM | |
| Elvetham Heath Primary School | Community School | Outstanding | 1.61 KM |
Images
Nearby Streets
| Name | Average Price | Average Sqft | Distance |
|---|---|---|---|
| Mellows Close | £ 0 | 0 | 0.00 KM |
| Kestrel Walk | £ 775,000 | 0 | 0.00 KM |
| The Willows | £ 512,500 | 0 | 0.00 KM |
| Priory Close | £ 875,000 | 0 | 0.00 KM |
| Burrow Gardens | £ 0 | 0 | 0.00 KM |
Nearby Transport
| Name | NLC | TLC | Distance |
|---|---|---|---|
| Fleet | 5522 | FLE | 4.09 KM |
| Winchfield | 5528 | WNF | 4.47 KM |
| Sandhurst (Berks) | 5646 | SND | 10.00 KM |
Nearby Listings
| Address | Price | Type | Score | Distance |
|---|---|---|---|---|
| Mulberry Walk, Fleet, Hampshire, GU51 | £ 340,000 | BUY | 6 / 10 | 0.00 KM |
| Mulberry Walk, Fleet, GU51 | £ 240,000 | BUY | 6 / 10 | 0.04 KM |
| Mulberry Walk, FLEET, GU51 5EG | £ 320,000 | BUY | 6 / 10 | 0.04 KM |
| Almond House, Mulberry Walk , Fleet, GU51 5EG | £ 269,950 | BUY | 6 / 10 | 0.04 KM |
| Mulberry Walk, Fleet, Hampshire, GU51 | £ 700,000 | BUY | 8 / 10 | 0.04 KM |
Nearby Properties
| Address | Price | Distance |
|---|---|---|
| 19 Pennyroyal | £ 425,000 | 0.17 KM |
| 21 Pennyroyal | £ 465,000 | 0.17 KM |
| 4 Pennyroyal | £ 670,000 | 0.17 KM |
| 10 Kingfishers | £ 415,000 | 0.17 KM |
| 3 Kingfishers | £ 535,000 | 0.17 KM |