Randolph Avenue, Maida Vale, W9
By Abacus Estates
£ 1,200,000
Reviews
3 out of 5 stars
Abacus Estates says ..
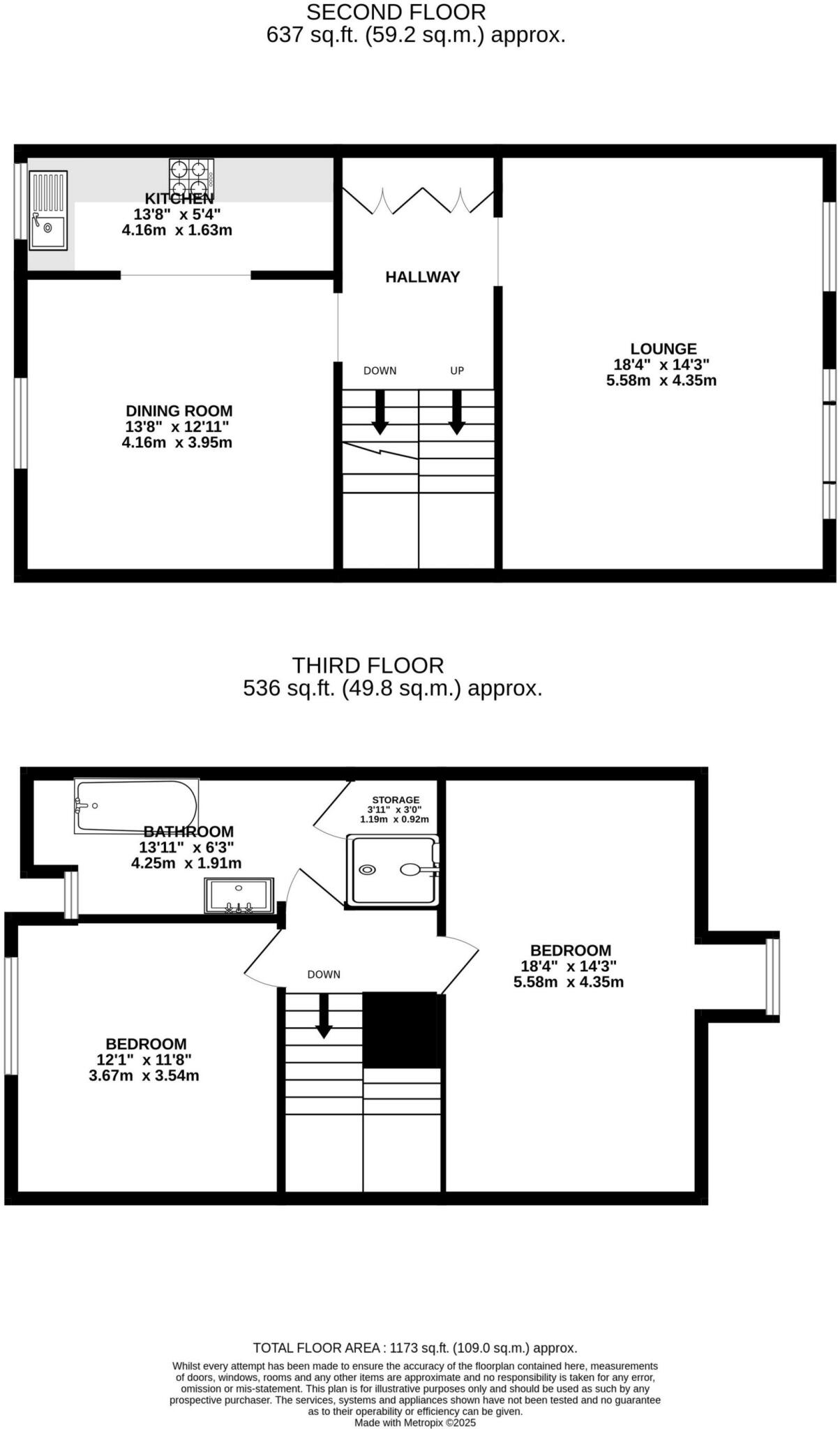
This beautifully presented 2-bedroom duplex apartment occupies the top two floors of a charming period conversion in the heart of Maida Vale. Spanning 1,173 SQFT, the property offers a bright and sunny reception room, a spacious kitchen/dining area, two double bedrooms, and a modern family bathro...
Property Oracle says ..
This is a spacious two-bedroom flat in a sought-after Maida Vale location. The property offers ample living space and benefits from its proximity to excellent schools and transport links. While the flat is generally in good order, some modernization could enhance its appeal. The price is relatively high for the area, reflecting the property’s size and location.
Therefore, we give this property 6 / 10. *Disclaimer: This is our option and does constitute a recommendation or financial advice. Do your own research. *
- Price
- 6
- Condition
- 7
- Location
- 9
- Land
- 3
- Bedrooms
- 2
- Bathrooms
- 1
- Sqft (est)
- 1,173.00
The heatmap indicates the level of crime in the area. The color of the heatmap indicates the crime severity and recency.
Metrics Year-on-Year
- Average area value
- 630,000.00 £Decreased by 29.87 %
- Est sale value
- 1,061,565.00 £Decreased by 9.59 %
- Average area rental value
- 2,249.00 £/moDecreased by 5.58 %
- Est letting value
- 3,519.00 £/moIncreased by 50.00 %
- Est rental Yield
- 4.28 %Increased by 34.59 %
- Crime Rate
- 5.00 %Unchanged by 0.00 %
Agent Activity
Abacus Estates created the listing.
Nearby Schools
| Name | Type | Ofsted | Distance |
|---|---|---|---|
| St George'S Catholic School | Academy Converter | Outstanding | 0.22 KM |
| Naima Jewish Preparatory School | Other Independent School | 0.47 KM | |
| St Augustines Federated Schools: Cofe Primary School | Voluntary Aided School | Requires improvement | 0.60 KM |
| Maida Vale Children'S Centre | Children's Centre Linked Site | 0.60 KM | |
| St Augustine'S Federated Schools: Ce High School | Voluntary Aided School | Outstanding | 0.66 KM |
Images
Nearby Streets
| Name | Average Price | Average Sqft | Distance |
|---|---|---|---|
| The Lane | £ 1,225,000 | 0 | 0.00 KM |
| Randolph Road | £ 0 | 0 | 0.00 KM |
| Clifton Hill Studios | £ 0 | 0 | 0.00 KM |
| Ryder's Terrace | £ 0 | 0 | 0.00 KM |
| Oxford Road | £ 0 | 0 | 0.00 KM |
Nearby Transport
| Name | NLC | TLC | Distance |
|---|---|---|---|
| Kilburn High Road | 1415 | KBN | 0.87 KM |
| South Hampstead | 1451 | SOH | 1.48 KM |
| West Hampstead | 1421 | WHD | 1.87 KM |
| Queens Park (London) | 1419 | QPW | 1.98 KM |
| West Hampstead Thameslink | 1525 | WHP | 1.99 KM |
Nearby Listings
| Address | Price | Type | Score | Distance |
|---|---|---|---|---|
| Randolph Avenue, Maida Vale, W9 | £ 1,200,000 | BUY | 6 / 10 | 0.00 KM |
| Randolph Avenue, Maida Vale, London, W9 | £ 3,250,000 | BUY | 6 / 10 | 0.02 KM |
| Randolph Avenue, Maida Vale W9 | £ 595,000 | BUY | 9 / 10 | 0.06 KM |
| Randolph Avenue, Maida Vale | £ 675,000 | BUY | 5 / 10 | 0.07 KM |
| Randolph Avenue, Maida Vale, London, W9 | £ 1,350,000 | BUY | Unknown | 0.07 KM |
Nearby Properties
| Address | Price | Distance |
|---|---|---|
| 178b Randolph Avenue | £ 425,000 | 0.08 KM |
| 178c Randolph Avenue | £ 1,255,000 | 0.08 KM |
| 192a Randolph Avenue | £ 385,000 | 0.08 KM |
| 194a Randolph Avenue | £ 1,663,000 | 0.08 KM |
| 198 Randolph Avenue | £ 3,697,000 | 0.08 KM |