Bensham Grove, Thornton Heath, Surrey, CR7
By Moving Inn
£ 425,000
Reviews
3 out of 5 stars
Moving Inn says ..
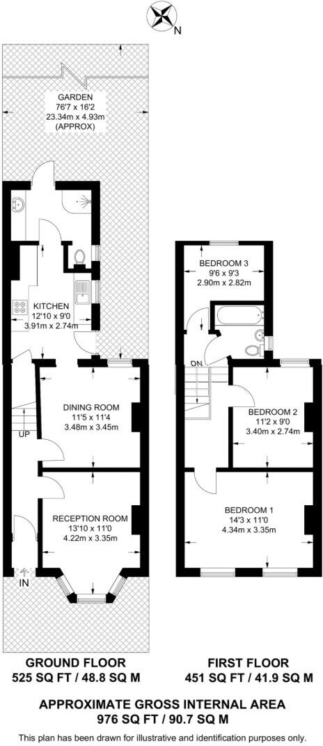
Moving Inn are pleased to present this spacious terraced property in Thornton Heath, CR7, featuring three good size bedrooms, two reception rooms, and two bathrooms. With off-street parking, this home offers convenience and comfort. Chain free.
Property Oracle says ..
Therefore, we give this property 7 / 10. *Disclaimer: This is our option and does constitute a recommendation or financial advice. Do your own research. *
- Price
- 8
- Condition
- 6
- Location
- 7
- Land
- 7
- Bedrooms
- 3
- Bathrooms
- 2
- Sqft (est)
- 1,978.95
The heatmap indicates the level of crime in the area. The color of the heatmap indicates the crime severity and recency.
Metrics Year-on-Year
- Average area value
- 441,150.00 £Increased by 9.36 %
- Est sale value
- 615,453.45 £Decreased by 30.89 %
- Average area rental value
- 2,134.00 £/moIncreased by 27.18 %
- Est letting value
- 1,978.95 £/moUnchanged by 0.00 %
- Est rental Yield
- 5.80 %Increased by 16.23 %
- Crime Rate
- 5.00 %Unchanged by 0.00 %
from 403,375.00 £
from 890,527.50 £
from 1,678.00 £/mo
from 1,978.95 £/mo
from 4.99 %
from 5.00 %
Agent Activity
Moving Inn created the listing.
Nearby Schools
| Name | Type | Ofsted | Distance |
|---|---|---|---|
| Beulah Junior School | Community School | Good | 0.24 KM |
| Beulah Infants' School | Academy Sponsor Led | Good | 0.30 KM |
| Cacfo Uk Education Centre | Other Independent School | Requires improvement | 0.35 KM |
| St Cyprian'S Greek Orthodox Primary Academy | Academy Converter | Good | 0.49 KM |
| St James The Great Rc Primary And Nursery School | Academy Converter | Outstanding | 0.52 KM |
Images
Nearby Streets
| Name | Average Price | Average Sqft | Distance |
|---|---|---|---|
| Parchmore Road | £ 0 | 0 | 0.00 KM |
| Osborne Road | £ 305,000 | 0 | 0.00 KM |
| Goulding Gardens | £ 265,000 | 0 | 0.00 KM |
| Bedser Close | £ 0 | 0 | 0.00 KM |
| Howberry Road | £ 535,000 | 0 | 0.00 KM |
Nearby Transport
| Name | NLC | TLC | Distance |
|---|---|---|---|
| Thornton Heath | 5388 | TTH | 0.73 KM |
| Selhurst | 5434 | SRS | 2.05 KM |
| Norbury | 5428 | NRB | 2.41 KM |
| Gipsy Hill | 5363 | GIP | 2.86 KM |
| West Norwood | 5438 | WNW | 2.96 KM |
Nearby Listings
| Address | Price | Type | Score | Distance |
|---|---|---|---|---|
| Bensham Grove, Thornton Heath, Surrey, CR7 | £ 425,000 | BUY | 7 / 10 | 0.00 KM |
| Bensham Grove, Thornton Heath, Surrey, CR7 | £ 425,000 | BUY | Unknown | 0.01 KM |
| Bensham Grove, Thornton Heath, CR7 | £ 425,000 | BUY | Unknown | 0.01 KM |
| Bensham Grove, Thornton Heath, Surrey, CR7 | £ 300,000 | BUY | Unknown | 0.05 KM |
| Bensham Grove, Thornton Heath | £ 450,000 | BUY | 6 / 10 | 0.05 KM |
Nearby Properties
| Address | Price | Distance |
|---|---|---|
| 47 Bensham Grove | £ 160,000 | 0.01 KM |
| 57a Bensham Grove | £ 255,000 | 0.01 KM |
| 39 Bensham Grove | £ 165,000 | 0.01 KM |
| 3 Bensham Grove | £ 185,000 | 0.01 KM |
| 11 Bensham Grove | £ 255,000 | 0.01 KM |