27 Melrose Avenue, Kings Hill, ME19 4SJ
By Kings Hill Properties
£ 250,000
Reviews
3 out of 5 stars
Kings Hill Properties says ..
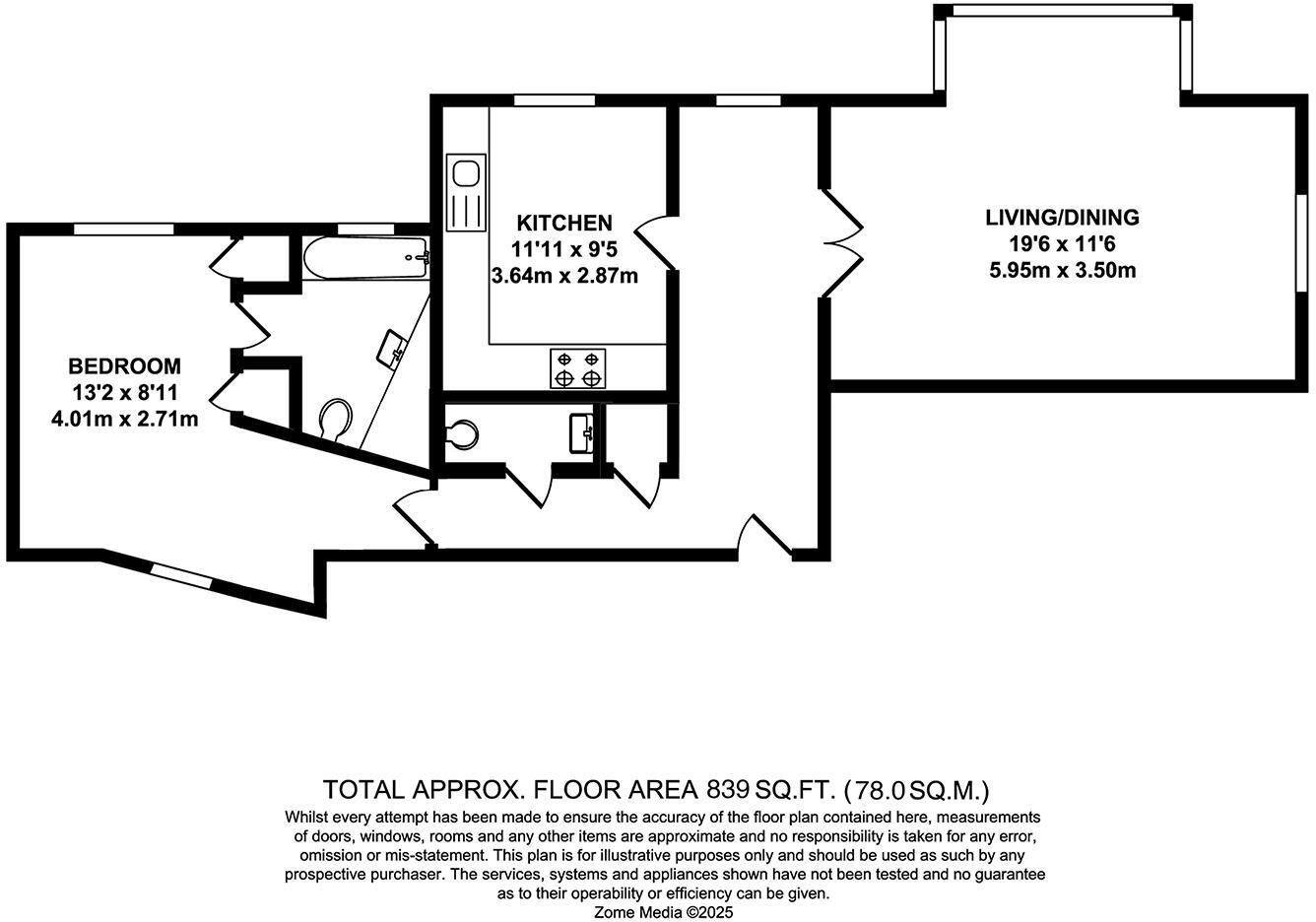
An incredibly spacious GROUND FLOOR apartment (840sqft) situated in the heart of Kings Hill, with easy access to Liberty Square amenities which include shops, super markets, health services, pubs, restaurants, cafes and much more! This unique 1 bedroom apartment is in a secure block, wit...
Property Oracle says ..
This is a one-bedroom apartment located in Kings Hill, Kent. The property is in good condition and benefits from modern fixtures and fittings. The apartment is situated in a desirable location, close to local schools, transportation, and amenities. The asking price of £250,000 seems reasonable given the location and condition of the property. The apartment is approximately 839 square feet, which is a good size for a one-bedroom apartment. While the property doesn’t have a garden, it is located near green spaces.
Therefore, we give this property 6 / 10. *Disclaimer: This is our option and does constitute a recommendation or financial advice. Do your own research. *
- Price
- 7
- Condition
- 8
- Location
- 7
- Land
- 3
- Bedrooms
- 1
- Bathrooms
- 1
- Sqft (est)
- 839.59
The heatmap indicates the level of crime in the area. The color of the heatmap indicates the crime severity and recency.
Metrics Year-on-Year
- Average area value
- 562,188.00 £Increased by 0.28 %
- Est sale value
- 519,706.21 £Increased by 40.68 %
- Average area rental value
- 2,283.00 £/moIncreased by 15.48 %
- Est letting value
- 1,679.18 £/moIncreased by 100.00 %
- Est rental Yield
- 4.87 %Increased by 15.13 %
- Crime Rate
- 22.00 %Unchanged by 0.00 %
Agent Activity
Kings Hill Properties created the listing.
Nearby Schools
| Name | Type | Ofsted | Distance |
|---|---|---|---|
| Kings Hill School Primary And Nursery | Community School | Good | 1.04 KM |
| The Discovery School | Community School | Outstanding | 1.10 KM |
| Valley Invicta Primary School At Kings Hill | Academy Sponsor Led | Good | 1.17 KM |
| West Malling Church Of England Primary School And Mcginty Speech And Language Centre | Academy Converter | Good | 2.64 KM |
| Wateringbury Church Of England Primary School | Voluntary Aided School | Good | 2.82 KM |
Images
Nearby Streets
| Name | Average Price | Average Sqft | Distance |
|---|---|---|---|
| Viollette Close | £ 0 | 0 | 0.00 KM |
| Hamilton Way | £ 0 | 0 | 0.00 KM |
| Orchard Way | £ 312,998 | 0 | 0.00 KM |
| Royal Crescent | £ 295,000 | 0 | 0.00 KM |
| Cabusse Close | £ 422,623 | 0 | 0.00 KM |
Nearby Transport
| Name | NLC | TLC | Distance |
|---|---|---|---|
| West Malling | 5129 | WMA | 2.59 KM |
| Wateringbury | 5241 | WTR | 2.89 KM |
| East Malling | 5134 | EML | 3.82 KM |
| Yalding | 5232 | YAL | 5.02 KM |
| New Hythe | 5238 | NHE | 6.96 KM |
Nearby Listings
| Address | Price | Type | Score | Distance |
|---|---|---|---|---|
| 27 Melrose Avenue, Kings Hill, ME19 4SJ | £ 250,000 | BUY | 6 / 10 | 0.00 KM |
| Melrose Avenue, Kings Hill, West Malling, Kent, ME19 4SJ | £ 250,000 | BUY | 6 / 10 | 0.04 KM |
| Monarch Terrace, Kings Hill, West Malling, ME19 4NP | £ 650,000 | BUY | 8 / 10 | 0.05 KM |
| Winston Avenue, Kings Hill | £ 250,000 | BUY | 6 / 10 | 0.11 KM |
| Braeburn Way, Kings Hill | £ 625,000 | BUY | 7 / 10 | 0.14 KM |
Nearby Properties
| Address | Price | Distance |
|---|---|---|
| 17 Melrose Avenue | £ 440,000 | 0.04 KM |
| 37 Melrose Avenue | £ 234,995 | 0.04 KM |
| 29 Melrose Avenue | £ 130,000 | 0.04 KM |
| 21 Melrose Avenue | £ 360,000 | 0.04 KM |
| 13 Melrose Avenue | £ 435,000 | 0.04 KM |