TA
Chalfont Place, Stourbridge, West Midlands, DY9 9EP
By Taylors Estate Agents
£ 285,000
Reviews
3 out of 5 stars
Taylors Estate Agents says ..
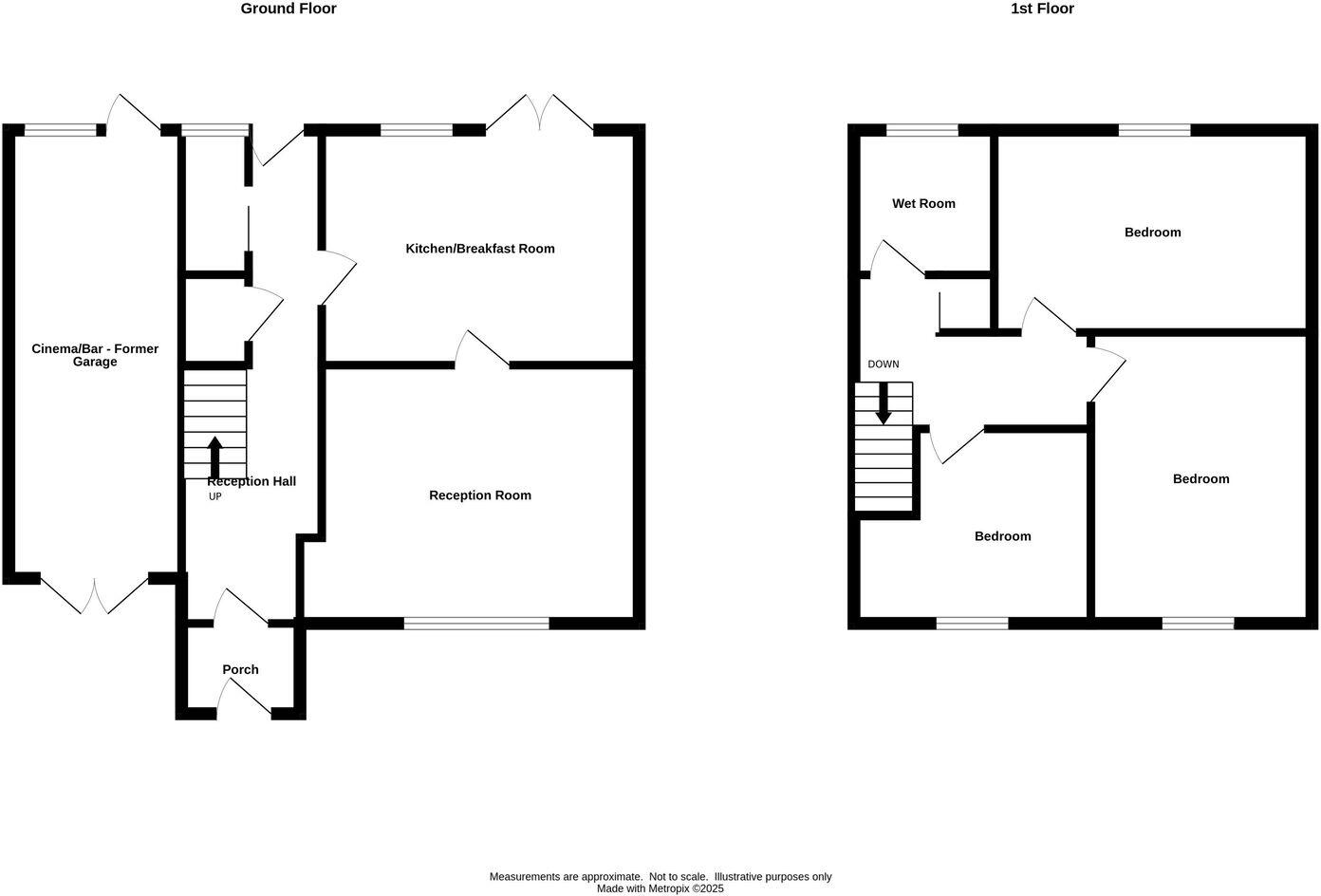
This attractive three-bedroom semi-detached home, offering a wide frontage with off-road parking and a delightful outlook. Set in a desirable residential location, this well-presented property offers a comfortable living space. Upon entering the home, you are welcomed by a porch leading...
Property Oracle says ..
Therefore, we give this property 7 / 10. *Disclaimer: This is our option and does constitute a recommendation or financial advice. Do your own research. *
- Price
- 8
- Condition
- 6
- Location
- 7
- Land
- 7
- Bedrooms
- 3
- Bathrooms
- 1
- Sqft (est)
- 1,314.00
The heatmap indicates the level of crime in the area. The color of the heatmap indicates the crime severity and recency.
Metrics Year-on-Year
- Average area value
- 380,909.00 £Decreased by 13.47 %
- Est sale value
- 505,890.00 £Increased by 16.31 %
- Average area rental value
- 1,218.00 £/moIncreased by 26.61 %
- Est letting value
- 1,314.00 £/mo
- Est rental Yield
- 3.84 %Increased by 46.56 %
- Crime Rate
- 12.00 %Unchanged by 0.00 %
from 440,190.00 £
from 434,934.00 £
from 962.00 £/mo
from 0.00 £/mo
from 2.62 %
from 12.00 %
Agent Activity
Taylors Estate Agents created the listing.
Nearby Schools
| Name | Type | Ofsted | Distance |
|---|---|---|---|
| Hob Green Children'S Centre | Children's Centre | 0.34 KM | |
| Hob Green Primary School | Academy Converter | Good | 0.49 KM |
| Wollescote Primary School | Community School | Good | 1.45 KM |
| Butterfly Children'S Centre | Children's Centre | 1.76 KM | |
| The Pedmore High School | Academy Converter | 1.81 KM |
Images
Nearby Streets
| Name | Average Price | Average Sqft | Distance |
|---|---|---|---|
| Vicars Walk | £ 0 | 0 | 0.00 KM |
| Rye Croft | £ 0 | 0 | 0.00 KM |
| Woodthorpe Drive | £ 0 | 0 | 0.00 KM |
| Pine Walk | £ 375,000 | 0 | 0.00 KM |
| Cross Walks | £ 0 | 0 | 0.00 KM |
Nearby Transport
| Name | NLC | TLC | Distance |
|---|---|---|---|
| Lye (West Midlands) | 4640 | LYE | 2.07 KM |
| Stourbridge Junction | 4646 | SBJ | 2.45 KM |
| Stourbridge Town | 4643 | SBT | 3.59 KM |
| Cradley Heath | 4639 | CRA | 3.96 KM |
| Hagley | 4577 | HAG | 4.31 KM |
Nearby Listings
| Address | Price | Type | Score | Distance |
|---|---|---|---|---|
| Chalfont Place, Stourbridge, West Midlands, DY9 9EP | £ 285,000 | BUY | 7 / 10 | 0.00 KM |
| Chalfont Place, Stourbridge | £ 260,000 | BUY | 6 / 10 | 0.02 KM |
| Chalfont Place, Stourbridge | £ 240,000 | BUY | 7 / 10 | 0.04 KM |
| Queensway, Stourbridge, DY9 | £ 225,000 | BUY | 6 / 10 | 0.18 KM |
| Wassell Road, Wollescote, Dudley, DY9 | £ 270,000 | BUY | 6 / 10 | 0.18 KM |
Nearby Properties
| Address | Price | Distance |
|---|---|---|
| 39 Chalfont Place | £ 128,000 | 0.01 KM |
| 3 Chalfont Place | £ 135,000 | 0.01 KM |
| 29 Chalfont Place | £ 115,000 | 0.01 KM |
| 31 Chalfont Place | £ 127,000 | 0.01 KM |
| 5 Chalfont Place | £ 210,000 | 0.01 KM |