Harbury Lane, Leamington, CV33 9WH
MI

Harbury Lane, Leamington, CV33 9WH

By Miller Homes West Midlands

£ 599,950

Reviews

3 out of 5 stars

Miller Homes West Midlands says ..

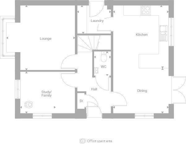
From the hall to the four dual aspect rooms, including a superb study, this home delivers a succession of delights. The lounge is lit by a feature bay, the exciting, attractive dining kitchen includes french doors, and the four bedrooms include a luxurious principal suite. Plot 22 Tenure: Free...

Property Oracle says ..

This is a modern detached property located in Bishop’s Tachbrook, near Warwick. It features four bedrooms and appears to be in excellent condition, suggesting a new build or recent renovation. The property includes a garden, enhancing its appeal for families and those who appreciate outdoor space. While the price is above the local average, the condition and location justify the premium. Nearby schools and transportation links add to the convenience and desirability of the property.

Therefore, we give this property 7 / 10. *Disclaimer: This is our option and does constitute a recommendation or financial advice. Do your own research. *

Price
6
Condition
9
Location
7
Land
6
Bedrooms
4
Bathrooms
0
Sqft (est)
756.00

The heatmap indicates the level of crime in the area. The color of the heatmap indicates the crime severity and recency.

Metrics Year-on-Year

Average area value
523,544.00 £
Increased by 24.40 %
from 420,843.00 £
Est sale value
571,536.00 £
Increased by 88.53 %
from 303,156.00 £
Average area rental value
1,925.00 £/mo
Increased by 9.75 %
from 1,754.00 £/mo
Est letting value
1,512.00 £/mo
Increased by 100.00 %
from 756.00 £/mo
Est rental Yield
4.41 %
Decreased by 11.80 %
from 5.00 %
Crime Rate
2.00 %
Unchanged by 0.00 %
from 2.00 %

Agent Activity

  • Miller Homes West Midlands created the listing.

Nearby Schools

NameTypeOfstedDistance
Heathcote Primary SchoolFree Schools1.31 KM
Bishops Tachbrook Cofe Primary SchoolVoluntary Controlled SchoolGood1.60 KM
St Joseph'S Catholic Primary SchoolVoluntary Aided SchoolGood1.60 KM
St. Margaret'S Cofe Junior SchoolVoluntary Controlled SchoolGood1.96 KM
Brickyard Barn Outdoor Learning CentreOther Independent Special SchoolOutstanding1.98 KM

Images

Representative image Representative image Representative image Representative image Representative image Representative image Representative image Representative image Representative image Representative image Representative image Representative image Representative image Representative image Representative image Representative image Representative image Representative image Representative image Representative image

Nearby Streets

NameAverage PriceAverage SqftDistance
Verity Close £ 000.00 KM
Bremner Drive £ 450,00000.00 KM
Sunset Close £ 136,00000.00 KM
Walker Close £ 000.00 KM
Radcliffe Road £ 487,50000.00 KM

Nearby Transport

NameNLCTLCDistance
Leamington Spa4597LMS2.78 KM
Warwick4600WRW5.45 KM
Warwick Parkway8530WRP8.43 KM
Kenilworth7985KNW9.88 KM

Nearby Listings

AddressPriceTypeScoreDistance
Harbury Lane, Leamington, CV33 9WH £ 720,000BUY6 / 100.00 KM
Harbury Lane, Leamington, CV33 9WH £ 695,000BUY7 / 100.00 KM
Harbury Lane, Leamington, CV33 9WH £ 312,500BUY7 / 100.00 KM
Harbury Lane, Leamington, CV33 9WH £ 720,000BUY8 / 100.00 KM
Harbury Lane, Leamington, CV33 9WH £ 599,950BUY7 / 100.00 KM

Nearby Properties

AddressPriceDistance
1 King Edward Drive £ 355,0000.31 KM
6 Trinculo Grove £ 330,0000.32 KM
4 Trinculo Grove £ 169,0000.32 KM
15 Trinculo Grove £ 478,0000.32 KM
2 Trinculo Grove £ 260,0000.32 KM