GO
58A London Road, Ipswich, Suffolk, IP1 2HB
By Goldings
£ 30,000
Goldings says ..
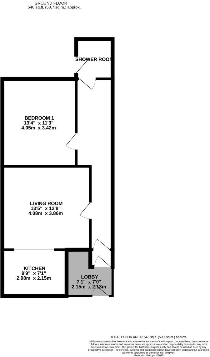
For sale by auction on Wednesday 16 July 2025 at Live Broadcast Auction 1-bed Basement apartment needing renovation... ideal buy-to-let
- Bedrooms
- 1
- Bathrooms
- 1
- Sqft (est)
- 546.00
The heatmap indicates the level of crime in the area. The color of the heatmap indicates the crime severity and recency.
Metrics Year-on-Year
- Average area value
- 184,375.00 £Decreased by 11.59 %
- Est sale value
- 144,144.00 £Increased by 3.94 %
- Average area rental value
- 1,093.00 £/moIncreased by 18.16 %
- Est letting value
- 546.00 £/moUnchanged by 0.00 %
- Est rental Yield
- 7.11 %Increased by 33.65 %
- Crime Rate
- 14.00 %Unchanged by 0.00 %
from 208,555.00 £
from 138,684.00 £
from 925.00 £/mo
from 546.00 £/mo
from 5.32 %
from 14.00 %
Agent Activity
Goldings marked this listing as sold.
Goldings created the listing.
Nearby Schools
| Name | Type | Ofsted | Distance |
|---|---|---|---|
| Westbridge Academy | Academy Alternative Provision Converter | Good | 0.15 KM |
| St Matthew'S Church Of England Primary School, Ipswich | Academy Converter | 0.42 KM | |
| West Lodge School | Other Independent Special School | Requires improvement | 0.66 KM |
| Wellington Children'S Centre | Children's Centre | 0.68 KM | |
| Meredith Children'S Centre | Children's Centre | 0.68 KM |
Images
Nearby Streets
| Name | Average Price | Average Sqft | Distance |
|---|---|---|---|
| Wellington Street | £ 850,000 | 0 | 0.00 KM |
| Mountbatten Court | £ 0 | 0 | 0.00 KM |
| Providence Lane | £ 0 | 0 | 0.00 KM |
| Norwich Road | £ 0 | 0 | 0.00 KM |
| Surrey Road | £ 170,000 | 0 | 0.00 KM |
Nearby Transport
| Name | NLC | TLC | Distance |
|---|---|---|---|
| Ipswich | 7217 | IPS | 1.09 KM |
| Westerfield | 7226 | WFI | 3.39 KM |
| Derby Road (Ipswich) | 7212 | DBR | 4.48 KM |
Nearby Listings
| Address | Price | Type | Score | Distance |
|---|---|---|---|---|
| 58A London Road, Ipswich, Suffolk, IP1 2HB | £ 30,000 | BUY | Unknown | 0.00 KM |
| Granville Street, Ipswich, Suffolk, IP1 | £ 220,000 | BUY | 6 / 10 | 0.08 KM |
| Granville Street, Ipswich, IP1 | £ 140,000 | BUY | 5 / 10 | 0.08 KM |
| Granville Street, Ipswich, IP1 | £ 150,000 | BUY | 5 / 10 | 0.08 KM |
| Stevenson Road, Ipswich, Suffolk | £ 140,000 | BUY | 6 / 10 | 0.09 KM |
Nearby Properties
| Address | Price | Distance |
|---|---|---|
| 36 Clarkson Street | £ 310,000 | 0.04 KM |
| 46 London Road | £ 92,000 | 0.05 KM |
| 58b London Road | £ 12,500 | 0.05 KM |
| 48c London Road | £ 57,000 | 0.05 KM |
| 38 London Road | £ 400,000 | 0.05 KM |