Adaston Avenue, Eastham
Brennan Ayre O'Neill logo

Adaston Avenue, Eastham

By Brennan Ayre O'Neill

£ 309,950

Reviews

3 out of 5 stars

Brennan Ayre O'Neill says ..

This property is quite simply stunning; the current owners' have created a contemporary family home with full width EXTENSION to the rear boasting vaulted ceiling and bi-fold doors. The contemporary finish runs throughout with a keen eye for detail and quality whilst offering a number of extras. ...

Property Oracle says ..

This property is a 3-bedroom semi-detached house located on Adaston Avenue in Eastham, Wirral. The location benefits from being within a reasonable distance of several primary and secondary schools, including Millfields Church of England Primary School and South Wirral High School. Public transportation is also accessible, with Eastham Rake train station approximately 1.57km away. The property itself has undergone a significant modernisation, boasting a contemporary kitchen and bathroom. It also includes a garden, which appears well-maintained and of a decent size. The list price of £309,950 is higher than the average price for the area (£249,309), but considering the property’s modern condition, updated features, and the presence of a garden, it could be considered reasonable for buyers seeking a move-in-ready home in a convenient location. Additional information regarding the plot size would be beneficial for a more precise evaluation.

Therefore, we give this property 7 / 10. *Disclaimer: This is our option and does constitute a recommendation or financial advice. Do your own research. *

Price
7
Condition
9
Location
8
Land
7
Bedrooms
3
Bathrooms
1
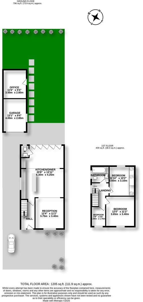
Sqft (est)
1,204.48

The heatmap indicates the level of crime in the area. The color of the heatmap indicates the crime severity and recency.

Metrics Year-on-Year

Average area value
264,090.00 £
Increased by 9.78 %
from 240,568.00 £
Est sale value
322,800.64 £
Increased by 12.61 %
from 286,666.24 £
Average area rental value
795.00 £/mo
Decreased by 30.93 %
from 1,151.00 £/mo
Est letting value
0.00 £/mo
Decreased by 100.00 %
from 1,204.48 £/mo
Est rental Yield
3.61 %
Decreased by 37.11 %
from 5.74 %
Crime Rate
3.00 %
Unchanged by 0.00 %
from 3.00 %

Agent Activity

  • Brennan Ayre O'Neill created the listing.

Nearby Schools

NameTypeOfstedDistance
Millfields Church Of England (Controlled) Primary SchoolVoluntary Controlled SchoolGood0.68 KM
Eastham Children'S CentreChildren's Centre0.68 KM
Heygarth Primary SchoolCommunity SchoolGood0.70 KM
South Wirral High SchoolFoundation SchoolRequires improvement1.21 KM
Christ The King Catholic Primary SchoolVoluntary Aided SchoolGood1.50 KM

Images

DSC_0012.jpg DSC_0022.jpg DSC_0005.jpg DSC_0019.jpg DSC_0003.jpg DSC_0013.jpg DSC_0014.jpg DSC_0007.jpg DSC_0024.jpg IMG_0627.jpg DSC_0016.jpg DSC_0028.jpg DSC_0033.jpg DSC_0037.jpg DSC_0030.jpg DSC_0041.jpg DSC_0034.jpg DSC_0039.jpg DSC_0038.jpg DSC_0036.jpg DSC_0017.jpg DSC_0047.jpg DSC_0012-2.jpg DSC_0013.jpg DSC_0007-2.jpg DSC_0014.jpg DSC_0016.jpg DSC_0015.jpg DSC_0019.jpg DSC_0009.jpg DSC_0018.jpg

Nearby Streets

NameAverage PriceAverage SqftDistance
Harrison Close £ 279,37500.00 KM
Stretton Close £ 190,00000.00 KM
Clifton Avenue £ 197,50000.00 KM
Ashton Close £ 190,00000.00 KM
Picton Close £ 000.00 KM

Nearby Transport

NameNLCTLCDistance
Eastham Rake2128ERA1.57 KM
Hooton2193HOO2.00 KM
Bromborough2190BOM2.32 KM
Bromborough Rake2191BMR3.05 KM
Little Sutton2156LTT4.08 KM

Nearby Listings

AddressPriceTypeScoreDistance
Adaston Avenue, Eastham £ 309,950BUY7 / 100.00 KM
Lyndale Avenue, Wirral CH62 £ 180,000BUY7 / 100.08 KM
Eastham Rake, Eastham £ 365,000BUY6 / 100.13 KM
Eastham Rake, Eastham £ 250,000BUY7 / 100.13 KM
Adaston Avenue, Eastham £ 230,000BUY7 / 100.13 KM

Nearby Properties

AddressPriceDistance
12 Adaston Avenue £ 47,5000.02 KM
2a Adaston Avenue £ 287,0000.02 KM
42 Adaston Avenue £ 172,0000.02 KM
28 Adaston Avenue £ 156,0000.02 KM
54 Adaston Avenue £ 216,0000.03 KM