Corum says ..
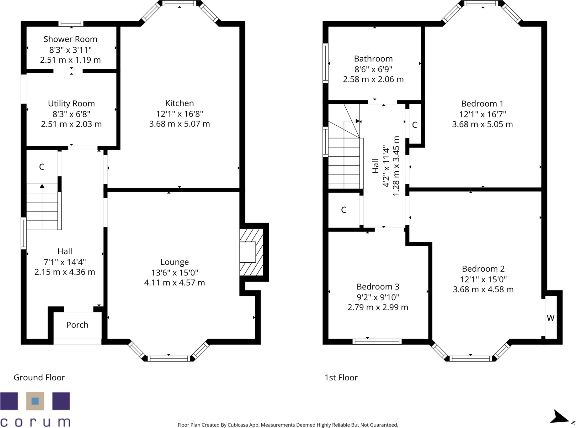
Beautifully upgraded three bedroom 1930s John MacDonald semi detached villa, delivering outstanding style, character and generous proportions and enjoying a prime position, on a sizeable plot, within the catchment area for the sought after Mosshead Primary and Bearsden Academy.
Property Oracle says ..
This is a well-presented semi-detached property in the sought-after area of Bearsden. The house has been modernised to a high standard, with a new kitchen and bathrooms. The property benefits from a garden and off-street parking. The house is well located for local amenities and transport links.
Therefore, we give this property 7 / 10. *Disclaimer: This is our option and does constitute a recommendation or financial advice. Do your own research. *
- Price
- 7
- Condition
- 9
- Location
- 8
- Land
- 7
- Bedrooms
- 3
- Bathrooms
- 2
- Sqft (est)
- 311.83
The heatmap indicates the level of crime in the area. The color of the heatmap indicates the crime severity and recency.
Metrics Year-on-Year
- Average area value
- 512,500.00 £Increased by 58.76 %
- Est sale value
- 213,603.55 £Increased by 135.40 %
- Average area rental value
- 1,100.00 £/moDecreased by 47.62 %
- Est letting value
- 311.83 £/moUnchanged by 0.00 %
- Est rental Yield
- 2.58 %Decreased by 66.97 %
- Crime Rate
- 0.00 %
Agent Activity
Corum created the listing.
Images
Nearby Streets
| Name | Average Price | Average Sqft | Distance |
|---|---|---|---|
| Hazel Avenue | £ 0 | 0 | 0.00 KM |
| Oak Avenue | £ 0 | 0 | 0.00 KM |
| Braeside Avenue | £ 258,332 | 0 | 0.00 KM |
| Reid Avenue | £ 0 | 0 | 0.00 KM |
| Bears Way | £ 0 | 0 | 0.00 KM |
Nearby Transport
| Name | NLC | TLC | Distance |
|---|---|---|---|
| Hillfoot | 9983 | HLF | 0.97 KM |
| Milngavie | 9985 | MLN | 1.51 KM |
| Bearsden | 9966 | BRN | 1.87 KM |
| Westerton | 9998 | WES | 3.14 KM |
| Maryhill | 9957 | MYH | 4.05 KM |
Nearby Listings
| Address | Price | Type | Score | Distance |
|---|---|---|---|---|
| 55 Beech Avenue, Bearsden, G61 3EU | £ 395,000 | BUY | 7 / 10 | 0.00 KM |
| Beech Avenue, Bearsden | £ 360,000 | BUY | Unknown | 0.01 KM |
| Hawthorn Avenue, Bearsden, G61 | £ 285,000 | BUY | Unknown | 0.09 KM |
| Hawthorn Avenue, Bearsden | £ 310,000 | BUY | 6 / 10 | 0.12 KM |
| Mosshead Road, Bearsden | £ 358,000 | BUY | 6 / 10 | 0.14 KM |