KN
Cockerhurst Road, Shoreham, Sevenoaks, Kent, TN14
By Knight Frank
£ 2,300,000
Reviews
4 out of 5 stars
Knight Frank says ..
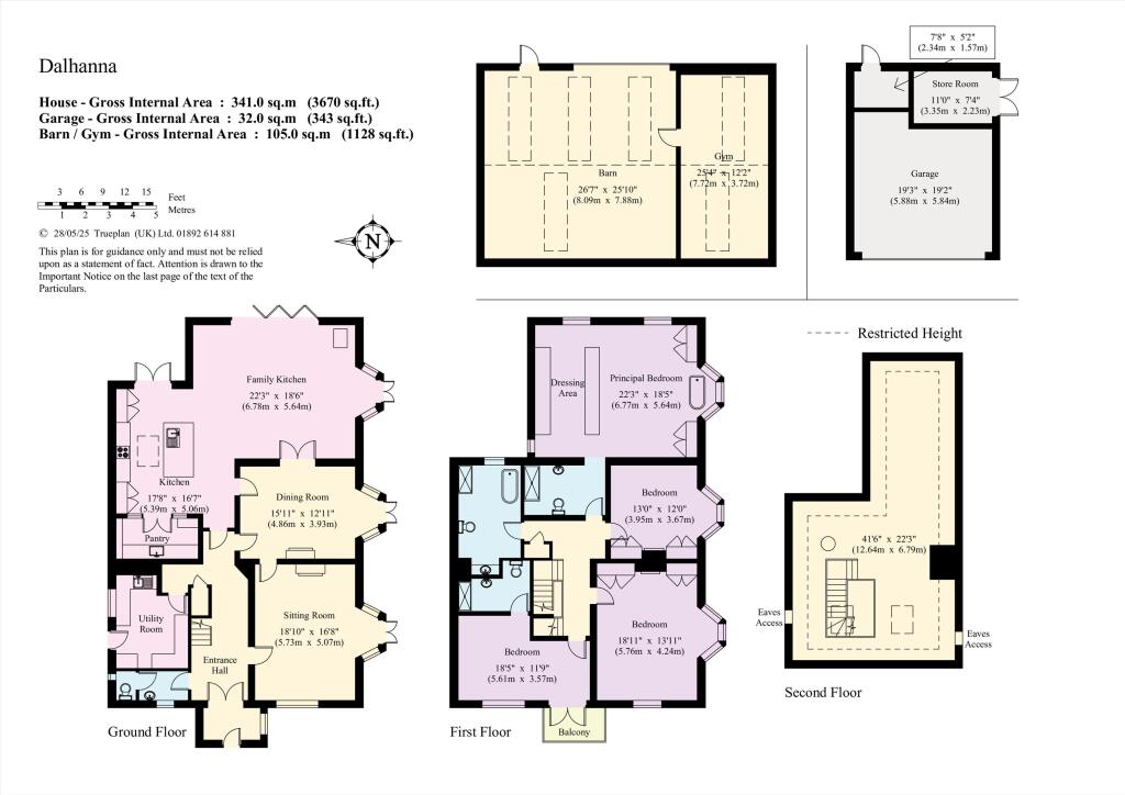
Stunning family home in an elevated position with grounds extending to approximately 20 acres offering wonderful panoramic views over open countryside and the valley beyond. A distinguished Georgian-style country home built in the 1920s that has been thoughtfully renovated and extended by the cu...
Property Oracle says ..
Therefore, we give this property 8 / 10. *Disclaimer: This is our option and does constitute a recommendation or financial advice. Do your own research. *
- Price
- 8
- Condition
- 9
- Location
- 7
- Land
- 8
- Bedrooms
- 5
- Bathrooms
- 4
- Sqft (est)
- 4,612.77
The heatmap indicates the level of crime in the area. The color of the heatmap indicates the crime severity and recency.
Metrics Year-on-Year
- Average area value
- 1,145,000.00 £Increased by 51.85 %
- Est sale value
- 3,680,990.46 £Increased by 52.58 %
- Average area rental value
- 1,717.00 £/moDecreased by 6.07 %
- Est letting value
- 4,612.77 £/moUnchanged by 0.00 %
- Est rental Yield
- 1.80 %Decreased by 38.14 %
- Crime Rate
- 68.00 %Unchanged by 0.00 %
from 754,053.00 £
from 2,412,478.71 £
from 1,828.00 £/mo
from 4,612.77 £/mo
from 2.91 %
from 68.00 %
Agent Activity
Knight Frank created the listing.
Nearby Schools
| Name | Type | Ofsted | Distance |
|---|---|---|---|
| Shoreham Village School | Community School | Good | 1.81 KM |
| Browns School | Other Independent Special School | Good | 3.81 KM |
| Otford Primary School | Community School | Good | 4.37 KM |
| Crockenhill Primary School | Community School | Good | 4.38 KM |
| Russell House School | Other Independent School | 4.59 KM |
Images
Nearby Streets
| Name | Average Price | Average Sqft | Distance |
|---|---|---|---|
| Mill Lane | £ 350,000 | 0 | 0.00 KM |
Nearby Transport
| Name | NLC | TLC | Distance |
|---|---|---|---|
| Shoreham (Kent) | 5074 | SEH | 2.68 KM |
| Eynsford | 5065 | EYN | 4.25 KM |
| Knockholt | 5109 | KCK | 4.28 KM |
| Otford | 5071 | OTF | 4.79 KM |
| Swanley | 5075 | SAY | 5.21 KM |
Nearby Listings
| Address | Price | Type | Score | Distance |
|---|---|---|---|---|
| Cockerhurst Road, Shoreham, Sevenoaks, Kent, TN14 | £ 2,300,000 | BUY | 8 / 10 | 0.00 KM |
| Cockerhurst Road, Shoreham, Sevenoaks, Kent, TN14 | £ 1,200,000 | BUY | 7 / 10 | 0.19 KM |
| Shacklands Road, Shoreham, Sevenoaks, Kent | £ 1,000,000 | BUY | 6 / 10 | 0.80 KM |
| High Street, Shoreham, TN14 | £ 360,000 | BUY | 5 / 10 | 1.43 KM |
| Crown Road, Shoreham, Sevenoaks, Kent | £ 625,000 | BUY | 7 / 10 | 1.45 KM |
Nearby Properties
| Address | Price | Distance |
|---|---|---|
| Dalhanna | £ 712,000 | 0.01 KM |
| Coombe Rise | £ 600,000 | 0.01 KM |
| Cockerhurst Oasts | £ 705,000 | 0.42 KM |
| The Coach House | £ 40,632 | 0.87 KM |
| 42 High Street | £ 675,000 | 1.47 KM |