Hortons says ..
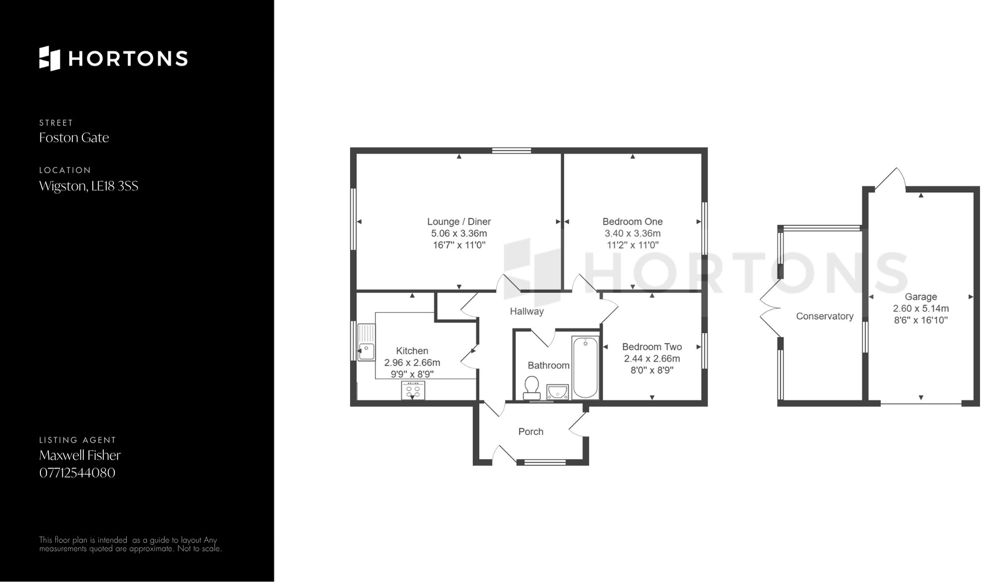
Charming 2-bed detached bungalow within Wigston. Private driveway, detached garage, lounge/diner, conservatory, well-maintained gardens, spacious bedrooms, peaceful yet convenient setting.
Property Oracle says ..
Therefore, we give this property 5 / 10. *Disclaimer: This is our option and does constitute a recommendation or financial advice. Do your own research. *
- Price
- 4
- Condition
- 6
- Location
- 7
- Land
- 6
- Bedrooms
- 2
- Bathrooms
- 1
- Sqft (est)
- 603.26
The heatmap indicates the level of crime in the area. The color of the heatmap indicates the crime severity and recency.
Metrics Year-on-Year
- Average area value
- 355,872.00 £Increased by 11.25 %
- Est sale value
- 287,755.02 £Increased by 35.13 %
- Average area rental value
- 983.00 £/moDecreased by 14.52 %
- Est letting value
- 603.26 £/moUnchanged by 0.00 %
- Est rental Yield
- 3.31 %Decreased by 23.20 %
- Crime Rate
- 7.00 %Unchanged by 0.00 %
from 319,886.00 £
from 212,950.78 £
from 1,150.00 £/mo
from 603.26 £/mo
from 4.31 %
from 7.00 %
Agent Activity
Hortons created the listing.
Nearby Schools
| Name | Type | Ofsted | Distance |
|---|---|---|---|
| Thythorn Field Community Primary School | Community School | Good | 0.78 KM |
| The Meadow Community Primary School | Academy Converter | Good | 1.42 KM |
| Wigston Magna Sure Start Children'S Centre | Children's Centre | 1.65 KM | |
| Wigston Menphys Nursery School | Local Authority Nursery School | Good | 1.73 KM |
| All Saints Church Of England Primary School | Academy Converter | 1.76 KM |
Images
Nearby Streets
| Name | Average Price | Average Sqft | Distance |
|---|---|---|---|
| Gravel Pen | £ 270,000 | 0 | 0.00 KM |
| Lime Delph Road | £ 259,333 | 0 | 0.00 KM |
| Preston Close | £ 0 | 0 | 0.00 KM |
| Black Swan Road | £ 86,250 | 0 | 0.00 KM |
| Cranes Way | £ 0 | 0 | 0.00 KM |
Nearby Transport
| Name | NLC | TLC | Distance |
|---|---|---|---|
| South Wigston | 1949 | SWS | 4.16 KM |
| Leicester | 1947 | LEI | 7.14 KM |
Nearby Listings
| Address | Price | Type | Score | Distance |
|---|---|---|---|---|
| Foston Gate, Wigston, LE18 | £ 280,000 | BUY | 5 / 10 | 0.00 KM |
| Lime Kilns, Wigston | £ 210,000 | BUY | 7 / 10 | 0.07 KM |
| Foston Gate, Wigston, Leicester | £ 175,000 | BUY | 5 / 10 | 0.08 KM |
| Foston Gate, Wigston, Leicestershire, LE18 3SS | £ 175,000 | BUY | 5 / 10 | 0.10 KM |
| Lime Kilns, Wigston | £ 190,000 | BUY | 6 / 10 | 0.10 KM |
Nearby Properties
| Address | Price | Distance |
|---|---|---|
| 8 Freer Close | £ 180,000 | 0.05 KM |
| 3 Freer Close | £ 119,000 | 0.05 KM |
| 7 Freer Close | £ 124,000 | 0.05 KM |
| 2 Freer Close | £ 145,000 | 0.05 KM |
| 5 Freer Close | £ 193,000 | 0.05 KM |