Highfield Close, Risca, NP11
By Number One Real Estate
£ 280,000
Reviews
3 out of 5 stars
Number One Real Estate says ..
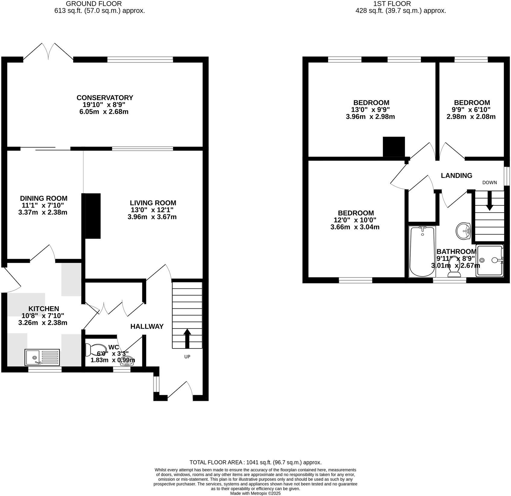
*GUIDE PRICE £280,000 - £300,000*NO ONWARD CHAIN*DETACHED FAMILY HOME*THREE BEDROOMS*OPEN PLAN LIVING*KITCHEN/BREAKFAST ROOM*CONSERVATORY*CLOAKROOM*BATHROOM*DRIVEWAY AND GARAGE*FRONT AND REAR GARDENS*
Property Oracle says ..
This detached property at Highfield Close, Risca, offers three bedrooms and one bathroom, making it suitable for families. The house benefits from a garden, a garage, and a conservatory, adding to its living space and functionality. While the kitchen has been modernized, the bathroom could use updating. The property’s location provides convenient access to local schools and transportation, enhancing its desirability. However, the asking price is slightly above the local average, which may require consideration during negotiations. Overall, the property presents a solid opportunity with some scope for improvement and value appreciation.
Therefore, we give this property 6 / 10. *Disclaimer: This is our option and does constitute a recommendation or financial advice. Do your own research. *
- Price
- 6
- Condition
- 7
- Location
- 7
- Land
- 7
- Bedrooms
- 3
- Bathrooms
- 1
The heatmap indicates the level of crime in the area. The color of the heatmap indicates the crime severity and recency.
Metrics Year-on-Year
- Average area value
- 209,988.00 £Increased by 6.16 %
- Average area rental value
- 750.00 £/moDecreased by 9.96 %
- Est rental Yield
- 4.29 %Decreased by 15.05 %
- Crime Rate
- 16.00 %Unchanged by 0.00 %
Agent Activity
Number One Real Estate created the listing.
Nearby Schools
| Name | Type | Ofsted | Distance |
|---|---|---|---|
| Risca Primary School | Welsh Establishment | 0.50 KM | |
| Ty Sign Primary School | Welsh Establishment | 0.98 KM | |
| Pentwynmawr Primary School | Welsh Establishment | 1.04 KM | |
| Ty Isaf Infants & Nursery School | Welsh Establishment | 1.34 KM | |
| Waunfawr Primary School | Welsh Establishment | 2.90 KM |
Images
Nearby Streets
| Name | Average Price | Average Sqft | Distance |
|---|---|---|---|
| Church Road | £ 259,238 | 0 | 0.00 KM |
| Highfield Close | £ 182,667 | 0 | 0.00 KM |
| York Place | £ 387,500 | 0 | 0.00 KM |
| Vale View | £ 260,000 | 0 | 0.00 KM |
| Taylor Street | £ 125,000 | 0 | 0.00 KM |
Nearby Transport
| Name | NLC | TLC | Distance |
|---|---|---|---|
| Risca And Pontymister | 9920 | RCA | 1.19 KM |
| Crosskeys | 9902 | CKY | 2.98 KM |
| Rogerstone | 9921 | ROR | 4.20 KM |
| Newbridge | 9919 | NBE | 7.54 KM |
| Pye Corner | 1663 | PYE | 7.88 KM |
Nearby Listings
| Address | Price | Type | Score | Distance |
|---|---|---|---|---|
| Highfield Close, Risca, NP11 | £ 280,000 | BUY | 6 / 10 | 0.00 KM |
| Highfield Close, Newport, NP11 6EZ | £ 315,000 | BUY | 6 / 10 | 0.00 KM |
| Navigation Road, Risca, NP11 | £ 165,000 | BUY | Unknown | 0.02 KM |
| Highfield Close, Risca, Newport | £ 245,000 | BUY | 7 / 10 | 0.03 KM |
| Highfield Close, Risca, Newport | £ 185,000 | BUY | 5 / 10 | 0.08 KM |
Nearby Properties
| Address | Price | Distance |
|---|---|---|
| 8 Highfield Close | £ 134,000 | 0.06 KM |
| 6 Highfield Close | £ 53,000 | 0.06 KM |
| 22 Highfield Close | £ 47,500 | 0.06 KM |
| 23 Highfield Close | £ 158,000 | 0.06 KM |
| Fronheulog | £ 129,950 | 0.07 KM |