Star Lane , Margate, CT9 4FZ
By Hilden & Co Estates
£ 250,000
Reviews
3 out of 5 stars
Hilden & Co Estates says ..
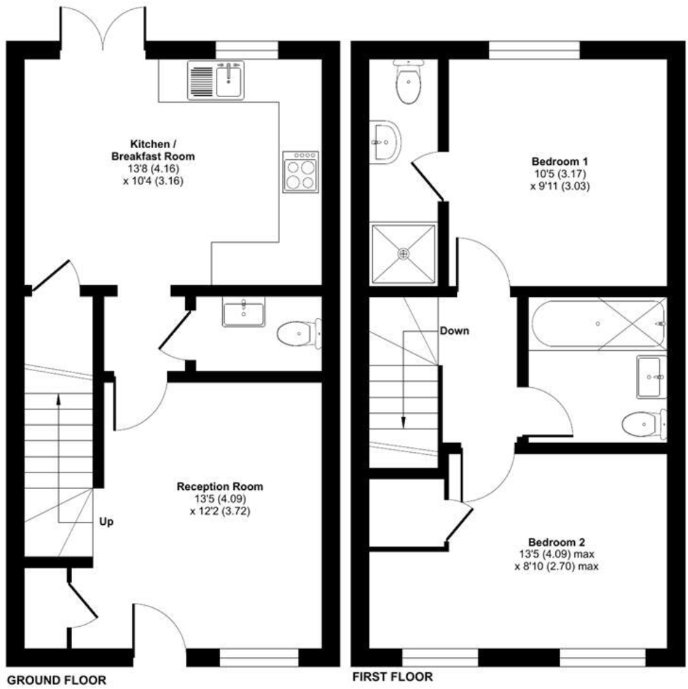
A TRULY GORGEOUS HOME! Come and take a look at this gorgeous two double bedroom home, with parking! Presented in immaculate condition, this beautifully maintained mid-terrace property offers two spaciou...
Property Oracle says ..
This is a modern terraced property in Margate, Kent. It features two bedrooms and two bathrooms. The interior is well-presented and appears to be in good condition. The property benefits from a garden and parking. The location offers proximity to local schools and transportation links, including Margate station. The asking price of £250,000 seems reasonable compared to the average property price in the area.
Therefore, we give this property 7 / 10. *Disclaimer: This is our option and does constitute a recommendation or financial advice. Do your own research. *
- Price
- 7
- Condition
- 8
- Location
- 6
- Land
- 7
- Bedrooms
- 2
- Bathrooms
- 2
- Sqft (est)
- 166.95
The heatmap indicates the level of crime in the area. The color of the heatmap indicates the crime severity and recency.
Metrics Year-on-Year
- Average area value
- 381,857.00 £Increased by 4.46 %
- Est sale value
- 62,439.30 £Increased by 4.47 %
- Average area rental value
- 2,250.00 £/moIncreased by 41.60 %
- Est letting value
- 333.90 £/moIncreased by 100.00 %
- Est rental Yield
- 7.07 %Increased by 35.44 %
- Crime Rate
- 12.00 %Unchanged by 0.00 %
Agent Activity
Hilden & Co Estates created the listing.
Nearby Schools
| Name | Type | Ofsted | Distance |
|---|---|---|---|
| Enterprise Learning Alliance | Pupil Referral Unit | Good | 0.81 KM |
| Laleham Gap School | Foundation Special School | Good | 1.19 KM |
| Dame Janet Primary Academy | Academy Sponsor Led | Good | 1.76 KM |
| St Gregory'S Catholic Primary School, Margate | Academy Converter | Good | 1.96 KM |
| Small Haven School | Other Independent Special School | Good | 1.98 KM |
Images
Nearby Streets
| Name | Average Price | Average Sqft | Distance |
|---|---|---|---|
| Castor Road | £ 0 | 0 | 0.00 KM |
| Leo Road | £ 163,750 | 0 | 0.00 KM |
| Columbia Way | £ 233,333 | 0 | 0.00 KM |
| Hydra Drive | £ 0 | 0 | 0.00 KM |
| Orion Way | £ 0 | 0 | 0.00 KM |
Nearby Transport
| Name | NLC | TLC | Distance |
|---|---|---|---|
| Ramsgate | 5023 | RAM | 3.03 KM |
| Margate | 5018 | MAR | 3.27 KM |
| Dumpton Park | 5034 | DMP | 4.55 KM |
| Broadstairs | 5006 | BSR | 5.10 KM |
| Westgate-On-Sea | 5195 | WGA | 5.91 KM |
Nearby Listings
| Address | Price | Type | Score | Distance |
|---|---|---|---|---|
| Star Lane , Margate, CT9 4FZ | £ 250,000 | BUY | 7 / 10 | 0.00 KM |
| Star Lane, Margate | £ 280,000 | BUY | 7 / 10 | 0.00 KM |
| Star Lane, Margate, Kent, CT9 | £ 300,000 | BUY | 7 / 10 | 0.03 KM |
| Star Lane, Margate, Kent, CT9 | £ 290,000 | BUY | Unknown | 0.03 KM |
| Bootes Close, Margate, Kent, CT9 | £ 300,000 | BUY | 8 / 10 | 0.04 KM |
Nearby Properties
| Address | Price | Distance |
|---|---|---|
| 13 Manston Way | £ 190,000 | 0.15 KM |
| 7 Manston Way | £ 238,000 | 0.15 KM |
| 48 Castle Drive | £ 195,000 | 0.24 KM |
| 52 Castle Drive | £ 213,950 | 0.24 KM |
| 33 Richborough Close | £ 240,000 | 0.38 KM |