1-59 Merchant Avenue, Exmouth, Devon, EX8 2GG
By McCarthy Stone
£ 302,500
Reviews
4 out of 5 stars
McCarthy Stone says ..
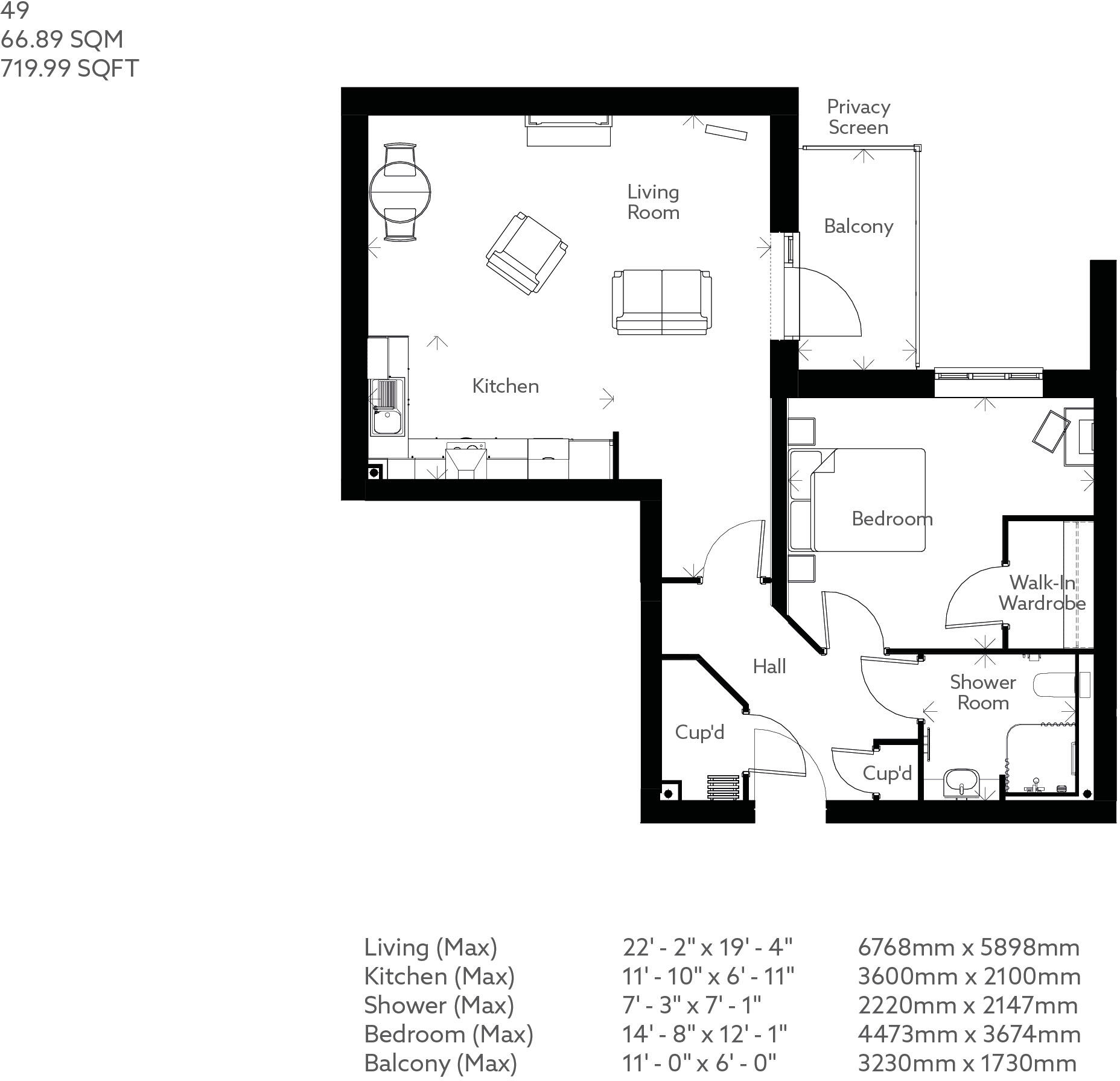
Apartment 49 is a beautiful one-bedroom apartment at our stunning The Curlews development in Exmouth.
Property Oracle says ..
Based on the provided information, this property is a retirement property located in Exmouth, Devon. The property is part of a larger development, as evidenced by the multiple similar listings at the same address. While the images show a modern and well-maintained interior, the lack of square footage data prevents a precise assessment of price per square foot. However, comparing the list price to nearby property prices, which range from £127,500 to £354,000 for similar retirement properties, suggests the £302,500 list price is within the typical range for the area. The property includes a communal garden area, which is visible in the provided images. The location benefits from proximity to several schools (Bassetts Farm Primary School, Littleham Church of England Primary School, and Marpool Primary School) and railway stations (Exmouth, Lympstone Village, Starcross, Dawlish Warren, and Lympstone Commando). This makes it convenient for residents. The property appears to be in excellent condition, with modern fixtures and fittings throughout. The lack of specific information on the size of the individual unit makes a definitive statement on value difficult, but given the condition and location, the price appears reasonable within the context of other similar properties in the area.
Therefore, we give this property 8 / 10. *Disclaimer: This is our option and does constitute a recommendation or financial advice. Do your own research. *
- Price
- 7
- Condition
- 10
- Location
- 8
- Land
- 7
- Bedrooms
- 1
- Bathrooms
- 0
- Lot (est)
- 719.99
The heatmap indicates the level of crime in the area. The color of the heatmap indicates the crime severity and recency.
Metrics Year-on-Year
- Average area value
- 322,940.00 £Decreased by 9.74 %
- Average area rental value
- 1,284.00 £/moIncreased by 22.29 %
- Est rental Yield
- 4.77 %Increased by 35.51 %
- Crime Rate
- 8.00 %Unchanged by 0.00 %
Agent Activity
McCarthy Stone created the listing.
Nearby Schools
| Name | Type | Ofsted | Distance |
|---|---|---|---|
| Bassetts Farm Primary School | Foundation School | Good | 0.68 KM |
| Littleham Church Of England Primary School | Voluntary Controlled School | Requires improvement | 0.97 KM |
| Marpool Primary School | Foundation School | Good | 1.13 KM |
| Exmouth & District Children'S Centre | Children's Centre | 1.31 KM | |
| Brixington Primary Academy | Academy Sponsor Led | Requires improvement | 1.59 KM |
Images
Nearby Streets
| Name | Average Price | Average Sqft | Distance |
|---|---|---|---|
| Wade Close | £ 0 | 0 | 0.00 KM |
| The Crescent | £ 0 | 0 | 0.00 KM |
| Copperfield Close | £ 385,000 | 0 | 0.00 KM |
| Buckeridge Road | £ 264,000 | 0 | 0.00 KM |
| Sutton Road | £ 279,950 | 0 | 0.00 KM |
Nearby Transport
| Name | NLC | TLC | Distance |
|---|---|---|---|
| Exmouth | 5756 | EXM | 3.48 KM |
| Lympstone Village | 5761 | LYM | 5.65 KM |
| Starcross | 3413 | SCS | 7.03 KM |
| Dawlish Warren | 3409 | DWW | 7.33 KM |
| Lympstone Commando | 5762 | LYC | 7.33 KM |
Nearby Listings
| Address | Price | Type | Score | Distance |
|---|---|---|---|---|
| 1-59 Merchant Avenue, Exmouth, Devon, EX8 2GG | £ 364,000 | BUY | 7 / 10 | 0.00 KM |
| 1-59 Merchant Avenue, Exmouth, Devon, EX8 2GG | £ 302,500 | BUY | 8 / 10 | 0.00 KM |
| 1-59 Merchant Avenue, Exmouth, Devon, EX8 2GG | £ 127,500 | BUY | 7 / 10 | 0.00 KM |
| 1-59 Merchant Avenue, Exmouth, Devon, EX8 2GG | £ 182,500 | BUY | 7 / 10 | 0.00 KM |
| 1-59 Merchant Avenue, Exmouth, Devon, EX8 2GG | £ 449,500 | BUY | 6 / 10 | 0.01 KM |
Nearby Properties
| Address | Price | Distance |
|---|---|---|
| 114 Salterton Road | £ 179,950 | 0.13 KM |
| 146 Salterton Road | £ 170,000 | 0.13 KM |
| 146c Salterton Road | £ 166,000 | 0.13 KM |
| 106 Salterton Road | £ 275,000 | 0.13 KM |
| 100 Salterton Road | £ 223,450 | 0.13 KM |