John Payne says ..
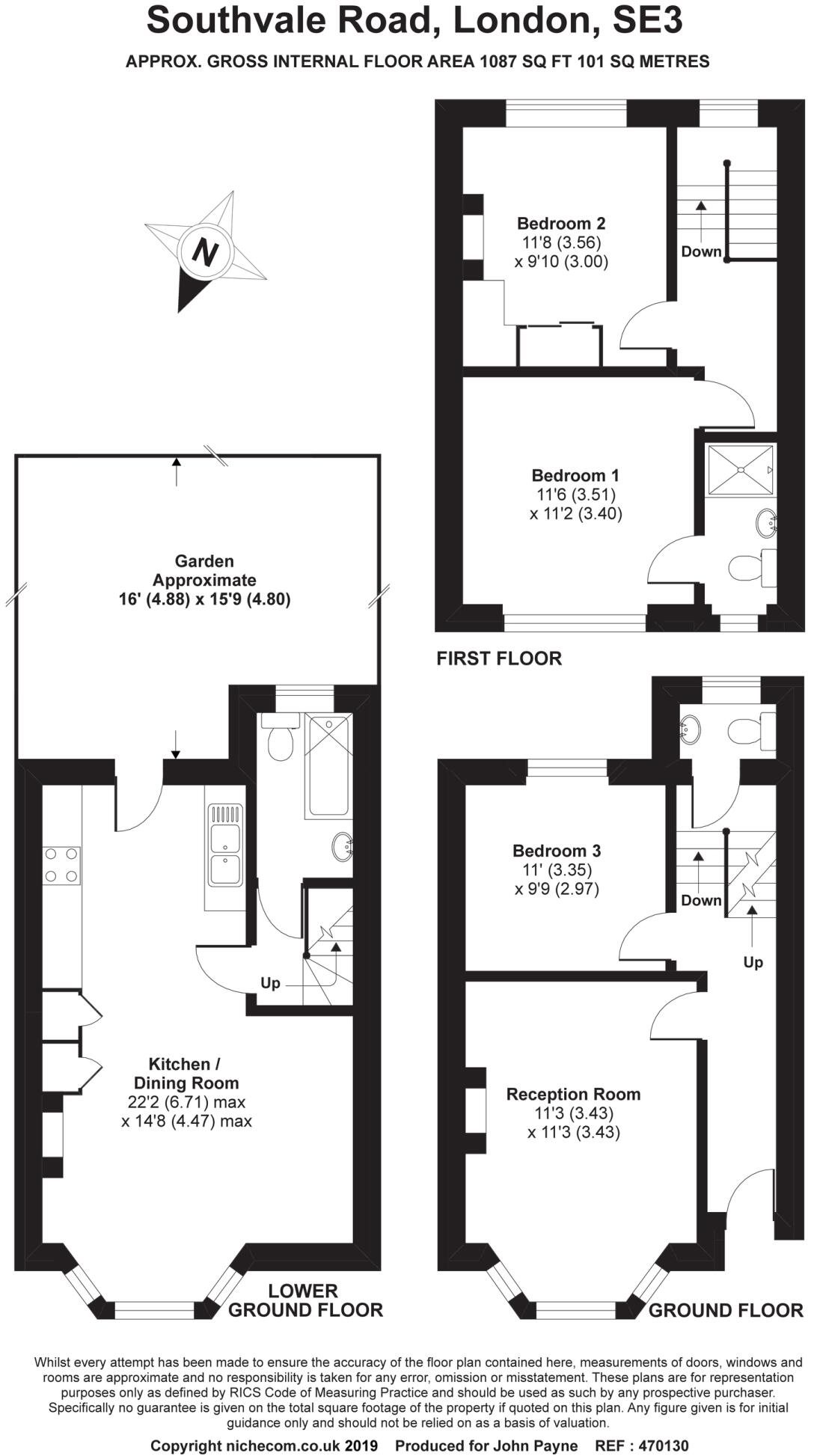
Absolutely immaculate and refurbished to a very high standard throughout, 3 bedroom, 2 bathroom mid terraced Victorian house in this sought after residential road at the heath end of Blackheath Village and in the catchment area for outstanding rated John Ball Primary School. Features i...
Property Oracle says ..
Therefore, we give this property 6 / 10. *Disclaimer: This is our option and does constitute a recommendation or financial advice. Do your own research. *
- Price
- 3
- Condition
- 8
- Location
- 9
- Land
- 6
- Bedrooms
- 3
- Bathrooms
- 2
- Sqft (est)
- 701.65
- Lot (est)
- 252.00
The heatmap indicates the level of crime in the area. The color of the heatmap indicates the crime severity and recency.
Metrics Year-on-Year
- Average area value
- 513,942.00 £Decreased by 2.28 %
- Est sale value
- 400,642.15 £Decreased by 5.93 %
- Average area rental value
- 2,061.00 £/moIncreased by 1.93 %
- Est letting value
- 1,403.30 £/moUnchanged by 0.00 %
- Est rental Yield
- 4.81 %Increased by 4.34 %
- Crime Rate
- 5.00 %Unchanged by 0.00 %
from 525,912.00 £
from 425,901.55 £
from 2,022.00 £/mo
from 1,403.30 £/mo
from 4.61 %
from 5.00 %
Agent Activity
John Payne created the listing.
Nearby Schools
| Name | Type | Ofsted | Distance |
|---|---|---|---|
| John Ball Primary School | Community School | Outstanding | 0.15 KM |
| Heath House Preparatory School | Other Independent School | 0.35 KM | |
| All Saints' Church Of England Primary School Blackheath | Voluntary Aided School | Good | 0.49 KM |
| St Matthew Academy | Academy Sponsor Led | Good | 0.74 KM |
| St Margaret'S Lee Cofe Primary School | Voluntary Aided School | Outstanding | 0.75 KM |
Images
Nearby Streets
| Name | Average Price | Average Sqft | Distance |
|---|---|---|---|
| Tranquil Vale | £ 0 | 0 | 0.00 KM |
| Quentin Place | £ 1,600,000 | 0 | 0.00 KM |
| Meadow Bank | £ 0 | 0 | 0.00 KM |
| Eastdown Park | £ 0 | 0 | 0.00 KM |
| St Germans Place | £ 0 | 0 | 0.00 KM |
Nearby Transport
| Name | NLC | TLC | Distance |
|---|---|---|---|
| Blackheath | 5095 | BKH | 0.27 KM |
| Hither Green | 5107 | HGR | 1.77 KM |
| Maze Hill | 5149 | MZH | 1.87 KM |
| Lee | 5110 | LEE | 1.99 KM |
| Lewisham | 5051 | LEW | 2.26 KM |
Nearby Listings
| Address | Price | Type | Score | Distance |
|---|---|---|---|---|
| Southvale Road, London | £ 1,100,000 | BUY | 6 / 10 | 0.00 KM |
| Collins Street, London | £ 860,000 | BUY | 7 / 10 | 0.07 KM |
| Camden Row, Blackheath Village SE3 | £ 1,350,000 | BUY | Unknown | 0.08 KM |
| Tranquil Vale, London, SE3 | £ 2,250,000 | BUY | 7 / 10 | 0.08 KM |
| Tranquil Vale, London | £ 2,750,000 | BUY | 8 / 10 | 0.08 KM |
Nearby Properties
| Address | Price | Distance |
|---|---|---|
| 27 Southvale Road | £ 983,500 | 0.01 KM |
| 9 Southvale Road | £ 1,005,000 | 0.01 KM |
| 10 Southvale Road | £ 699,950 | 0.01 KM |
| 17 Southvale Road | £ 1,100,000 | 0.01 KM |
| 22 Southvale Road | £ 680,000 | 0.01 KM |